【华侨城新玺】蛇口最最璀璨的明珠,三面海景,建面约230-700㎡稀缺海景大平层!
扫描到手机,新闻随时看
扫一扫,用手机看文章
更加方便分享给朋友

侨城新玺这个项目是公寓,不是住宅也不是商品房,目前在售230㎡、280㎡、350㎡、400㎡、00㎡、630㎡、700㎡海景真公寓3-7房户型折后为13万元/㎡起,折后总价区间为3000万-1.32亿万。华侨城新玺名苑是深圳南山天花板级别的楼盘,档次完全不逊色于深圳湾一号。
新玺项目规划总占地约25147.13㎡,建筑面积288268.36㎡,可得容积率达到了11.46,包含 办公、商业、酒店、商务公寓,还有一个1800㎡的海洋博物馆!
【项目基本信息】
项目:华侨城.新玺
开发商:华侨城新玺发展有限公司
物业类型:公寓 商办
地址:深圳市南山区湾厦路1号
占地面积:2.5万㎡
建筑面积:28.9万㎡
总户数:210户
栋数:3栋
产权:40年(18-58年)
容积率:7.42
层高:3.6-4米
梯户比:3梯1户,3梯2户
总层:38-57层
户型:232-280㎡3房,320-400㎡4房,468-610㎡5-6房
交楼标准:精装
交楼时间:2023年12月31日
开发商预约电话:4008113080
单价:10-18万
均价:13.9万/㎡(预约看房更优惠)
总价:3000-6000万
车位:660个
绿化率:30%
物业:华侨城新玺物业
物业费:14.8元/㎡


「 寰湾再叙 地标之作」
寰海标杆之作,定鼎海岸传奇
【品牌】36载华侨城,实力央企的品牌创想
【区域】蛇口联动前海、深圳湾,三大千亿级经济中心叠加发展
【地段】三面环海半岛,深圳湾线绝版地段,成就世界海岸的坐标
【景观】纵览270°海景,15公里滨海长廊上盖,物尽珍藏,与自然无间
【配套】集结湾区首屈一指的文化艺术坐标,高端商业配套环伺,奢享国际都市生活场
【产品】250米地标级超高层,定鼎深湾之作,4m舒阔层高,只此再无
【酒店&商业】一线酒店品牌酒店入驻,立体开放式悦享天地,奢享全优配套!
实景图如下




【华侨城新玺户型图鉴赏】
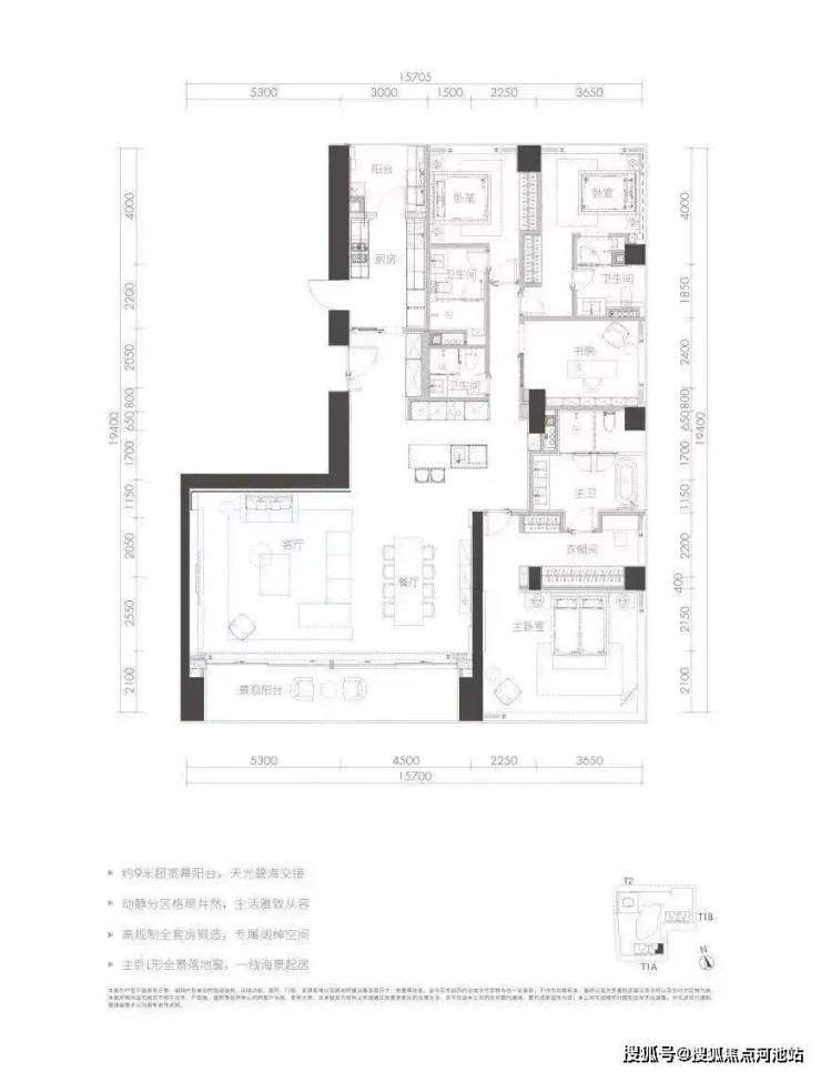
T1A栋B/C:约230-238㎡ 3房2厅3卫

B/C户型对称,楼栋中间位置,3房设计,类似恒二的庭室布局。遗憾的是暗卫多,中间位置决定了户型开间的有限,美好的海景面肯定要留给睡房。长约5m左右的阳台略短,2.1m的宽度很多公寓达不到,实地看房体验还是很舒适的。
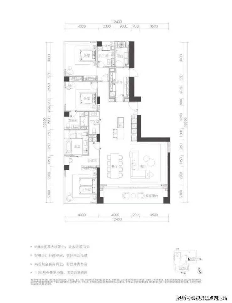
T1A栋A/D:约346/353㎡ 4房2厅4卫
两个户型分别在东西端头位置,三套间+书房,格局相同,面积略有差异,D户型书房更大点。
约9m长的一线海景大阳台,一望无际的海景可以铺满视野。270°采光,270°景色环绕,L型全景落地窗大主卧,绝对的奢享。整体上西端头景观面要好些,西面靠内湾视野更开阔,东面则是住宅区。
T1A栋E:约475㎡ 5房3厅5卫+工人房

整个项目的楼王单位,只存在于高区33-38楼,极为稀缺。户型格局相当于T1A栋A户型的加强版,楼层更高,尺度更大,功能性更全面;增加了保姆间、起居室等空间,近80㎡的至尊主卧配备独立书房,收藏级产品。
T1A栋F:约259㎡ 3房2厅3卫

T1A栋F户型格局感觉是T1A栋D户型的削弱版,尺度更小,东西向面宽缩短,减少了一个房间。相同的景观面,但该户型楼层更高。不足之处在于,“中央公卫”设计很突兀,狭长的过道有点浪费面积。
T1B栋B/C:约221-227㎡ 3房2厅3卫

T1B栋B/C与T1A栋B/C格局相同,只是面积上略有差异。位置不如T1A栋,但是也能看不错的海景。个人认为C户型位置要优于B户型,因为南面海景和北面湾景视角都要大一点。
T1B栋A/D:约280㎡ 3房2厅4卫
T1B栋D与T1A栋F户型格局相似,但是终于把“中央公卫”去掉了,换成吧台,明显协调了许多。东端头无遮挡,270°景观,适合看日出。
A户型与D对称,位于东端头位,但是T2栋和T1A栋会对270°的景观的完整性有影响。
T1B栋E:约409㎡ 4房2厅5卫+工人房

409平的超级平层,四套间设计,动静分区,井然有序。西端头公共空间“L”形超大面宽非常气派;卧室都在东侧,远离T2办公楼,有私密起居室,宁静怡然。仅存在T1B栋33-38层,数量稀缺。
T1B栋F:约404㎡ 4房2厅5卫+工人房

户型四套间设计,配备工人房,主佣分区,竖厅布局,约12m双厅进深,空间利用率很高。东端头位置,所有卧室都有开阔的景观,270°景观完全无遮挡。只存在T1B栋33-38层,仅6套。
华侨城新玺样板间展示:






【华侨城新玺开发商售楼处咨询/预约电话☎️ 400-811-3080(中介勿扰)】
✅ 本项目暂不接受临时到访,过来参观样板房请记得提前来电预约!
✅ 为您安排楼盘现场销售全程接待并讲解,给您更贴心的看房体验!
温馨提醒:我们楼盘售楼部400电话没有设置任何所谓的“分机号”,拨打前请仔细甄别,注意保护个人隐私!谨防上当!
免责声明🔉:
以上所发布的关于深圳蛇口华侨城新玺名苑公寓的相关信息仅供参考,所有图文资料及说明请以最终批文及双方在楼盘营销中心现场签署的买卖合同为准;本图文内容如无意中侵犯某方权益,请联系我们将会及时处理。
声明:本文由入驻焦点开放平台的作者撰写,除焦点官方账号外,观点仅代表作者本人,不代表焦点立场。
