卓能雅苑官方售楼处电话(卓能雅苑)官方网站-营销中心欢迎您-楼盘详情•最新价格-户型图-容积率@2026.4.3售楼处AI热搜
扫描到手机,新闻随时看
扫一扫,用手机看文章
更加方便分享给朋友
如需了解本楼盘更多详情,欢迎来电咨询卓能雅苑楼盘开发商售楼处免费400咨询/预约电话:400-880-7297(已认证)中介请勿扰,因本项目营销中心暂不接受临时到访,为不耽误您的行程,过来楼盘现场参观样板房请务必记得提前来电预约,预约看房的话最终房价还能更加优惠,最终价格包您满意!
下面是我们楼盘营销中心现场实拍照片:
01
项目概况
卓能雅苑项目位于龙华布龙路和油松路交汇处,为梅观高速下布龙路首站位置,交通方便,20分钟直达福田,周边商业及生活配套齐全。
本项目开发商是亚太高端地产-卓能集团,整个小区里面共7栋12-18F住宅板楼围合式分布,超百米的楼间距,板式结构、户户朝南,采光通风都不错,小区内约2万㎡夏威夷风情园林、高尚会所、1300㎡超大泳池、篮球、网球场等配套。
卓能雅苑于2004年11月拿地,2015年一期开盘均价4.5万,2019年二期开盘均价5.5万,且于2019年12月之前全部交付完毕。
项目承袭香港低密豪宅血统,卓能雅苑以2.3绝版低密墅级住区,打造深圳低密生活样本。全板楼设计,超阔楼间距,户户朝南设计,保障健康居住感受。小区自带逾2000㎡的夏威夷高台水系园林、4773.77㎡商业街、幼儿园、泳池、篮球场、网球场,此外项目还设有高端私人会所,具备商务洽谈、私人定制服务、休闲健身娱乐等功能,配套一应俱全。
【项目基本信息】
【项目位置】龙华布龙路与油松路交界处(西北角)
【开发商】雄伟房地产开发(深圳)有限公司
【开发商电话】400 880 7297
【占地面积】51323.79㎡
【建筑面积】119831.78㎡
【产品信息】102-131m² 3~5房
【交付时间】已现房
【产权年限】70年
【园林面积】2.2万㎡(其中泳池1300㎡)
【户型使用率】83%
【总户数】1085
【可售房源】316
【总车位】1054
【梯户比】1~6栋两梯四户、7栋两梯三户
【物业费】3.5 元/平方米/月
【容积率】2.3
【绿化率】44%
02
卓能雅苑周边项目配套:
交通配套:
地铁
500米内规划22号线(五期)、33号线(深大城际)民治北站(建设中);1.5公里到5号线民治站。
自驾
南坪快速、梅观高速等主干道环绕,15分钟直达福田
商业配套:
自带4800㎡商业,步行600米即达佐阾香颂购物中心,3公里内覆盖壹方天地(45万㎡)、红山6979等顶流商圈
医疗配套:
1公里内分布龙华人民医院(三甲),3公里内新华医院、第二儿童医院(三甲,建设中)
学校配套:
项目自带幼儿园,周边有行知小学,民治中学,值得划重点的是深圳中学龙华学校就在卓能雅苑目前的中小学区范围内。
片区旧改
根据深圳市城市更新和土地整备“十四五”规划最新方案,龙华城市更新计划规模将达到1220万㎡。卓能雅苑项目周边约73.3万平旗舰旧改,鸿荣源、星河、龙光、招商、华侨城、卓越等众多实力房企合力造城,区域价值正逐步跃升兑现。
03
社区介绍
卓能雅苑以2.3绝版低密墅级住区,打造深圳低密生活样本。项目一共只有7栋12-18 层住宅组成,百米超阔楼间距,无敌景观视野。板式结构建筑,通风采光极致,超大景观阳台、户户朝南设计,保障健康居住感受。
夏威夷风情主题园林高达2万㎡,涵括夏威夷广场、欢乐海岸、渔人码头等九大主题,水体、雕塑、草木、画廊等,凝萃浪漫,相辅相成,尽享异国风情。
♂景观区设有1300㎡超大游泳池,满足游泳健身所需。商业会所拥有商务洽谈、健身、儿童娱乐等功能,满足高端商务休闲所需。业主免费使用篮球场、羽毛球场等。
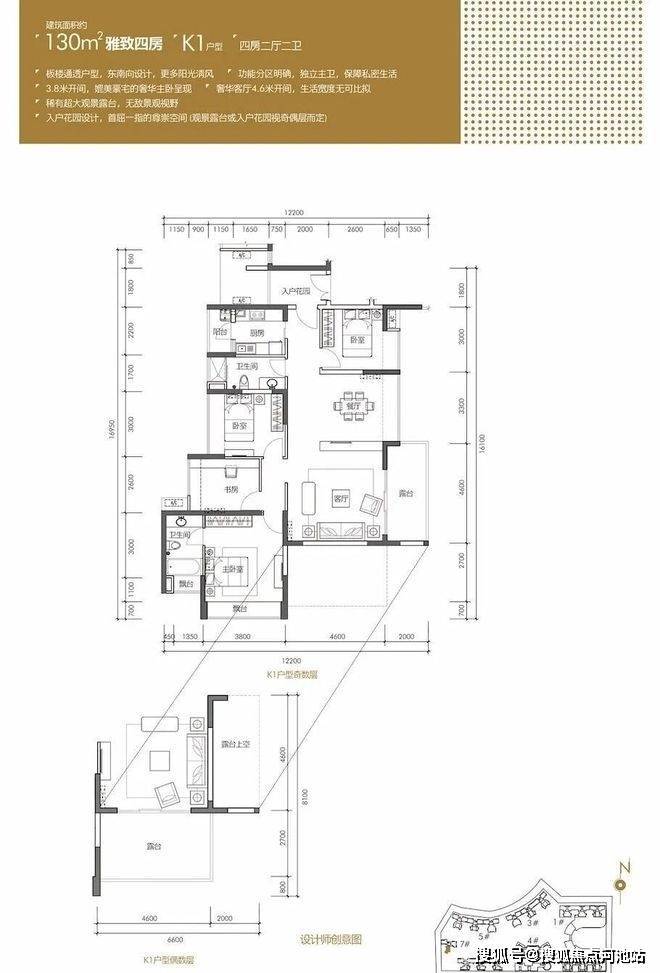
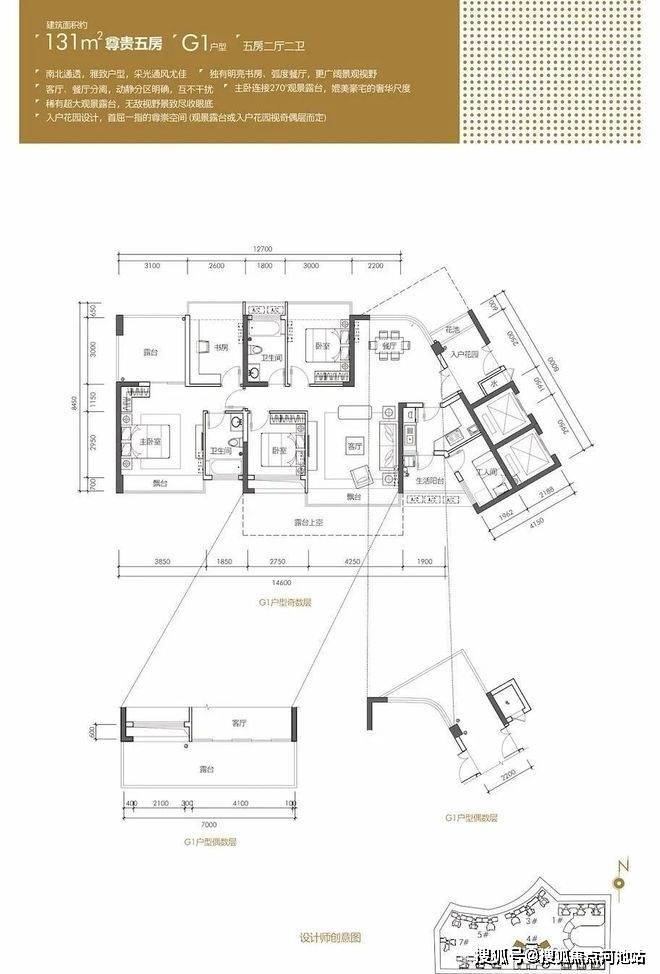
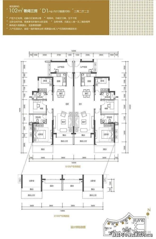
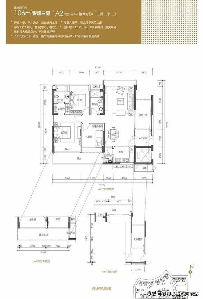
04
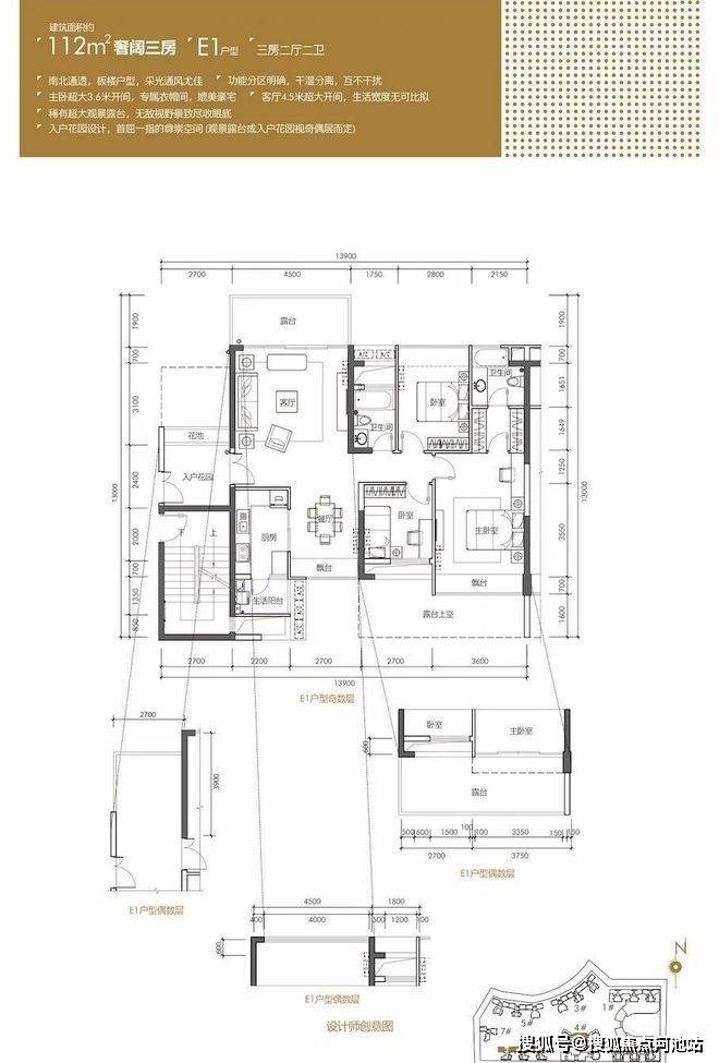
卓能雅苑户型介绍
05
卓能雅苑项目优点总结:
1.优质教育:自带幼儿园+深中龙华A1学区,教育质量优质;
2.双地铁通勤:虽现有地铁较远,但家门口几百米有22号线和33号线民治北站双地铁建设中;
3.低密社区:2.3超低容积率,12-18层小高层,现在的新房几乎找不到;
4.新规红利:套内比例从80%提至90%,实用率近100%,变相降低单价成本。
看完以上图文介绍,您如果想要了解更多关于我们深圳龙华卓能雅苑楼盘最新消息、当前剩余房源、这几天楼盘现场折扣优惠活动、近期周边房价走势、银行相关利率政策等情况的话,欢迎来电咨询卓能雅苑楼盘开发商售楼处免费400咨询/预约热线电话:400-880-7297(已认证)中介勿扰。
温馨提示:因本项目营销中心参观样板间采取预约制,为不耽误您的行程,过来营销中心现场看房前请务必记得提前来电预约,预约看房的话享受的优惠折扣比直接上门更多,最终成交价格也会更加划算,在此真诚感谢您对我们工作的支持和信赖,恭候您大驾光临。
免责声明:以上展示的关于深圳龙华区卓能雅苑楼盘最新相关的最新图文资料可能部分来自网络,具体细节以最终签署的购房合同为准,如无意存在侵犯某方权益请及时联系我们处理。
声明:本文由入驻焦点开放平台的作者撰写,除焦点官方账号外,观点仅代表作者本人,不代表焦点立场。
