绿景白石洲·璟公馆,绿景白石洲璟庭精装准现楼,约45-180平深圳湾C位优质公寓
扫描到手机,新闻随时看
扫一扫,用手机看文章
更加方便分享给朋友
本项目地理位置优越,东是华侨城豪宅区,南有深圳湾超级总部基地,西临高新园,北靠塘朗山!
如需了解本楼盘更多详情,欢迎来电咨询深圳南山绿景白石洲楼盘开发商售楼处免费400咨询/预约电话:400-811-3080(已认证)中介请勿扰,因近期参观的人员太多,本项目营销中心暂不接受临时到访,为不耽误您的行程,过来楼盘现场参观样板房请务必记得提前来电预约,预约看房的话最终房价还能更加优惠,最终价格包您满意!
项目基础资料
【发展商】绿景天盛集团
【项目总名称】 绿景白石洲
【项目总建面】约500万平
【本次推售】绿景璟庭(一期)
【开发商电话】400 811 3080
【一期占地】约3万
【一期建面】约46万平
【产权年限】70年
【本次推售】住宅
【推售户数】1257套
【推售面积】110-125-187平
【总楼层】74层
【层高】3米
【梯户比】高区3梯6户、低区4梯7户
【产品面积】110-125-187平米
【使用率】71%
【单价】约9万
【车位数】1983个
【交楼标准】精装
【交付时间】2025年年底
【物业费】8.8元
【物业公司】绿景物业
绿景白石洲项目核心优势非常突出:“南山核心地段、70年产权、民水民电、通燃气、带阳台”。这在公寓产品中确实属于稀缺资源。但投资不能只看优点,我们需要全面衡量。
一、 绿景白石洲项目核心优势(为什么它会吸引人)
1. 地段稀缺,价值锚点:南山是深圳的产业和经济核心,白石洲旧改是深圳的“航母级”城市更新项目。占据这个位置,意味着项目能享受到未来整个片区升级换代带来的巨大红利,包括高净值人群的导入和成熟的商业配套。这是其最核心的价值支撑。
绿景白石洲规划总平面图
2. 产品属性,优于一般公寓:
· 70年产权:与普通住宅土地使用权一致,消除了40-50年产权到期后续期的顾虑。
· 民水民电、通燃气:极大地降低了长期居住的生活成本,并提升了居住体验感,使其更接近“类住宅”,无论是自住还是出租都更具吸引力。
· 带阳台:改善了公寓常见的通风采光问题,是产品设计上的加分项。
绿景白石洲·璟公馆平面图
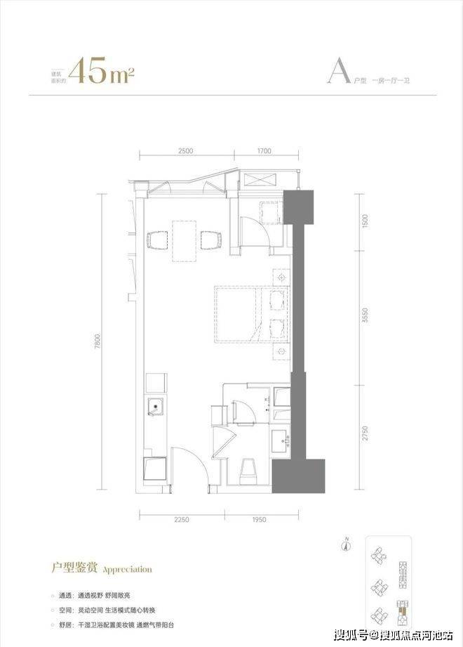
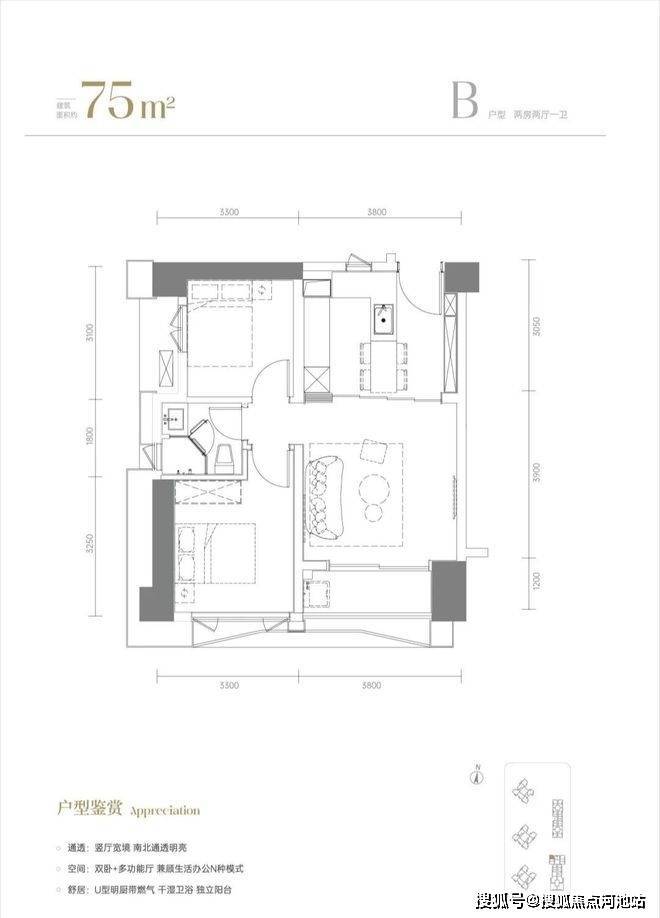
绿景白石洲公寓户型图
3. 准现房与品牌背书:2026年交房,相比很多期房,等待周期较短,风险相对可控。绿景作为开发运营商,在白石洲深耕,对项目品质和后期物业有一定保障。
看完以上图文介绍,您如果想要了解更多关于我们深圳南山绿景白石洲楼盘最新消息、当前剩余房源、这几天楼盘现场折扣优惠活动、近期周边房价走势、银行相关利率政策等情况的话,欢迎来电咨询绿景白石洲楼盘开发商售楼处免费400咨询/预约热线电话:400-811-3080(已认证)中介勿扰。
温馨提示:因本项目营销中心参观样板间采取预约制,为不耽误您的行程,过来营销中心现场看房前请务必记得提前来电预约,预约看房的话享受的优惠折扣比直接上门更多,最终成交价格也会更加划算,在此真诚感谢您对我们工作的支持和信赖,恭候您大驾光临。
免责声明:以上展示的关于深圳绿景白石洲楼盘最新相关的最新图文资料可能部分来自网络,具体细节以最终签署的购房合同为准,如无意存在侵犯某方权益请及时联系我们处理。
声明:本文由入驻焦点开放平台的作者撰写,除焦点官方账号外,观点仅代表作者本人,不代表焦点立场。
