花样年好时光(坪山)花样年好时光房价/户型图/样板间/规划图/交房/项目配套

搜狐焦点河池站 2025-10-14 17:49:00
用手机看
扫描到手机,新闻随时看

扫一扫,用手机看文章
更加方便分享给朋友

从买房必备3件套来分析,家门口的益田假日世界购物中心也是坪山最有名的商业,14/16号地铁线坪山围站距离仅400米,楼下的幼儿园跟日新小学也可以做到目送式教育,如果想读好点的初中也有深实验是在学区范围,总体评…

最新消息:深圳坪山新房最近热度非常高,花样年好时光,今天开始清盘特惠!预约看房折后单价2.5万左右/㎡,总价183万起,现房精装即买即住!数量有限先到先得!

如需了解本楼盘更多详情,欢迎来电咨询深圳坪山花样年好时光开发商售楼处免费400咨询/预约电话:400-811-3080(已认证)中介请勿扰,因近期参观的人员太多,本项目营销中心暂不接受临时到访,为不耽误您的行程,过来楼盘现场参观样板房请务必记得提前来电预约,预约看房的话最终房价还能更加优惠,最终价格包您满意!

具体户型价格区间(以下价格仅供参考,看房预约还可以便宜很多!)

70㎡2房,总价183万起,

80㎡3房1卫,总价213万起,

95㎡3房2卫,总价215-255万

100㎡3房2卫,总价223-256万

122㎡4房,总价303-329万

下面是花样年好时光备案价格:

坪山锦龙,花样年好时光于2021年10月27日取证入市,本次推出1栋A/B/C/D/E/F座,共777套房源,面积有70㎡的2房2厅1卫,80㎡的3房2厅1卫,95-100-110㎡的3房2厅2卫,118㎡的4房2厅2卫户型备案均价4.21万/㎡,备案单价3.7-4.54万/㎡,总价303-539万/套,现房精装交付。

花样年好时光,是坪山老城区域为数不多在售的新盘,且是现房即买即住,一路之隔就是坪山最有名的益田假日广场,周边居住氛围浓厚,商业配套完善,14/16号双地铁线交汇。

项目区域及楼盘介绍

花样年好时光,位于坪山区东纵路与金碧路交汇处,位居坪山区中心城区核心地段,毗邻地铁14/16号线换乘站坪山围站(步行约200米),是双地铁覆盖的TOD综合体项目。项目地处坪山“六馆一城”文化中心辐射范围,紧邻坪山大道、南坪快速等主干道,30分钟可直达福田中心区,1小时接驳香港西九龙站,形成“轨道交通+高速路网”的立体交通体系。

项目周边集聚坪山区重点发展的新能源汽车、生物医药、人工智能等战略性新兴产业。坪山区2024年规上工业总产值突破6000亿元,战略性新兴产业占比超九成,依托“6+3”产业集群政策,已形成千亿级先进制造业基地,项目邻近比亚迪总部、大工业区及坪山高新南等产业园区,与规划中的大运AI小镇(龙岗)形成产业联动,吸引高精尖人才聚集。

花样年好时光,由花样年集团打造,总占地面积约3.87万㎡,总建筑面积约33.44万㎡,计容建筑面积约23.95万㎡,容积率约6.18,绿化率约40%,分03/04两个地块开发,有连廊相连,共9栋住宅。

目前花样年好时光在售的是03地块,总占地面积约2.25万㎡,总建筑面积约18.61万㎡,计容建筑面积约13.31万㎡,容积率5.49,绿化率40%,共由6栋43-46层高的住宅组成,其中1栋A/B/E座住宅44F,1栋C座住宅46F,1栋D/F座住宅43F,2栋规划1所九班制幼儿园。

04地块,总占地面积约1.61万㎡,总建筑面积约14.81万㎡,计容建筑面积约10.64万㎡,容积率6.32,绿化率30%,共由3栋43层高的住宅组成,其中1栋A/B/C座住宅43F,1栋D座写字楼21F。

花样年好时光项目总规划1696户,其中商品房1289户,回迁房407户,1栋B座3梯4户,其它全部3梯5户设计,规划停车位2321个,其中可供业主使用车位1770个,车位占比约1:1.4。

【项目基本信息】

开发商:深圳市花样年房地产开发有限公司

开发商电话:400 811 3080

物业公司:深圳市花样年国际物业服务有限公司龙岗分公司

物业管理费:3.8元/㎡

总占地面积:约3.87万㎡

总建筑面积:约33.44万㎡

容积率:5.49

绿化率:40%

产权年限:2019.10-2089.10(70年)

总户数:1696户,可售商品房1289套

总栋数及楼高:9栋,43-44-46F。

梯户比:1栋B座3梯4户,其它全部3梯5户

停车位:1770个

车位占比:1:1.04

交房时间:现房

交付标准:精装修

花样年好时光项目优劣势

1、首先说下地段,花样年好时光所在的板块是坪山锦龙片区,也是坪山老中心地带,周边居住氛围浓厚。

2、从买房必备3件套来分析,家门口的益田假日世界购物中心也是坪山最有名的商业,14/16号地铁线坪山围站距离仅400米,楼下的幼儿园跟日新小学也可以做到目送式教育,如果想读好点的初中也有深实验是在学区范围,总体评分还是不错的。

3、花样年好时光也是现房精装交付,即买即住,所见即所得,不用担心烂尾或者质量问题,也可以做到买哪套看哪套。

4、花样年好时光这次给到的优惠力度还是比较大的,是该楼盘有史以来的最低折扣跟价格,190万出头就可以上车2房,220万出头买3房,330万出头买4房,且都是精装现房。

5、光样年好时光不加赠送得房率普遍在73%左右,加上赠送后是85%的得房率,比较中规中矩。

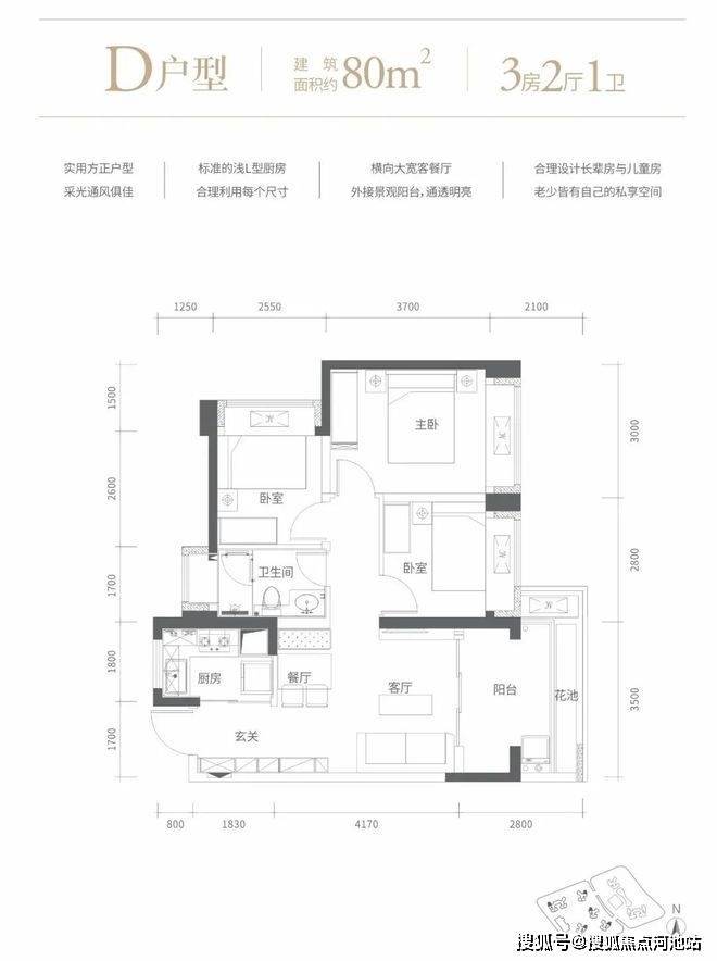
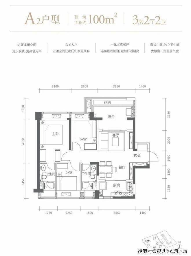
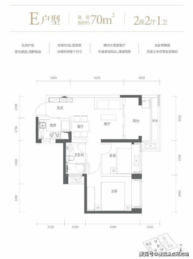
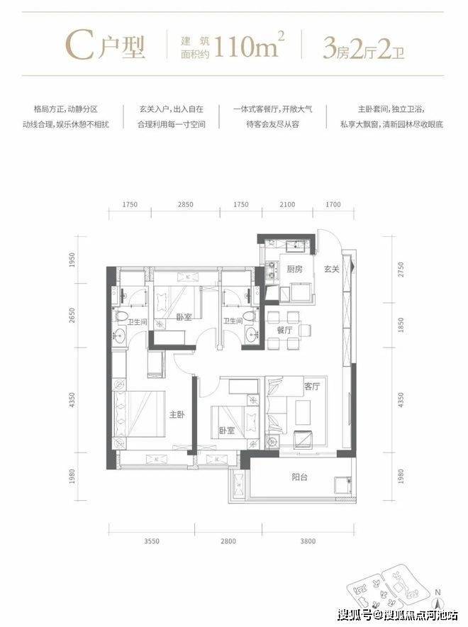
花样年好时光户型图以及分析:

70㎡的2房2厅1卫,设计的是竖厅格局,客厅3.45米开间,进门玄关,LDKB一体化设计,2个卧室分别做到了主卧13.2㎡/次卧8.64㎡(包含墙体飘窗),L型厨房,卫生间干湿分离,得房率72.47%(不含赠送),有朝东向或西向。

85㎡的3房2厅1卫,设计的是经典竖厅格局,客厅3.5米开间,进门玄关,LDKB一体化设计,动静分区,3个卧室分别做到了主卧12.9㎡/次卧8.96㎡/次卧8.16㎡(包含墙体飘窗),L型厨房,卫生间干湿分离,得房率72.48%(不含赠送),有朝东向或西向。

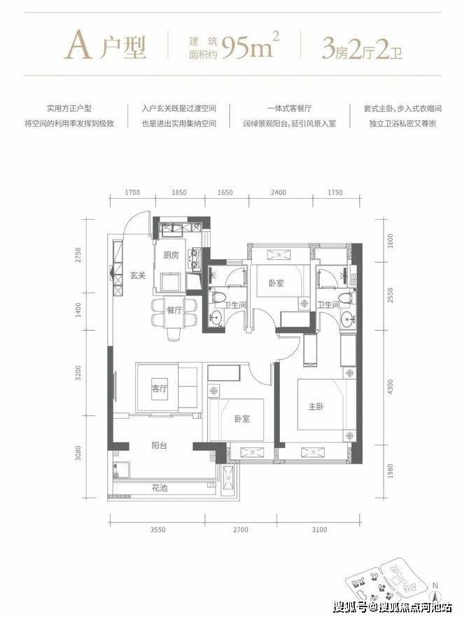
95㎡的3房2厅2卫,设计的是经典竖厅格局,客厅3.55米开间,进门玄关,LDKB一体化设计,动静分区,三开间朝南,3个卧室分别做到了主卧15.19㎡/次卧8.64㎡/次卧7.56㎡(包含墙体飘窗),L型厨房,卫生间干湿分离,得房率72.48%(不含赠送),有东南、西南或正南朝向。

100㎡的3房2厅2卫,A1户型,设计的是竖厅格局,客厅3.55米开间,进门玄关,LDKB一体化设计,动静分区,3个卧室分别做到了主卧15.19㎡/次卧8.64㎡/次卧7.93㎡(包含墙体飘窗),L型厨房,卫生间干湿分离,得房率72.63%(不含赠送),阳台主朝西北向。

100㎡的3房2厅2卫,A2户型,设计的是竖厅格局,客厅3.65米开间,进门玄关,LDKB一体化设计,动静分区,3个卧室分别做到了主卧15.19㎡/次卧8.32㎡/次卧7.76㎡(包含墙体飘窗),L型厨房,卫生间干湿分离,得房率72.63%(不含赠送),阳台主朝东北向。

110㎡的3房2厅2卫,A2户型,设计的是经典竖厅格局,客厅3.8米开间,进门玄关,LDKB一体化设计,动静分区,三开间朝南,3个卧室分别做到了主卧17.57㎡/次卧9.26㎡/次卧8.96㎡(包含墙体飘窗),L型厨房,卫生间干湿分离,得房率73.97%(不含赠送),西南朝向。

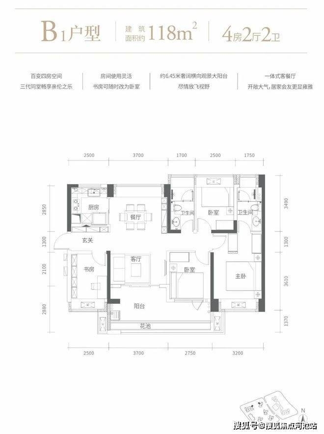
118㎡的4房2厅2卫,设计的是竖厅南北通透格局,客厅3.7米开间,进门玄关,四开间朝南,4个卧室分别做到了主卧15.71㎡/次卧9.02㎡/次卧8.72㎡/次卧8.27㎡(包含墙体飘窗),客厅连接次卧出6.45米长的大阳台,U型厨房,卫生间干湿分离,得房率73.44%(不含赠送),阳台主朝东南或西南向。

花样年好时光周边配套

交通方面:14/16双地铁配套,就近坪山高铁站

花样年好时光位于坪山区坪山街道东纵路和金碧路交汇处,由金碧路、东纵路、坪河北路及洋岭路围合而成。

相邻坪山大道,通过连接南坪快速、水官高速对接南山、罗湖等区域;距离坪山高铁站约2.1公里(百度地图直线距离,仅供参考),方便城际穿梭。

沿东纵路约200米左右,可步行至地铁坪山围站。坪山围站是地铁14号线和16号线的交汇换乘站,两条线预计分别于2022年和2023年通车运营。

14号线对项目乃至坪山区来说,是至关重要的一条地铁线。它作为深圳东部地铁快线,起快速连通坪山、龙岗与福田中心区的作用。

通车后,预计从坪山围到福田岗厦北约30分钟,有效地缩减两地的时空距离,极大地改善坪山置业者与市区等片区的通勤配套环境。

教育方面:中心区位享多重配套,家门口规划学校

项目处于坪山的老中心地带,配套相对成熟完善。沿着坪山大道向北,聚集了区政府、六馆一城、坪山高铁站、中心公园和医疗配套等丰富资源。

往南是重点打造的商住区域,中小企业基地基本落成投入使用,世茂、华侨城将建成区域内约300米的双子塔摩天地标,打造深圳的东部中心片区。

此外,随着招商花园城、六和城、财富城、深城投中城和恒大城等一系列商品房项目入市,整体居住氛围和环境都在不断提升。

初中学区为坪山中学与中山中学组成的大学区(实际以教育局等相关部门公布为准)。

项目小学学区范围示意图:

项目初中学区范围示意图:

商业方面:

与项目一路之隔的六和城配建有益田假日世界,是坪山区当前规模最大,业态组合最为丰富的购物场所之一,是坪山居民零售、餐饮、娱乐休闲的主要选择。

1.5公里范围内,还布局有天虹商场、义乌商城、万福佳购物广场及各类生活配套,项目自身也规划有约4万㎡社区商业,满足居家需求。

未来,随着项目周边的世茂广场、华侨城大厦、恒大城等落成,将持续为片区注入更多元的商业配套。

旧改发力:周边旧改规划云集,想象空间大

坪山的变化足以日新月异形容,几乎全城处于大拆大建当中。

项目周边除了恒大城(飞西旧改)外,还布局有坪山围旧改、飞东旧改、正三甲旧改等多个大体量潜力项目,区域价值可期。

周边3公里局部范围内有超过20个地块纳入更新计划,吸引了华润、恒大、深城投、碧桂园、嘉霖、东关等房企入驻参与。

待旧改项目逐一兑现,区域城建面貌、各类城市配套都将有翻天覆地的改善。

以上所展示的图文就是关于深圳坪山花样年好时光楼盘最新介绍说明,看完以上内容,如果您对我们楼盘还有任何疑问的话,欢迎联系花样年好时光楼盘开发商售楼处免费400热线电话:400-811-3080(已认证,中介请勿扰)进行咨询或者安排本楼盘我们楼盘现场销售人员在线为您一对一服务,现场销售人员会把楼盘的新资料、样板间图片视频、通过手机的方式发给您看、您不需要过来楼盘现场都能够了解个大概,还可以了解到本楼盘的优点缺点、房产政策、银行政策、积分入学、都给您讲解的明明白白。现场销售还可以为您对我们楼盘进行全面更详细的介绍,包含项目开盘详情、近期房价、楼层高低、户型朝向分析、最新折扣优惠活动等情况,而且还可以避免中介虚报价格,耽误您的时间和精力,中介所给的优惠我们全都可以给到,让您买的放心,住的舒心!买房是大事,记得及时联系我们。

免责声明:以上展示的关于深圳坪山花样年好时光最新图文资料可能有部分来自于互联网,最终信息以在营销中心现场签署的购房合同为准,如以上图片或者文字无意中侵犯某方权益的话,请及时联系我们将配合处理。

声明:本文由入驻焦点开放平台的作者撰写,除焦点官方账号外,观点仅代表作者本人,不代表焦点立场。