臻林悦湾汇(臻林悦湾汇2025年最新发布)臻林悦湾汇-楼盘详情_房价_户型_小区环境
扫描到手机,新闻随时看
扫一扫,用手机看文章
更加方便分享给朋友
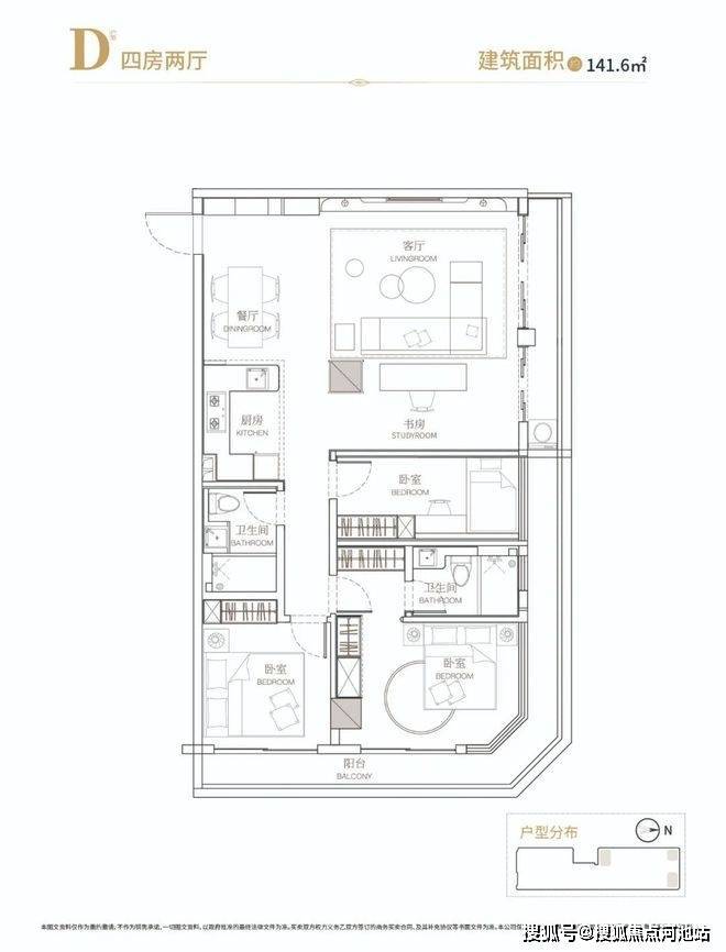
户型品鉴:
项目文体公园
零距离中山公园,是长在公园里的房子,占据约49万㎡恒久城市公园景观。
项目商业配套
华润万象天地、壹方城购物中心、欢乐海岸、华润深圳湾万象城、万象前海、前海山姆会员店旗舰店,尽享国际都市生活圈。
臻林·悦湾汇延请三大国际知名酒店集团,为项目精测收益数据;
1、雅诗阁优选公寓定价预测:预计综合房型平均日租房价为人民币735元/晚
2、洲际行政公寓定价预测:预计综合房型平均日租房价为人民币730元/晚
3、温德姆至尊总裁行政公寓定价预测:预计综合房型平均日租房价为人民币750元/晚
综合各酒店集团预测数据,可取各酒店基于市场的预测价格,得出各房型投资回报率的极致精准数据。
投资回报率ROI=年均收益÷预测均价(6.8w)÷建筑面积
声明:本文由入驻焦点开放平台的作者撰写,除焦点官方账号外,观点仅代表作者本人,不代表焦点立场。
