后海招商玺官方售楼处- 2026最新房价|在售户型详解|项目详情|营销中心
扫描到手机,新闻随时看
扫一扫,用手机看文章
更加方便分享给朋友
南山蛇口,后海招商玺花园计划将在2025年12月份取证入市,本次首推1栋1单元,仅42套房源,面积有197-237㎡的4房2厅3卫户型各21套,板楼一梯一户,专梯入户设计,层高3.3米,价格方面可以参考深圳湾雲玺,现在已经有吹风价爆出,209平户型总价3000-3400万/套,269平户型总价4100-4600万/套,总体单价在14.35-17.1万/平,这次后海玺花园也是带精装交付,预计实际开盘起步门槛不会低于2500万/套。
【后海招商玺开发商售楼处400免费咨询/预约电话:400-800-9113,中介勿扰】
温馨提示:过来营销中心参观样板间请记得提前拨打售楼处400热线预约,感谢您的配合!
后海招商玺家园,由招商集团打造,总占地面积约1.49万㎡,总建筑面积约15.08万㎡,计容建筑面积约11.13万㎡,容积率6.59,绿化率30%,共由4栋21-46层高住宅组成,其中1栋1单元住宅21F,1栋2/3单元住宅36F,1栋4单元回迁房46F,2栋是1所幼儿园。
总规划548户,1栋1单元2梯2户,1栋2/3单元3梯3户设计,地下室有4层,规划700个车位,车位配比约1:1.28。
楼盘基础信息
1、开发商:深圳市招商蛇口华湾地产开发有限公司
2、物业公司:招商积余
3、物业管理费:待定
4、总占地面积:1.49万㎡
5、总建筑面积:15.08万㎡
6、容积率:6.59
7、绿化率:30%
8、产权年限:住宅70年,2025年6月-2095年6月
9、总户数:548户,其中可售商品房约258户
10、总栋数及楼高:4栋,21-46层
11、层高:3.3米
12、梯户比:1栋1单元楼王2梯2户,2/3单元3梯3户
13、车位数:700个
14、车位占比:1:1.28
15、交房时间:期房待定,预计在2028年底
16、交房标准:精装
17、开发商电话:400 800 9113
项目户型介绍
197㎡的4房2厅3卫,设计的是竖厅双龙抱珠格局,一梯一户,专梯入户设计,赠送私用电梯厅,客餐厅7.95米开间,LDKB一体化设计,四开间朝南,分别做到了主卧28.2㎡/次卧套间18.3㎡/次卧14.87㎡/次卧11.71㎡(包含墙体飘窗),客厅连接餐厅出10米长的超大观景阳台约22平,U型厨房,卫生间干湿分离,得房率约100%(包含赠送),西南朝向。
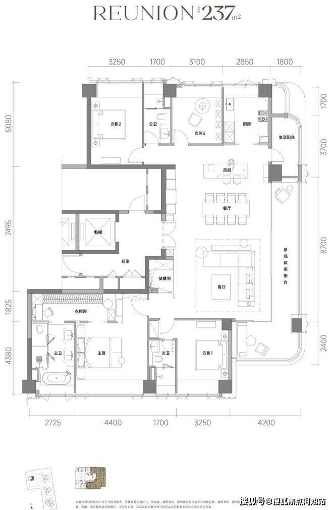
237㎡的4房2厅3卫,设计的是竖厅双龙抱珠格局,一梯一户,专梯入户设计,赠送私用电梯厅,客餐厅8.7米开间,LDKB一体化设计,分别做到了主卧35.3㎡/次卧套间15.93㎡/次卧16.51㎡/次卧12.34㎡(包含墙体飘窗),客厅连接餐厅出8.7米长的超大观景阳台约15.66平,另外东南向还有个观景阳台约10.08平,西厨位置有6.66平生活阳台,U型厨房另设西厨岛台,卫生间干湿分离,得房率约100%(包含赠送),东北朝向。
交通配套:后海招商玺交通优势显著,轨道交通方面,紧邻地铁2号线海月站和湾厦站(步行约700米),2站可达后海站并换乘11/13号线,10分钟直达市民中心站(福田CBD核心)。陆路交通方面,下楼就是后海大道,通达深圳多条主干道如望海路、东滨路、滨海大道及白石路,15分钟可达南山科技园,20分钟覆盖前海、福田、宝中。特殊交通方面,太子湾邮轮母港提供跨境水上航线,可停靠22万吨级世界最大邮轮,30分钟直达香港机场。
学校配套:后海招商玺当前对口南山区优质公立学校,根据南山区教育局2025年学区划分地图,项目属于育才二小+育才二中学区范围,这两所学校均属南山第一梯队学区。育才二小是南山区重点公立小学,育才二中为区属优质中学,教育质量稳定可靠。
深圳后海招商玺开发商售楼处电话 400-800-9113(中介勿扰)
过来售楼中心看房请提前预约,可尊享内部特惠,价格包您满意!
为您安排楼盘内场专业销售人员一对一接待服务!让你买的放心,住的舒心!
免责声明🔉:
以上所发布的关于楼盘相关图文信息仅供您买房前参考,以上所有关于本楼盘的图文资料及说明请以最终以项目批文及双方在楼盘营销中心现场签署的买卖最终合同为准;本图文内容如无意中侵犯到某方权益,请联系我们将会及时处理。
声明:本文由入驻焦点开放平台的作者撰写,除焦点官方账号外,观点仅代表作者本人,不代表焦点立场。
