2024一文读懂深圳紫和嘉园优缺点!分析一下紫和嘉园值得买吗?
扫描到手机,新闻随时看
扫一扫,用手机看文章
更加方便分享给朋友
紫和嘉园,共推出658套建面约66-98㎡住宅,备案均价约3.95万/㎡,单价区间约3.5-4.3万/㎡,总价区间约237-419万/套。折后单价3.1万/㎡起,总价206-364万;如需了解更多详情,欢迎咨询紫和嘉园售楼处电话400 811 3080,过来我们营销中心看房提前来电预约价格还能更优惠。
【深圳紫和嘉园售楼中心400免费咨询/预约电话📞:400-811-3080,中介勿扰】
温馨提示:本项目参观样板间采取预约制,过来现场看房请提前来电预约,感谢您的配合。
【奢享低密】低密社区 舒享全龄互动
容积率低至3.2,绿化率高达40%,是深圳少见无超高层项目。
台地式园林,抬高约5.6m,人车分流,隔尘防潮,干净清爽。
匠心打造约10m挑高城市客厅尺度主入口、阳光大草坪、云端泳池、童趣乐园、景观跑道、林间会所、健身空间等全龄化互动功能空间。
精心打造五重归家礼序,让回家成为愉悦尊崇的归心之旅。
紫和嘉园约98㎡:精致四房,小面积大享受
【精工品质】品质筑家 致敬美好生活
精益求精,高标准打造中空LOW- E玻璃、保温隔音楼板、同层排水系统、6S安防系统等,减少生活困扰,精工品质筑家,致敬美好生活!
平面落位图
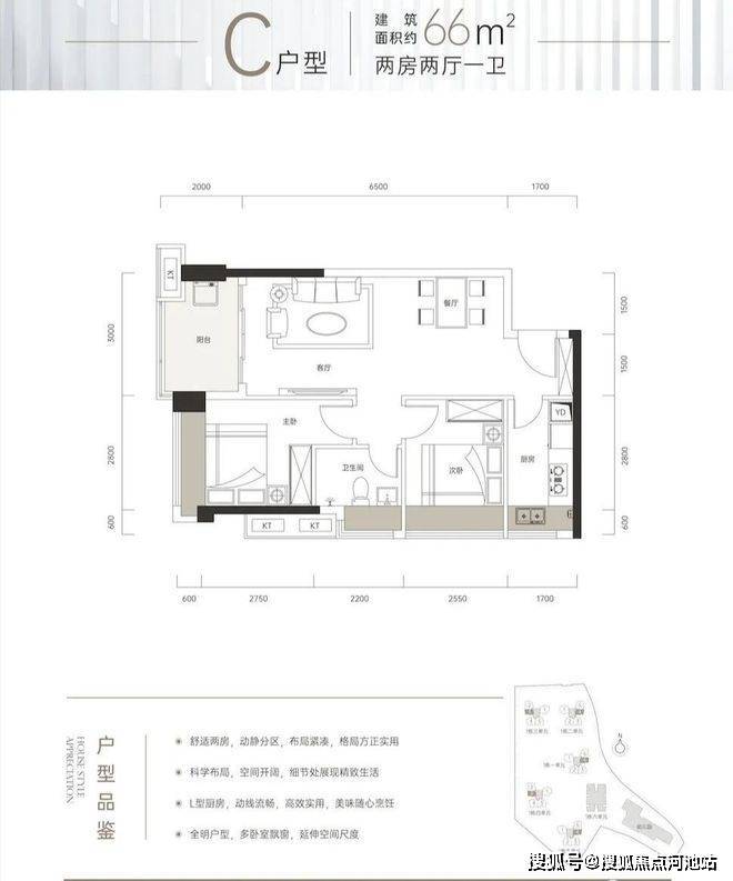
约66㎡:舒适两房,动静分区
约89㎡:阔绰三房,释放更多生活尺度
约94㎡:全能三房,打造弹性生活空间
免责声明🔉:
以上所发布的关于楼盘相关图文信息仅供您买房前参考,以上所有关于本楼盘的图文资料及说明请以最终以项目批文及双方在楼盘营销中心现场签署的买卖最终合同为准;本图文内容如无意中侵犯到某方权益,请联系我们将会及时处理。
声明:本文由入驻焦点开放平台的作者撰写,除焦点官方账号外,观点仅代表作者本人,不代表焦点立场。
