满京华金硕悦府,光明准现楼发售无需久候,即买即享光明中心成熟生活圈便捷体验
扫描到手机,新闻随时看
扫一扫,用手机看文章
更加方便分享给朋友
满京华金硕悦府最新房源和价格、折扣公布:
87平总价约352万(47楼顶楼一套)
107平总价约428-465万
117平总价约486-545万
157平总价约685-730万
金硕悦府折扣:可以谈(咨询电话400 800 9113)
99折+96折+98折+99折
满京华金硕和府最新价格和折扣:可以谈
88平360万
114平总价520万
119平总价490-570万
和府3房97+98+98+98+98
4房97+98+98+98
满京华金硕臻府最新价格和折扣:可以谈!
138平折后640-680万
204平折后1050-1150万
满京华金硕臻府:
202平最新折扣体系:可以谈
-20x0.98x0.98x0.98
138平最新折扣体系
-20x0.98x0.98x0.99
(温馨提醒,以上价格仅供参考,看房预约还可以享受开发商内场折扣优惠,比跟中介过来最终的价格还要便宜,折扣还要更低!详情欢迎咨询深圳光明满京华金硕开发商官方电话:400 800 9113 进行在线咨询或预约看房)。
下面是满京华金硕营销中心现场实拍照片:
项目介绍:
满京华金硕华府项目位于光明区新湖街道佛子坳路与狮明路交汇处东南侧,推出的住宅建筑面积为88-141㎡3-4居室。项目位于光明区中心中部,与科学公园隔路相望,视线开阔景色宜人,周边大型展览场馆较多。
下面是周边配套:
满京华金硕项目鸟瞰效果图:
【项目基本信息】
【开发商】:深圳市满京华置业投资有限公司
【地址】:深圳·光明中心·光辉大道与狮山三街交汇处·6号线光明站D出口约800m
【总占地面积】:约11万㎡
【总建筑面积】:约88万㎡
【金硕和府占地面积】:约0.88万㎡
【金硕和府建筑面积】:约7.48万㎡
【金硕和府总套数】:458户
【产品户型】:建筑面积约85-88m²三房两卫、建筑面积约110-114m²四房两卫、建筑面积约113-119㎡四房两卫
【开发商官方电话】400 800 9113(已认证)
【交付标准】:全装修
【梯户比】:1栋49F 3T6户、2栋33F 2T/6户
【车位比】:1:1.10(505个)
【容积率】:5.74
【物业费】:4.3元/㎡/月
【产权年限】:70年
【批地时间】:2023年4月
【交楼时间】:2026年12月31日
下面是满京华金硕楼盘小区实拍照片:
1、100平以下全朝南、100平以上全朝北(客厅朝向)
2、三房单价便宜(4.4-4.6万)、四房单价贵(4.7-5万)
3、100平以下全竖厅、100平以上全横厅
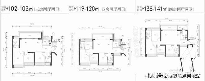
(满京华项目共5种户型:89平三房一卫、99平三房两卫、102平三房两卫、120平四房两卫、139平四房两卫)。
按照开盘92折计算,89平约339万起,99平约388万起,102平约417万起,120平约505万起,139平约611万起。
【按面积汇总】
均价:89平<99平<120平<102平<139平
【满京华金硕三房户型分析】
两个户型设计上亮点很多,如都是充分利用飘窗做U型厨房,餐厅正对厨房上菜更方便,S型冰箱位高效利用空间,设置玄关(虽然较狭窄 但是有),1.7米进深阳台,1.5卫干湿分离,卧室洗手间均带飘窗拓展率高。
[89平]市面上一些楼盘70平可以做三房一卫,88平正常是三房两卫,而满京华只做了三房一卫,加上又是西南/东南朝向,属于刚需户型中比较舒适的了
[99平]99平比89平面积大了约10平,多了一个主卫,阳台宽了约10厘米,总价高了65万,相比就不如89平有性价比了。适合对两卫比较有需求的家庭。
【满京华金硕四房分析】
三个户型布局相似,120平相比102平多了一个卧室,139平相比120平多了一个生活阳台,随着面积增加,主卧开间从3.15-3.3-3.7米,总价也从489到567到704万,分别涨了78万和137万。
[139平]139的优势是奢阔主卧+生活阳台,性价比不如120平
[120平]的优势是四房,性价比不如102平
[102平]102平次卧开间均为2.9米,而120平和139平为2.7米和2.9米,99平为2.7米和2.4米,102平相比99平从竖厅变为横厅,总价高了约30万,整体性价比较高。
想要了解更多最新房价详情欢迎联系满京华开发商售楼部官方电话 400 800 9113(中介勿扰)。
满京华金硕楼盘周边配套:
地铁配套:目前项目距离地铁6号线最近的站就是光明站了,大概距离在900米左右,至于光明大街站大概的距离在1.1公里左右,旁边还有正在规划的29号线,距离站点大概在100米左右,建成以后可以直接去南山!
商业配套:项目目前来看商业比较匮乏,入住以后估计更多的依靠楼下底商来,不过好在周边的商业正在完善当中,目前所在的营销中心未来将改为商业,周边还有在建设的星河CoCo city,距离楼盘1.5—2公里左右。距离凤凰城的蓝鲸世界,万达广场在4.5公里左右。
公建配套:项目位于科学公园北侧,目前有在建设的国际美术馆将,科技馆,国际会议中心,还有目前已经建成科学顶。
满金华金硕这个楼盘对口的学校说明:
我们楼盘属于光明的科韵社区,也就是以前的楼村社区转变而来。目前楼盘对口的学校一共有20所,下面是2024年,楼盘对口学校的录取积分情况!(郑重声明:下面所有学校具体入学条件请以当年教育主管部门公布的最终结果为准,本楼盘不承诺买了这里的房子保证一定能上某所学校,请知悉!)
对口学校
1.楼村小学:第八类(29.9)
2.楼村第二学校:第八类(32.3)
3.南科大荔园学校:第八类(27)
4.中山大学附属学校:第八类(30.7)
5.东周小学:第二类(89)
6.华南师范星河小学:第八类(27.7)
7.修远小学:第八类(27.6)
8.深小曙光学校:第一类(93.75)
9.公明中学:第八类(29.5)
10.华夏中学:第八类(30.7)
未来规划及建设的学校:
1.“深外”科韵学校
2.“深小”狮山学校
3.中科院深圳理工附属学校
下面是学校位置航拍示意图:
1、光明中心区 科学公园头排核芯地段;
2、自带超3万㎡创意街区+四大商mall为邻,超30万㎡商圈汇聚;
3、坐拥208万㎡科学公园+五大公园环绕,尽享稀缺绿景;
4、近10余所学校环绕,享高密教育资源,优质教育近在咫尺。
看完以上关于我们深圳光明满京华金硕楼盘最新图文介绍,相信你一定还有一些疑问的?楼盘真实优缺点、当前限时优惠政策、房贷最优技巧、积分入学落实细节?不用纠结,欢迎拨打满京华金硕开发商电话:400 800 9113(官方已认证·可查可验,中介或自媒体勿扰),我们可以帮您安排本楼盘现场销售为您一对一在线解答,避开中介虚报房价,全程如实告知、不夸大、不隐瞒,发送样板间视频、楼盘详细备案资料,帮你算清每一笔购房成本、解读所有房产及房贷政策,让你明明白白买房、安安心心置业;如果您是从外地专程过来深圳买房置业,看房不方便的话,也可以预约我们安排免费专车接送看房【温馨提醒】立即拨打满京华金硕开发商官方400电话进行预约看房,可尊享专属额外折扣优惠,最终价格包您满意,限时72小时有效!
声明:本文由入驻焦点开放平台的作者撰写,除焦点官方账号外,观点仅代表作者本人,不代表焦点立场。
