光明《越秀星科源启》已取证!总价300万起,买89-131㎡3-4房!得房率95-105%
扫描到手机,新闻随时看
扫一扫,用手机看文章
更加方便分享给朋友
最新消息:光明中心区新楼盘【越秀星科源启】计划将在2025年10月左右取证入市,本次首推589套房源,项目总共分三期开发,总占地3.87万㎡,总建面20.3万㎡,一期建面8.5万㎡,一期总户数979户(其中商品房589户,公共租赁住房390户),将推89-131㎡3-4房新规户型。
如需了解本楼盘更多详情,欢迎来电咨询光明越秀星科源启开发商售楼处免费400咨询/预约电话:400-800-9113(已认证)中介请勿扰,本项目营销中心暂不接受临时到访,为不耽误您的行程,过来楼盘现场参观样板房请务必记得提前来电预约,预约看房的话最终房价还能更加优惠,最终价格包您满意!
售楼处实拍照片
越秀星科源启这个楼盘究竟值不值得买?
项目区域及楼盘介绍
越秀星科源启,位于光明区新湖街道光侨路与科学大道交汇处东南侧,地处光明中心区板块,
西北侧与科学公园北翼相邻,东南侧则是充满欢乐的光明欢乐田园,北侧靠近中山大学深圳校区及其附属第七医院,南面距离光明高铁站仅4.8公里
越秀星科源启,由越秀地产打造,总占地面积约3.87万㎡,总建筑面积约20.34万㎡,容积率5.3,绿化率30.03%,分3期3个地块开发,共由10栋住宅组成,其中9栋是商品房,1栋是公租房,配建有1所18班制幼儿园。
越秀星科源启,这次首推的是01地块,总占地面积约1.53万㎡,总建筑面积约13.68万㎡,计容建筑面积约9.55万㎡,容积率6.23,绿化率30.03%,
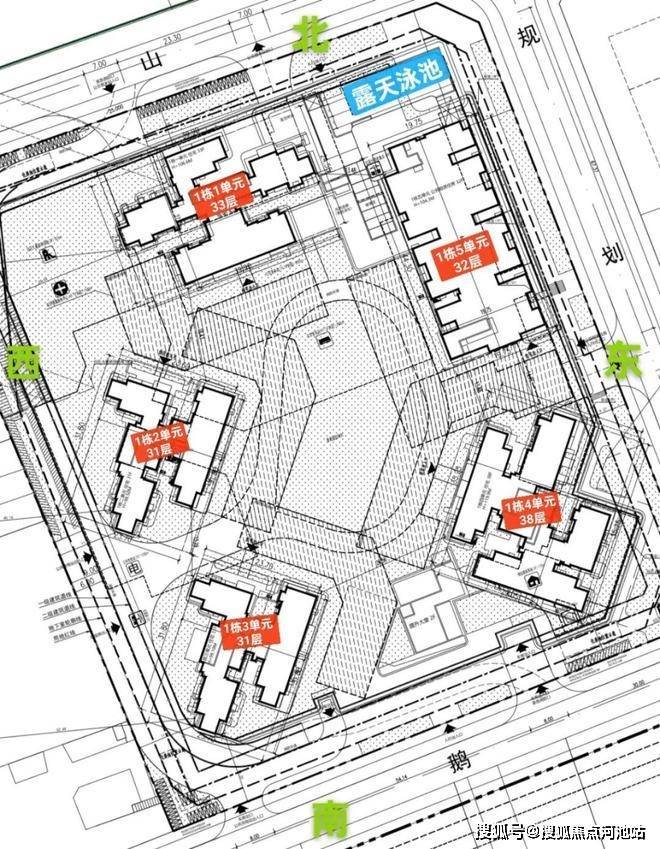
共由5栋总高31-38层的住宅组成,其中1栋1单元住宅33F,1栋2/3单元住宅31F,1栋4单元住宅38F,1栋5单元公租房32F,小区地下车库配建有公交首末站。
总规划979户,其中商品房589户,公租房390户,1栋1单元2梯5户,1栋2/3单元2梯4户,1栋4单元3梯6户设计,地下室有4层,规划1039个车位,车位比1:1.06。
下面是规划平面图:
楼盘基础信息
1、开发商:深圳晟越房地产开发有限公司
2、物业公司:广州越秀物业发展有限公司深圳分公司
3、物业管理费:待定,参考3.9元/㎡
4、总占地面积:1.53万/㎡
5、总建筑面积:13.68万/㎡
6、开发商电话:400 800 9113
7、绿化率:30.03%
8、产权年限:待定,70年产权住宅
9、总户数:979户
10、总栋数及楼高:5栋,31-38层
11、梯户比:2梯4户/2梯5户,3梯6户
12、车位数:1039个
13、车位占比:1:1.06
14、交楼时间:期房,预计在2028年上半年
15、交楼标准:精装
【国企匠心筑造 品质保障】
越秀集团
广州市国资委旗下直属国企,位居2025中国跨国公司TOP 11,总资产超万亿 实力雄厚
越秀地产
香港上市企业,2025年中国房企综合实力TOP7,连续多年"三道红线"保持绿档的房企,财务安全稳健
越秀服务
国家一级资质,以”越+美好生活服务体系”为客户提供美好生活
【国家战略高地 高新产业聚集】
光明科学城,是大湾区综合性国家科学中心(全国四个)核心承载区,汇聚鹏城云脑Ⅲ、超算二期等23个重大科技载体,形成生物医药、高性能材料等七大产业集群,吸引超19万人才进驻
【科学城核芯 科创菁英汇聚】
新湖板块汇聚光明科学城75%重大科技载体,包括深圳理工大学、中山大学(深圳)两所一流科研高校,深圳湾实验室、深圳医学科学院等科研院所,打造“产学研”高度融合区,吸引科创企业入驻,汇聚全球科创菁英
越秀星科源启项目周边配套
交通配套:越秀星汇珑府邻近光侨路及科学大道等主干道,可以快速接驳龙大高速,南光高速,深圳外环高速,通达全市各大区域,小区楼下规划有公交首末站,目前已经开通运营的地铁6号支线“圳美站”距离约900米,6号线光明站距离约1.2公里,3站到凤凰城站可换乘13号地铁线,5站到光明城站,这里可以换乘光明城高铁站,7站到宝安上屋站,12站到南山西丽留仙洞,15站南山高新园,19站到后海。
学校配套:越秀星汇珑府自带1所18班制幼儿园,邻近地块规划有1所九年制公办36班学校,其中小学24班,初中12班,目前还没开始建设,具体引进的学校也暂未有信息透露出来,另外还规划有深圳外国语楼村第四学校,总规模45个教学班,可容纳2100个学位,预计在2026年秋季开始招生。
商业配套:项目自带有社区底商,可以满足日常生活需求,距离约2.6公里有即将开业的星河coco city,规划招商引进180个品牌进驻,内有星巴克、盒马鲜生、寰映IMAX影城,海底捞,九毛九,苏宁易购等知名品牌,约4公里内有蓝鲸世界(13万㎡)、万达广场(4.5万㎡)等大型商圈,形成超30万平方米的商业集群。
看完以上关于深圳光明越秀星科源启楼盘相关的图文介绍,如果您对我们楼盘感兴趣的话,建议您可以联系我们越秀星科源启开发商售楼处全国免费400热线电话:400-800-9113(已认证)在线进行免费咨询或对接楼盘现场销售人员(中介请勿扰),我们可以为您安排本楼盘现场销售一对一在线服务,比如说把楼盘的最新图文资料、样板房视频、通过手机的方式发给您看一看、您不需要立即过来楼盘现场就能够对我们楼盘熟悉个大概,还可以告诉您关于我们越秀星科源启楼盘对比周边楼盘的优点缺点、楼盘这几天最新的优惠政策、银行政策以及LPR利率、积分入学,等相关购房方面的问题都给你讲解的明明白白,让您买房不踩坑,毕竟买房是大事。找现场销售咨询并不需要额外花钱,反而更省钱,而且可以避免一些中介虚报价格浪费你宝贵的时间和精力,我们会把额外认购优惠、按时签约优惠、房贷优惠、一次性付款的优惠都告诉您,希望您能通过这个平台,全面了解我们的楼盘信息并顺利、开心的完成购房流程。
免责声明:以上展示的关于深圳光明越秀星科源启楼盘最新相关图文资料可能有部分来自于网络,一切信息以最终在在我们楼盘现场签署的购房合同为准,如图文内容可能无意中侵犯某方权益的话,请及时联系我们将配合处理。
声明:本文由入驻焦点开放平台的作者撰写,除焦点官方账号外,观点仅代表作者本人,不代表焦点立场。
