深圳中建鹏宸云筑,龙华新楼盘户户朝南,面积约89㎡3+1 房高拓设计,全屋飘窗赠送,使用率拉满
扫描到手机,新闻随时看
扫一扫,用手机看文章
更加方便分享给朋友
最新消息:龙华梅林关【中建·鹏宸云筑】再继89㎡剩余10来套最贵的楼层房源后!最后一栋收官11栋预已开盘入市,推完全盘将不会有再推新楼盘和户型了,开盘可直接认购不需要公证摇号,本次推出的面积约89㎡总价叠加内部优惠完约440万起的房源又来了!
11栋位置示意图:
鹏宸云筑项目本次推出的户型全部采用新规102%高使用率设计,纯商品房,备案价460万起,准签87折 先推三条腿 预计下午拿证 直接认购!
折后总价(仅供参考,看房预约享受开发商内部优惠,还能更便宜!)
02户型低区5-13楼468-474 中区15-32楼 479-491 高区34-45楼 472-480万
05户型低区 5-13楼440-445 中区15-32楼449-461 高区34-45楼 442-450万
06户型低区5-13楼 535-542 中区15-32楼 546-559高区34-45楼 534-546万
如果您想要了解更多关于我们楼盘最新动态或者房价走势,欢迎来电咨询深圳鹏宸云筑楼盘开发商售楼处官方电话:400 811 3080 (已认证·非中介)中介或自媒体请勿扰,因本项目营销中心近期看房的人特别多,暂不接受临时到访,采取预约制,为不耽误您的行程和时间,过来楼盘现场前请务必提前来电预约,预约看房的话最终房价还能更优惠,最终房价包您满意!
鹏宸云筑剩余在售住宅户型和价格说明:
在2024年12月6日入市以来,共1739套房源,至今整体已经销控超1505套房源,去化率高达86.54%,还有约234套房源在售。
当下主力房源还是在后面加推的7栋跟10栋,折后均价5.62万/㎡,折后单价5-5.81万/㎡,总价在480-675万/套。
89㎡的4房2厅2卫,折后总价480-502万/套,折后单价5.39-5.55万/㎡。
104㎡的4房2厅2卫,折后总价517-601万/套,单价约5-5.81万/㎡。
119㎡的4房2厅2卫,折后总价615-667万/套,单价约5.15-5.51万/㎡。
温馨提示:以上价格仅供参考,过来现场看房提前预约还可以更便宜!
中建鹏宸云筑热卖归功于项目优势:地段优越,紧邻北站核心区;龙华首个新规产品,自带流量;户型朝南,约100%使用率,首创岭南风格园林,湖景景观。81㎡3房2卫户型一推出即刷新深圳市场使用率,广受市场青睐。
鹏宸云筑项目自去年12月至今年9月共开盘6次,首日售罄1次,去化率98%和92%各1次。东区收官当天热销90%,龙华人气王。
今年5-7月连续3个月蝉联龙华区住宅网签套数第一名,7月龙华区套数面积金额3冠王!8月份再次稳坐龙华销量第一!
鹏宸云筑开发商是中建3局全资子公司“中建壹品投资发展有限公司”跟“湖北文旅园区建设发展集团有限公司”联合开发,两者均为国有企业背景,也是其在深圳打造的第1个楼盘。该地块是在2024年2月29日挂出的A808-005土拍地块,建筑面积216570㎡,竞得价格是51.79亿元,楼面价23914元/㎡,是龙华近10年来最大的纯商品房土拍地块,总共1996套,全部规划商品房,没有任何回迁房、安居房、共有产权房、公租房等,也是龙华在新规政策发布后建设的第二个楼盘!
小区高阶品质
①31万方岭南人文高阶住区,精工匠造纯粹圈层
深圳近10年最大纯居地块,约31万方深圳城央美好生活领地,无公租房、无保障房、无人才房。采用围合式布局,以岭南建筑美学理念,打造岭南东方诗意园林。
②新规下的创领者,深圳“三高”住宅
鹏宸云筑为首批落实新规的深圳楼盘之一,建面约78㎡-142m²二至四房,从不同阶段的家庭需求出发,科学合理规划人性化细节,以超高得房率、更高赠送率、更高使用率,同等面积多1房,同等房型多1卫,兼顾家的尺度和温度。
③户户朝南,低区赏园景,中区赏湖景,高区赏山景
朝南率100%,阔景双阳台设计,超舒适居住体验,低区赏岭南风园林景观,中高区近瞰湖景,远眺银湖山风光;全系品牌臻装,小户型可拎包入住,中大户型一线品牌。
▲鹏宸云筑南侧民治水库和银湖山
地库
以下为东地块部分展示:
地下车库
东地块部分交付标准图片:
部分户型(南向)可看湖景!
以下是鹏宸云筑的开盘历程:
2024年12月16日取证,首推3/5栋
368套房源,面积有81平的3房2卫,91-105-124平的4房2卫,备案均价6.01万/㎡,备案单价5.56-6.83万/㎡,总价451-761万/套,当时开盘打出了88折优惠,折后均价5.32万/㎡,单价4.72-5.8万/㎡,总价在398-673万/套,首开即日光,也是2024年深圳第5个日光盘。
2025年3月21日取证,加推6栋
153套房源,面积有104-121-148平的4房2卫,备案均价6.12万/㎡,备案单价5.45-6.56万/㎡,总价570-974万/套,当时开盘打出了93折优惠,折后均价5.69万/㎡,折后单价5.07-6.1万/㎡,总价在530-905万/套,去化98%。
2025年5月1日取证,加推1栋
250套房源,面积有81-91-107-126平的3-4房2卫,备案均价6.13万/㎡,备案单价5.56-6.89万/㎡,总价463-1154万/套,当时开盘打出了约9折优惠,折后均价5.52万/㎡,折后单价5.16-5.85万/㎡,总价在416-737万/套,去化90%。
2025年6月7日取证,加推2栋
224套房,户型81-126㎡3-4房,均价6.13万/㎡精装。91折后5.58万/㎡,较1栋涨800/㎡。去化率90%,销售表现佳。
2025年8月31日取证,加推8栋湖景楼王
开盘去化8成,建面约103㎡526-604万,约118㎡640-668万,约139㎡756-863万。
2025年9月30日取证,加推9栋
此次共282位登记选154套房,比例达1:1.8,官宣劲销8.2亿!去化约7成!建面约104㎡523-611万,约120㎡600-687万。
2025年10月31日开盘,加推7栋
本次加推西区7栋,262套房源,面积89-103-120㎡的3-4房户型,备案均价6.14万/m²,当时开盘给出了87折优惠,折后均价5.34万/㎡,折后单价5.04-5.43万/㎡,总价在450-660万/套。至今去化72.14%,还有不到73套房源在售。
2025年11月21日开盘,加推10栋
本次加推西区10栋,154套房源,面积104-119㎡的4房户型,备案均价6.14万/m²,当时开盘给出了89折优惠,折后均价5.62万/㎡,折后单价5-5.81万/㎡,总价在517-675万/套。至今去化53.25%,还有不到72套房源在售。
一、项目介绍
中建·鹏宸云筑,项目位于龙华民治原8号仓南侧南坑站700米,该地块东面是龙岸花园,南面深国际华南数字谷、民治水库,西面为深国际万科悦城和风轩,北面为深国际华南物流业、8号仓。
鹏宸云筑项目由中建集团打造,由总占地面积约4.33万㎡,总建筑面积约31万㎡,计容建筑面积约22.6万㎡,容积率5,绿化率40.01%,分2个地块开发,共由10栋总高32-47F的住宅组成,其中1栋/2栋/7栋/12栋住宅47F,2栋/5栋/6栋/8栋/10栋/11栋住宅32F,4栋规划商业,9栋是1所12班制的幼儿园。
鹏宸云筑总规划2092户,全部是商品房,6栋/8栋2梯5户,3栋/5栋/10栋/11栋2梯6户,1栋/2栋/7栋/12栋3梯6户设计,地下2层,规划有2155个车位,车位占比1:1.03。
中建鹏宸云筑,共分3期开发建设,其中东区:占地2.1万㎡,容积率5.28,含住宅、商业、活动室、老年照料中心及配套设施。建筑包括:1栋45层(3梯6户)、2栋44层(3梯6户)、3/5栋32层(2梯6户)、6栋32层(2梯5户)和4栋商业楼2层。东区5栋已全部入市。
西区:占地2.2万㎡,容积率5.16,涵盖住宅、商业、教育及基础设施。建筑包括:7栋47层3梯6户;12栋46层3梯6户;8栋32层2梯5户;10/11栋32层2梯6户;9栋为幼儿园。
设计方面采用点阵式布局,项目以岭南建筑美学理念,打造岭南东方诗意园林景观。
二、项目基础数据
【开发商】中建壹品湖北文旅
【开发商电话】400 811 3080
【占地面积】4.33万㎡
【建筑面积】31万㎡
【总户数】2092户,本次加推11栋
【户型面积】约89-121㎡3-4房
【停车位】2155个
【物业及物业费】深圳华展置业有限公司,预计5元/㎡
【绿化率】约40%
【容积率】≤5.37
【户型使用率】加赠送约95-100%
【层 高】约3.1米
【梯户比】西区高层2梯5户,超高层3梯6户(东区3梯6户)
【总楼层】7栋47层
【交楼时间】交房时间待定,精装修交房
【产权年限】70年(2024.03.05-2094.03.04)
【项目位置】龙华区民治原8号仓南侧南坑站700米
三、鹏宸云筑项目户型介绍:
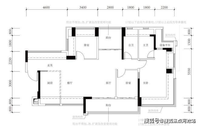
89㎡的4房2厅2卫,设计的是经典竖厅格局,进门入户玄关,客厅3.45米开间,动静分区,三开间朝南,分别做到了主卧14.54㎡/次卧7.96㎡/次卧7.56㎡/次卧5.8m²(包含墙体飘窗),主卧+1个次卧270°飘窗,U型厨房,公卫三段式干湿分离,得房率约102.2%(包含赠送),阳台5.52m²西南或东南朝向。飘窗赠送面积13.17m²+阳台赠送面积6.61m²+设备平台1.8m²=实际赠送面积约21.58m²。
01项目平面图
02 项目户型介绍图欣赏
【产品革新】全生命周期户型,新规产品高使用率
•深圳建筑新规首发项目之一,超100%综合使用率
•创新型成长户型,适应家庭不同阶段的需求变化,拔墙设柱设计、分户S墙、创新LDKC内外亲子双区等
(1)建筑面积约104㎡户型
改善奢居︱全明向阳户型,采光通风俱佳
奢适主卧︱独立卫浴套房,私享雅致生活
瞰景阳台︱6米宽境阳台,纳藏湖山风光
归家至礼︱入户玄关收纳,礼遇从容生活
(2)建筑面积约120㎡户型
尊崇入户︱约4.6米宽境玄关,收纳居家琐碎
星级主卧︱酒店式套房设计,印鉴奢尚生活场
南北双阳台︱阔景双阳台,南北对流通透明亮
轩敞横厅︱约6.35米阔绰横厅,LDKG空间无界
四、交通出行
鹏宸云筑小区距离地铁坂田线(10号线)南坑站预计800米步行距离,该线路南北走向,距离福田很近,通达福田口岸、福田中心、五和枢纽、华为等产业重地。
自驾方面,开车5km到华为和北站,约12km距离到福田中心。临近的横岭立交和梅观路市政化建成后,将会进一步释放道路交通压力,自驾出行变得更顺畅。
五、商业配套
项目临近8号仓奥特莱斯,约3km(直线距离)范围内享超50万㎡繁华商业配套、北站/红山城市级“五馆一体”、两大市级三甲医院等,满足日常生活所需。
六、周边学校
项目北侧规划广东省一级学校建设标准的72班九年一贯制学校,周边18班小学规划,近邻华南实验学校、万科双语学校,家门口即享优质教育资源,护航孩子健康成长。
未来潜力:北侧规划72班九年一贯制学校(省一级标准,预计2026年动工),网传可能引入深实验或龙华外国语集团(未官宣)。
华南实验学校:该校是1所九年一贯制公办学校,现有53个教学班,开办于2018年9月,在片区学校排名中属于第三梯队。
七、鹏宸云筑其余配套情况:
文体休闲上,项目周边文体休闲配套十分丰富,涵盖深圳市文化馆新馆(在建)、深圳美术馆新馆与深圳市图书馆北馆;近享简上体育馆,深圳书城(龙华城)、演艺馆、艺术展览馆、超核绿芯数字探索馆等市级文体项目,打造10分钟文体服务圈。
医疗配套上,项目集萃深圳市新华医院(在建中)、龙华人民医院、深圳市第二儿童医院(在建中)、龙华区第二人民医院等市属公立三甲医院高标准医疗服务体系。
生态资源上,项目附近就是银湖山,临近民治水库、民乐水库、雅宝水库、南坑水库,可作为日常休闲去处。
鹏宸云筑项目值不值得买?
1、楼盘位置在梅林关片区,离龙华中心、福田中心、罗湖中心都比较近;
2、离10号线南坑站仅610米距离,步行不到10分钟,比较舒服的一个距离,乘坐地铁比较方便;靠近珠三角环线,开车出行去福田、罗湖也比较方便;
3、配套齐全:商业、学校、医疗、休闲等配套齐全;
4、纯住宅小区,户户朝南、户型使用率接近100%,且交付标准比较高;
5、鹏宸云筑部分户型可以看到湖景;
6、性价比高,根据以往开盘的价格,均比周边价格有优势。
别再浪费时间对比中介、分辨信息真假,我们深圳龙华鹏宸云筑楼盘全国服务官方热线电话已正式开通,拨打鹏宸云筑开发商官方电话:400 811 3080(已认证·全国唯一直通热线·非中介),直接对接本楼盘金牌现场销售,全程免费、无任何隐形消费,避免市场上一些中介虚报价格,耽误您的时间和精力。提供最真实楼盘信息,从实时房价、楼层采光分析、户型适配建议,到楼盘专属优惠、银行贷款要求、预计入住时间,逐一清晰讲解,帮你避开所有购房陷阱,在线同步全套图文资料,随时随地可查看。【鹏宸云筑开发商直连·非中介机构】立即拨打,即刻获取专属购房方案!如果您是专程从外地过来深圳购房置业,如果看房路程打车不方便的话,也可以预约我们安排免费专车接送看房!
声明:本文由入驻焦点开放平台的作者撰写,除焦点官方账号外,观点仅代表作者本人,不代表焦点立场。
