2025前海标杆住宅前海时代三期(尊府)最后小户型89~190平米,盛势归来!
扫描到手机,新闻随时看
扫一扫,用手机看文章
更加方便分享给朋友
深圳「前海时代三期·尊府」预计7月中下旬取证!加推最后一栋小户型53栋3单元约172套住宅,89㎡三房和190㎡四房,2026年底简装交付。
项目位于前海桂湾,地铁1号线鲤鱼门上盖物业。前海时代三期-尊府
价格方面,参考上个月推出的245-285㎡大平层,备案均价11.55万/㎡,折扣约9折,算下来大概在10.43万/㎡左右。
这次3单元是53栋几个单元中位置最好的,位于头排,景观视野基本没有遮挡,高层还能看到桂湾河海景。

如需了解本楼盘更多详情,欢迎来电咨询深圳前海时代开发商售楼处免费400咨询/预约电话:400-880-7297(已认证)中介请勿扰,因近期参观的人员太多,本项目营销中心暂不接受临时到访,为不耽误您的行程,过来楼盘现场参观样板房请务必记得提前来电预约,预约看房的话最终房价还能更加优惠,最终价格包您满意!

实景照片
前海时代项目介绍:
「前海时代三期尊府」位于前海桂湾片区南侧,临近滨海大道和桂湾河,在整个前海自贸区内算是住宅的C位,正南侧水廊道公园,东南望南山西南看城市海景。
整个「前海时代」大项目规划总建面约130万㎡包括了商业、写字楼、公寓、酒店、住宅,可以算是一个超大型的综合体。其中商业将会交由华润运营,连接万象前海商业。
项目分五期建设,三期推售。
2014年11月,前海时代一期首次开盘,推售675套房源,建面49-132㎡1-3房,均价4.2万/㎡,单价3.9万-4.5万/㎡。
现场约2000人到场,当天售罄。
2015年12月,二期CEO公馆开盘,550套房源,主推建面180、252及254㎡4房,备案价6.5-9.8万/㎡,当天售罄。
2021年3月,二期20套尾货低调发售,户型为建面128-254㎡大户型,单价8.74-11.05万元/㎡,总价约1330-2803万元/套
目前推售的是前海时代三期尊府,大体分了3个地块:

7-2地块(尊府1)为55-60栋,约608套,面积段为约192-209-250-292㎡大平层。其中55、56、57、60栋270套于2023年12月开盘,备案均价9.9万/㎡,总价区间1606-2855万,当天售罄;
5-2地块(尊府2)为53栋三个单元,约516套,面积段为约89-190㎡的3-4房,其中53-1和53-2栋344套于2024年3月开盘,备案均价9.8万/㎡,总价区间751-2134万,如今仅剩少量房源。
5-1地块精品住宅为52-2栋,约256套,180套小户型,60套120㎡三房,16套大户型,全部未售。
基础信息
项目名称:前海时代三期(尊府)
开 发 商:深圳市地铁集团有限公司
占地面积:约33.4万㎡(总)
建筑面积:约110万㎡(总)
建筑类型:住宅、商业、办公、公寓
产权年限:70年/40年
剩余房源:
1️⃣58栋77套:89㎡3房,190㎡4房(5月推售)
2️⃣53-3栋172套:210-280㎡4-5房(本次推售)
3️⃣52-2栋约256套:面积情况还未知(推售时间待定)
价格:参考首批备案均价9.9万/㎡
容 积 率:4.52
绿 化 率:≥30%
梯户比:5-2地块3T5,高层3T4
车位比:1756个,1:2.87
交房时间:预计2026年底
物业公司:深圳地铁物业管理发展有限公司
物业费:9元/平/月
0
2
项目户型
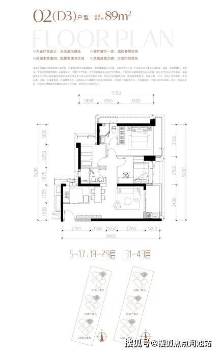
约89㎡3房2厅2卫,户型方正呈竖厅布置,结构上客餐厅一体、动静分区。设计上充分贯彻实用性,约89㎡做到少见的3房2卫,在前海这类改善片区的稀缺性很高。
约190㎡户型南北通透,户户带270°采光阳台。双套房+独立入户玄关设计搭配宽景大阳台及高使用率,居住舒适度拉满。
0
3
项目区位

前海三湾中,桂湾是配套相对最为成熟的板块,目前桂湾片区目前建设已经近8成,前海已交付的23栋写字楼中,约有90%位于桂湾。深圳共规划7个金融聚集区,桂湾金融企业占比已超70%。
截至24年12月,前海深港国际金融城累计引进金融机构322家,其中港资外资占比约25%。涵盖了渣打、惠理等140家风投创投及国际资管等机构,管理基金规模达到1800亿元。
此外,前海国际人才港通过多元化的线上线下服务平台,已累计服务人才近60万人次,波士顿咨询、罗盛咨询等21家国际知名机构、猎头公司均已入驻。
此外,投资50.5亿的前海石公园、投资288亿的前海综合交通枢纽、以及华润万象前海、前海山姆、卓越intown,也都在桂湾。
0
4
项目配套
交通配套

公共交通方面,桂湾坐拥西部最大的地下交通枢纽前海湾站,目前项目已经大致上出地面,两年内完工。
轨道方面,项目距离地铁站为1号线鲤鱼门站约720米,距离5号线、9号线前湾站约900米,1/5/11号三条地铁线交汇。
另外还有穗深(广东-东莞-深圳)城际以及未来的深港西部快线在此设站,未来还会接通深珠城际,可以直接刷深圳通不用抢票。
路网交通方面,也是四通八达的网状设计,接通深圳目前各大重要主干道,项目紧邻月亮湾大道、滨海隧道(滨海大道地下道路一期工程)梦海大道连接前湾、妈湾、宝安中心,出行便利。
商业配套
前海时代三期自带8万平㎡商业,已确定引入华润运营,预计作为“万象前海二期”的目标去打造,能全面满足日常生活所需。
周边商业氛围浓厚,已开设的有万象前海、卓悦INTOWN、山姆旗舰店等品牌商业,而即将开业的有前海壹方汇和前海K11,后续紧跟的还有交通枢纽的约19万㎡大型商业区。当桂湾商业连成片的时候,其城市配套规模和人气流量会更火爆。
教育配套
教育方面,桂湾暂时未有特别出色的学校,前海时代对口学校为九年制南山实验集团前海港湾学校,暂时表现平平。
项目2公里内一所九年制学校正在建设中(未确定引进的学校)。
此外,前海还有3所知名国际学校:荟同学校、英国国王学校深圳分校、深圳哈罗公学及深圳礼德国际学院。
桂湾规划片区内,规划主要的教育设施包括国际学校一所、九年一贯制学校三所、小学一所、幼儿园七所。
休闲/医疗配套
桂湾片区内有海边演艺公园(由华侨城操刀)、桂湾公园、双界河公园、月亮湾水廊道。目前桂湾公园已建成,海边公园即将二次升级,双界河和月亮湾水廊道暂时还是毛坯状态。
项目西侧预留有一块公园绿地,另外1.5公里范围内分布有双界河水廊公园、荷兰花卉小镇、前海演绎公园、中山公园等,日常休闲娱乐就近即可满足。
0
5
小区品质
深铁府系精工携手匠心团队,联袂共筑世界湾居新坐标,香槟金搭配高级灰调立面,现代建筑与艺术风格交相辉映,勾勒前海天际美学封面。
·景观设计 :DDON笛东/梁黄顾事务所
·室内设计 :CCD郑中/ARUP奥雅纳
·建筑设计 :Leigh & Orange/A+E奥意建筑
公区展示
内部园林展示

看完以上关于深圳前海时代尊府楼盘相关的图文介绍,如果您对我们楼盘感兴趣的话,建议您可以联系我们开发商售楼处全国免费400热线电话:400-880-7297(已认证)在线进行免费咨询或对接楼盘现场销售人员(中介请勿扰),我们可以为您安排本楼盘现场销售一对一在线服务,比如说把楼盘的最新图文资料、样板房视频、通过手机的方式发给您看一看、您不需要立即过来楼盘现场就能够对我们楼盘熟悉个大概,还可以告诉您关于我们前海时代三期尊府楼盘对比周边楼盘的优点缺点、楼盘这几天最新的优惠政策、银行政策以及LPR利率、积分入学,等相关购房方面的问题都给你讲解的明明白白,让您买房不踩坑,毕竟买房是大事。找现场销售咨询并不需要额外花钱,反而更省钱,而且可以避免一些中介虚报价格浪费你宝贵的时间和精力,我们会把额外认购优惠、按时签约优惠、房贷优惠、一次性付款的优惠都告诉您,希望您能通过这个平台,全面了解我们的楼盘信息并顺利、开心的完成购房流程。
免责声明:以上展示的关于前海时代尊府楼盘最新相关图文资料可能有部分来自于网络,一切信息以最终在在我们楼盘现场签署的购房合同为准,如图文内容可能无意中侵犯某方权益的话,请及时联系我们将配合处理。
声明:本文由入驻焦点开放平台的作者撰写,除焦点官方账号外,观点仅代表作者本人,不代表焦点立场。
