绿景白石洲璟公馆值得吗?70年产权/民水民电/通燃气/带阳台/积分
扫描到手机,新闻随时看
扫一扫,用手机看文章
更加方便分享给朋友
绿景白石洲,位于深圳南山区,项目总建面约46万m²户型约110-187m²住宅,公寓45-60-75-125-180㎡1-4房(璟公馆),作为总建面约500万m2城市航母的首发作品,居住氛围浓厚纯粹,地铁无缝接驳,精奢商业、优质学府、社区公共配套、中央绿轴花园等完善生活配套同步开启白石洲未来生活。
下面是我们绿景白石洲楼盘营销中心现场照片:
温馨提示:因近期参观的购房者较多,所以本楼盘采取预约制,过来营销中心现场参观样板间请记得提前拨打开发商售楼处400热线电话在线预约,预约看房价格更优惠,感谢您的配合!
绿景白石洲项目集商业、办公、酒店、文旅、居住于一体的城市目的地。
项目基础信息
首发一期|绿景白石洲·璟庭
建筑面积:约47.5万㎡
主力产品:建面约110-187㎡住宅
开发商电话:400 811 3080
项目位置:深南大道以北、沙河东路以东
一期引入绿景智慧健康人居系统1.0,荣获国际 Fitwel 健康社区三星级认证。
绿景白石洲这个楼盘能买吗?
在伦敦、纽约这样的超级城市,其城市主轴的黄金分割点上均屹立着城市超级影响力的项目,如伦敦金丝雀码头、纽约中央公园,而深圳的发展主轴深南大道从罗湖中心到前海中心,绿景白石洲正处于黄金分割点之上。
超级十字轴 成就深圳价值之核
绿景白石洲位于深圳核心位置南山区的华侨城片区,深圳城市发展主轴——深南大道与大沙河创新走廊十字交汇点,依托华侨城人文艺术城区,链接后海总部基地、深圳湾超级总部基地、留仙洞总部基地、高新园总部基地四大总部基地。
轨道交通——四线三站两枢纽,地铁1号线、2号线以及近期即将落实的20号线、29号线,无缝覆盖更新片区。
道路交通——项目自身三纵三横路网,对外连接深南大道、北环大道、沙河东路等城市干道。
全球交通———15min 直达深圳湾口岸及太子湾邮轮母港,直通港澳,18min直达福田高铁站,通达区外,26min直达宝安国际机场,环游世界,海陆空半小时交通圈,畅行世界。
汇集欢乐谷、沙河高尔夫、世界之窗,一站式体验城市度假 ; 5大商圈,缔造潮流时尚窗口:万象天地、深圳湾睿印、益田假日广场、欢乐海岸、深圳湾万象城。
山林湖海园廊在此相聚,每一次呼吸与远眺,都有来自国家级生态保护区的气息。
约 400 米双子塔国际超甲写字楼群,全球顶级设计团队巨著,重绘深圳天际线。计划引进世界顶奢酒店及轻奢商务酒店集群,融合在地文化,创作“慢生活”旅居酒店范本。
近40万方商业,SHOPPING MALL、街区商业、社区商业等,一条长达约1.2公里的中央绿轴串联多元商业空间,商业主题涵盖城市顶奢、潮人艺术、高端社区消费、先锋潮流等不同类型。
配建有高端精品住宅及艺术公寓,成为深圳未来核心区域规模居住生活区。
超大规模城市公共配套,涵盖四所幼儿园共57班,三所九年一贯制学校共90班,约9万㎡社康、文体等公共配套设施。以及多维度会所体系满足不同公共生活需求。
创新打造地上地下七重结构立体化交通系统,不同交通系统分层互联,人行系统、城市公共道路系统,地下轨交系统快速接驳,最大程度实现人车分流,科学化疏解交通压力。
多维共享空间系统,从商业消费、休闲漫步到艺术观赏,成为深圳一条可逛、可玩、可互动的24h开放潮流街区 ;
七重立体城市规划释放空间想象,构筑无边界共享大城;
约1.2公里中央绿轴,打开生活场域;
架空层约30万㎡空中花园及约3.5万㎡泛会所成为业主私享休闲娱乐空间;
更首创50米空中连廊,创想无限可能。
联合国际顶级艺术机构UAP ,构筑深圳未来公共艺术社区。
全球近50家顶尖设计团队联袂共创,前后历经10余年匠心研磨,重绘未来白石洲。
联合华为、联通等高新科技领军企业,打造深圳最大规模城市更新智慧城区,覆盖城区、社区、家庭三大场景,全维演绎未来家园。
绿景地产,三十余年深耕布局粤港澳大湾区,专注城市更新领域,深圳房地产综合实力前十强,开发运营项目遍及香港、深圳、珠海、东莞等湾区核心城市。
住宅户型赏析
01
建筑面积约110㎡户型
瞰景三房,卧室标配飘窗,观景阳台展开风景画卷
餐客一体化,连通阳台,畅享全家欢聚时刻
动静分区舒适化营造,休慎与家庭活动互不干扰
主卧私享化,独立卫浴、衣帽间,自在天地一隅
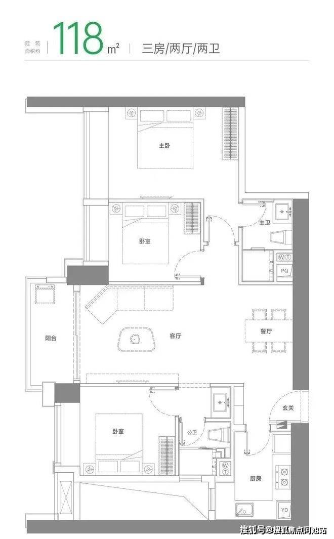
02
建筑面积约118㎡户型
横向四开间设计,南向约13.4m奢华采光面,和光同悦
南向观景C位,客厅、卧室随心眺望窗外城市风景
奢享主卧,生活阳台、衣帽间、私人卫浴,独享非凡领地
餐客一体贯通阳台,打造舒适、宽敞的家庭欢聚天地
03
建筑面积约125㎡A户型
瞰景三房,飘窗、阳台拉开居住视野,主卧私享功能产备
LDK 一体化设计,打造无边界、社交化的餐客厨系统
动静分区舒适化营造,休慎与家庭活动互不干扰
双阳台设计,厨房连通生活阳台,延展更多空间,随心收纳
04
建筑面积约125㎡B户型
横向四开间设计,南向约14.1m奢华采光面,和光同悦
南向观景C位,客厅、卧室随处纵览非凡城市景观
奢享主卧,步入式衣帽间,私人卫浴,独享自我领地
双阳台设计,厨房连通生活阳台,延展更多空间,随心收纳
05
建筑面积约125㎡C户型
卧室标配飘窗,引入丰沛阳光,全家尽情舒展
餐客一体贯通阳台,打造舒适、宽敞的欢聚天地
奢享主卧,独享衣帽间、私人卫浴,自我非凡领地
双阳台设计,厨房连通生活阳台,延展更多空间,随心收纳
06
建筑面积约187㎡户型
横向创新户型,超宽向阳尺度,吸纳阳光新风
主卧私享化,独立卫浴、衣帽间,自在天地一隅
四开间朝南,卧室大飘窗,在阳光中享受美好栖居
南北双阳台,一面晾晒收纳,一面休闲享受,精彩不止
【绿景白石洲】城市更新巅峰之作
以超越时代的视野,引领深圳迈向未来
全新生活方式范本,致献每一个相信深圳的人
【白石洲】城市更新馆
【绿景白石洲开发商售楼处咨询/预约电话☎️ 400-811-3080(中介勿扰)】
✅ 本项目暂不接受临时到访,过来参观样板房请记得提前来电预约!
✅ 为您安排楼盘现场销售全程一对一在线解答,给您更贴心的体验!
温馨提醒:我们楼盘开发商售楼处400电话没有设置任何所谓的“分机号”,拨打前请仔细甄别,注意保护个人隐私!谨防上当!
免责声明:
以上所发布的关于深圳南山绿景白石洲楼盘相关介绍详情仅供您购房前参考,以上所有关于本楼盘的图文资料及说明请以最终项目批文及双方在楼盘营销中心现场签署的买卖最终合同为准;本图文内容如无意中侵犯到某方权益,请联系我们将会及时处理。
声明:本文由入驻焦点开放平台的作者撰写,除焦点官方账号外,观点仅代表作者本人,不代表焦点立场。
