深圳南山科技园 粤海街道「翰熙典居」首推105-120-140㎡,价值详情一文读懂!
扫描到手机,新闻随时看
扫一扫,用手机看文章
更加方便分享给朋友
很多购房者想知道深圳南山【翰熙典居】这个楼盘到底能不能买?

【翰熙典居开发商售楼处咨询/预约电话📞 400-880-7297,中介勿扰】
温馨提示:因近期参观的购房者较多,所以本楼盘采取预约制,过来营销中心现场参观样板间请记得提前拨打开发商售楼处400热线电话在线预约,预约看房价格更优惠,感谢您的配合!
首开2栋住宅,分户型9折折后价

105户型折后总价约894万起
120户型折后总价约1038万起
140户型折后总价约1457万起
项目介绍
翰熙典居,位于深圳南山粤海街道腾讯总部旁,前身为“桂庙新村旧改项目”。
项目总建面约37万㎡,建成后将成为集住宅、商业、办公及酒店为一体的大型综合项目,能为片区供应含保障房在内近25万㎡住宅。
2023年2月,桂庙新村旧改正式开拆。同年5月发布实施主体确认公示,内容显示其补偿方式为产权置换和货币补偿相结合,已完成100%签约;项目实施主体拟确认为深圳市贯凯投资有限公司,隶属于深圳市阳光华艺房地产有限公司。
阳光华艺房地产公司已深耕深圳23年,主营房地产开发,旗下有建筑施工企业、物业管理公司、酒店经营管理公司等,运营有自有品牌酒店,已经成功开发了阳光华艺大厦、南山城市花园、流塘阳光花园、阳光海滨花园等多个旧改楼盘,在行业内颇有名气。
一、地段:身处粤海街道,“含金量” 拉满,但也有小遗憾
翰熙典居在南山区粤海街道,这个地段,用一句话形容就是 “含着金汤匙出生”!一边挨着深圳大学,校园里的学术氛围,溜达着就能感受到;另一边紧靠着南山科技园 —— 那可是大名鼎鼎的 “中国硅谷”,华为、腾讯、大疆这些行业大佬扎堆办公。
每天大量高薪人才进进出出,住房需求一直很旺盛,房价也跟着有了底气。要是你在科技园上班,住这儿可太香了!步行就能到公司,省下的通勤时间,用来多睡会儿懒觉,或者吃顿丰盛的早餐,幸福感直接拉满。

二、交通:双地铁 + 主干道,出行方便到飞起!
(一)地铁优势,谁用谁知道
要说这楼盘最大的交通亮点,“双地铁上盖” 必须拥有姓名!离 9 号线和在建的 15 号线交汇的深大南站,步行不到 300 米。坐 9 号线,2 站到高新园,3 站到深圳湾超级总部基地,4 站直达大前海,打工人的通勤神器实锤了!
更让人期待的是 15 号线,预计 2028 年开通,到时候它就像一条 “黄金内环”,把前海湾、大铲湾、留仙洞总部基地等重要区域全串联起来,不管是去上班、逛街还是办事,都超方便!
(二)自驾也丝毫不输
开车的朋友也别担心!南海大道、滨海大道两条主干道就在旁边,一脚油门下去,福田、宝安分分钟就能到。实测从小区出发,20 分钟内基本能覆盖深圳西部核心区域。而且小区还配建了公交首末站,就算不开车,公共交通也能把你安排得明明白白。
要是你经常出差、旅行,这里的位置也很绝!直线距离蛇口码头约 6.7 公里,到宝安国际机场也就 15 公里,说走就走的旅程毫无压力。

三、配套:商业、教育、医疗,全都 “配齐”!
(一)商业:购物娱乐,一站式搞定
小区自带约 5000㎡商业,下楼就能买个菜、吃个早餐,日常需求轻松解决。要是想逛商场、看电影、吃大餐,2 公里范围内就有海岸城、茂业百货、海雅百货,步行就能到。
再远点,15 分钟车程内,顶奢的深圳湾万象城、潮流的万象天地,还有后海汇、鹏润达商业广场等大型商业体,不管你是想买大牌,还是打卡网红店,通通满足你!
(二)教育:家门口的优质学校,家长省心
家长们最关心的教育问题,翰熙典居也交出了不错的答卷。根据 2024 年南山学区划分,对口南山区第二外国语学校(集团)学府一小和学府中学,尤其是学府中学,师资强、教学质量高,在家长圈口碑一直很好。
小区自带 12 班幼儿园,孩子上幼儿园不用愁。西侧红线外还规划了 30 班小学,从幼儿园到小学,都在家门口,接送孩子太方便了!
(三)文娱休闲:生活多姿多彩
周末想放松一下?周边的选择可太多了!3 公里范围内,文心公园、南山书城、荷兰花卉小镇,都是遛娃、散步、看书的好去处。
要是你喜欢文化艺术,深圳湾体育中心、保利剧院、南山图书馆这些 “城市级人文配套”,也都在附近,时不时去看个演出、展览,提升一下文化素养,生活品质直接拉满!
(四)医疗:健康有保障,心里更踏实
医疗配套也很给力!距离深圳大学医院约 828 米,三甲的南山区人民医院约 1.2km,周边还有华中科技大学协和深圳医院。不管是日常体检,还是头疼脑热,都能快速就医,家里有老人、小孩的,住着也更安心。

四、宜居性:户型很能打!
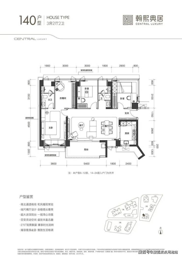
(一)户型:空间利用率高,住着超舒服
户型从 104 - 140㎡都有,最让人惊喜的是得房率约 90%(含赠送面积),相当于花同样的钱,能多住十几平!像 105㎡的三房,赠送面积就有 10㎡,四舍五入等于省了一辆车的钱!
竖厅、横厅多种格局可选,不管是小两口、三口之家,还是三代同堂,都能找到合适的户型。客厅开间宽敞,卧室空间合理,部分户型还有宽景大阳台,采光通风一流,住着别提多舒服了!
下面是最新户型面积图
(二)居住体验:有亮点,但也有不足
不过,这楼盘也不是十全十美。回迁房和人才房占比不小,商品房只占总户数的 23.6%,居住人群比较复杂,后续社区管理难度可能会大一些,居住体验或多或少会受点影响。

五、投资价值:长期看涨。
从投资角度来看,翰熙典居还是很有潜力的。粤海街道地段稀缺,产业发展又好,源源不断的人才流入,对房子的需求只增不减。再加上周边新盘少,翰熙典居可售房源有限,长期来看,房价大概率会上涨。
最后总结:适合自己的才是最好的!
总的来说,翰熙典居地段、交通、配套、户型都很能打,但也存在居住人群复杂、容积率高、车位不足这些小缺点。
如果你在科技园周边上班,追求通勤便利、配套齐全,能接受它的小瑕疵,那翰熙典居完全可以考虑,自住体验会很不错。
【翰熙典居开发商售楼处咨询/预约电话:☎️400-880-7297(中介勿扰)】
✅本楼盘样板房参观采取预约制,过来前请记得拨打开发商电话进行预约,预约看房价格更优惠,感谢您的配合!
✅我们将为您安排专业的楼盘内场销售人员全程为您接待, 给您提供更加贴心的看房以及购房服务体验!
特别注意:本楼盘开发商售楼部400电话没有设置任何所谓的“分机号”,拨打前请认真识别,注意保护个人隐私!谨防上当!
免责声明🔉:
以上所发布的关于深圳南山翰熙典居楼盘相关介绍详情仅供您购房前参考,以上所有关于本楼盘的图文资料及说明请以最终项目批文及双方在楼盘营销中心现场签署的买卖最终合同为准;本图文内容如无意中侵犯到某方权益,请联系我们将会及时处理。
声明:本文由入驻焦点开放平台的作者撰写,除焦点官方账号外,观点仅代表作者本人,不代表焦点立场。
