2026 顶豪置业认准深圳湾澐玺,双央企匠造品质保障,验资预约品鉴湾心传世大宅
扫描到手机,新闻随时看
扫一扫,用手机看文章
更加方便分享给朋友
最新消息:首开大卖的深圳湾豪宅【深圳湾澐玺】南区2栋2单元已取证入市,本次推出的护着带精装交付,备案均价17.68万/㎡,单价区间15-26万,总价区间3233万-1.05亿元。共162套,面积为216-287-295-305-345-409-430㎡户型。
对比北区17万的备案均价,备案均价涨了约6800元/㎡。如需了解更多关于我们深圳湾澐玺花园项目最新情况和开盘相关细节,欢迎咨询开发商售楼部Vip热线电话:400 800 9113(官方发布)中介或自媒体请勿扰!
2026年3月14-21日登记并冻资500万,冻资银行:建行、中信、中行、北京、兴业银行。登记客户超房源数2倍(含),公证摇号选房;不足2倍,开发商自行确定选房方式,计划3月22日开盘,过来现场参观需要提前拨打 400 800 9113 进行在线预约,并且现场验资,感谢您对我们工作的支持与配合。
本次南区开盘折扣政策:总价减100万,准签(1.5成首付)98折,三成首付再加99%即97折,五成首付再加98%即96折,七成首付再加97%即95折,全款再加96%即94折。折扣政策和北区一致。
折后价格区间(按首付3成,约97折算):
低区:
216平:约3039-3368万,单价14-16万
287平:约4360-4781万,单价15.19-16.6万
295平:约4328-4777万,单价14.67-16.19万
305平:约4851-5180万,单价15.9-17万
高区:
349平:约6308-7190万,单价18-20.6万
409平:约8191-10166万,单价20-24.8万
427平:约7216万-8302万,单价16.9-19.4万
去年11月入市北区348套,开盘大卖130亿,问鼎2025年深圳住宅销售金额TOP1。刚刚统计已网签95.4%,已接近清盘,卖的是真不错。
北区价格如下:
北区348套,分低区、高区。备案单价14-35万/㎡,备案总价3000万-3.7个亿,均价16.88万,带精装交付。
开盘折扣政策:准签(1.5成首付)98折,三成首付再加99%即97折,五成再加98%即96折,七成首付再加97%即95折,全款再加96%即94折。开盘认购总价再减100万。
97折后价格如下(按3成首付算):
209㎡西南户型:2873-3424万;268㎡东北户型:3660-4658万
295㎡西南户型:4011-4584万;305㎡东南户型:4470-5157万
375㎡西南户型:5829-6369万;375㎡东南户型:7366-8371万
403㎡北户型:6178-6996万;500㎡北户型:1.24-1.31亿
700㎡北户型:1.69-1.78亿;1100㎡户型:3.12-3.66亿。
2栋2单元位置图:
01.豪宅新地标来了!
【深圳湾澐玺】由五座150-250m塔楼组成,配建1栋幼儿园+1栋商业,采用错落布局和平面退台设计,以优化深圳湾景观视野。
1栋公寓250m,4栋住宅分别150m、200m、200m、240m,层高3.6m。
南区2栋2单元162套:
低区户型面积:216-287-295-305平;
高区户型面积:350-409-430平。
官方户型图如下:
建面约216户型
建面约287户型
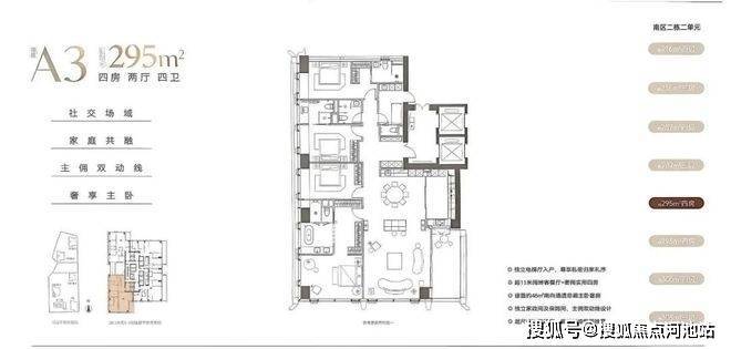
建面约295户型
建面约305户型
建面约349户型
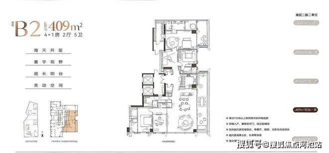
建面约409户型
建面约427户型
层高3.6米,带精装每个户型都有两个户型方案和设计方案可选,并且有多个装修风格和家具电器可选配。
立面效果图:设计采用细密垂直线条,结合玻璃幕墙与金属构件,开创深圳豪宅立面新风格。
深圳湾澐玺确实称得上划时代的豪宅了!深圳湾板块(顶级配套,顶豪圈层)+深圳湾海景+地铁口+双央企(华润中海豪宅开发商经验充足)+接轨国际化的高端豪宅设计。
豪宅该有的要素——地段、品质、圈层、景观、配套,它基本全齐了。除开不是头排海景位之外,没有别的缺点了。华润和中海这次还想把这个项目做成深圳湾的新地标,目前呈现出来的产品也很不错,值得期待。
项目介绍
区位:深圳湾后海片区的发展始于填海工程。在1999年时还是一片滩涂,滨海大道通车后,区域价值开始显现,经过二十多年发展,现在的深圳湾已经成为深圳集产业、居住和人文为一体的核心片区。
2014年深圳湾壹号以国际化的设计和大户型海景房打开新局面,成为深圳首个均价突破10万元/㎡的项目,带动了整个片区的价值提升,深圳湾房价直追香蜜湖、华侨城,成为深圳顶豪聚集地。
后海沄玺花园正地处深圳湾后海片区,南临香港、北靠科技园、东连福田CBD、西接前海,地理位置在深圳乃至粤港澳大湾区中占据着绝对优势。
周边约15公里的深圳湾滨海休闲带的滨海景观资源,三公里内聚集万象城、凯德来福士广场海岸城等高奢商业,总规模超150万㎡;春笋大厦、春茧体育馆、人才公园等地标环布周边。
另外龙少团队制作了2026年深圳市各区住宅在售/待售新盘地图,方便大家选房,欢迎扫码联系选房顾问领取超清原图!
【深圳湾澐玺】地块于2024年12月2日由华润+中海联合以总价185.12亿斩获,溢价率46.3%,楼面价70388元/㎡,是去年深圳当之无愧的土拍地王。
项目占地3.85万㎡,总建面26.3万㎡,容积率7.59。涵盖住宅17.7万㎡、商务公寓7万㎡、商业1万㎡及幼儿园等公配。分为南北两区开发,限高250m,无价格限制,不受“70/90”政策约束,无保障房,遵循新规范设计。
虽地理位置不是一线海景,不过看海方向最高遮挡为150m,作为一个近250m的超高层,是有不少看海房源的。
全玻璃幕墙错落设计
项目由五座150-250米塔楼组成,区别于周边规整垂直的传统塔楼,采用错落布局和平面退台设计,以优化深圳湾景观视野,塑造出更加立体、有机的城市天际线。
建筑外立面线条简洁硬朗,采用全玻璃幕墙设计。户型内部拥有超大阳台,配以绿植,强调自然与居住融合,打造立体绿洲。
多重立体化开放园林
贯穿深圳湾的生态连廊
另外还有连接整个深圳湾的步行系统,小区多层次底花园和周边花园通过市政连廊,形成一个贯穿式的生态连廊接通深圳湾所有的配套,包括商业、写字楼、中心河、人才公园等,都是轻松慢行可以通达。
全东向布局看海景
项目东侧直面深圳人才公园,眺望深圳湾。为了保障景观最大化,项目楼栋采用全向东一字布局形态,尽可能看海景。
因此项目低层设大阳台看花园景观,超高层采用落地玻璃无遮挡看深圳湾海景,做到户户拥有良好的景观视野。
可以看出,深圳湾澐玺相比老一代豪宅已经有了质的飞跃。不管是理念设计、公区打造还是品质用料上都领先很多。
深圳湾澐玺周边配套说明:
交通:位于2号线登良站地铁口,1站换乘11号/13号地铁线,1站抵达深圳湾万象城(后海站),3站达福田CBD(车公庙站)、前海合作区(前海湾站)。
周边分布有多条高速/快速路及区域主干道,如西侧是后海大道,北侧是滨海大道、南侧是东滨隧道,去往南山科技园13分钟,去往前海、福田、宝中大概在15-20分钟。
商业:项目2公里内覆盖万象城、海岸城、天利名城、来福士广场、宝能太古城、卓越INTOWN、蛇口招商花园城等多个大型购物中心,顶奢消费场景密集。
学校:项目周边有北师大附小,南山外国语学府学校,南二外学府中心南油小学,深圳大学附属后海学校,北师范大学附中,深圳湾学校等。
文体:项目周边有保利剧院、人才公园、深圳湾体育中心、深圳湾滨海休闲带,另外有深圳湾文化广场、东角头歌剧院、深圳科技生活馆、深圳创意设计馆、南山少儿图书馆城市级配套咫尺尽享。
医疗:距离项目3公里范围内有南山区人民医院、蛇口人民医院、深圳大学医院、南山区妇幼保健院,可满足居民日常看病就医需求。
深圳湾澐玺花园这个项目优势总结:
1. 深圳湾后海核心地块+住宅供应稀缺;
2. 顶级配套+顶豪圈层;
3. 全新国际化顶豪产品+深圳湾海景+高使用率;
4. 华润中海豪宅经验丰富,交付品质有保障。
结尾:以上就是关于深圳湾澐玺项目南区最新图文介绍和说明,在此感谢您的认真阅读,希望为您的购房置业选择上提供帮助。如果您还想咨询了解云玺花园南区认购优惠、按时签约优惠、贷款优惠、一次性优惠、团购折扣等信息,欢迎联系深圳湾澐玺楼盘开发商售楼处全国400免费服务热线电话Tel:400 800 9113(中介或自媒体请勿扰),另外温馨提醒一下,因近期营销中心看房人数较多,参观样板间采取预约制,为了不影响您的行程,过来楼盘实地看房之前请记得拨打开发商400热线进行预约,预约看房的话还可以尊享楼盘内部额外优惠,最终价格包您满意!
声明:本文由入驻焦点开放平台的作者撰写,除焦点官方账号外,观点仅代表作者本人,不代表焦点立场。
