官网【后海玺家园】专梯专户-小高层,面积188平起,首推197-237大平层.仅42套!
扫描到手机,新闻随时看
扫一扫,用手机看文章
更加方便分享给朋友
深圳豪宅市场热度还在消化时,后海核心板块重磅出击!
招商蛇口继 “招商双玺” 后打造的「后海招商玺」后,在后海布局的又一高端作品,2025年底12月份开盘入市!项目规划4栋住宅共261套,今年首开1栋高层住宅,建面约197-237㎡四房大平层。
【后海招商玺开发商售楼处咨询/预约热线 400-880-7297,中介勿扰】
温馨提示:因近期参观的购房者较多,所以本楼盘采取预约制,过来营销中心现场参观样板间请记得提前拨打开发商售楼处400热线电话在线预约,预约看房价格更优惠,感谢您的配合!
项目亮点:
【后海招商玺】使用率高达约95%,堪称“空间魔术师”!这意味着买100㎡,实得面积接近95㎡,性价比爆表。
社区采用“浮岛甲板”设计,车行入口有殿堂级落客区,仪式感拉满。户型相对集中197-237㎡,圈层更纯粹。
深圳楼市随市场开放及7090硬控取消,今年底深圳有「深圳湾沄玺」「中信信悦王湾」「后海招商玺」三大豪宅线新品集中入市。谁是你的菜?家人们自己也对比一下看看。
项目基本信息
01.
黄金区位:后海核心区的稀缺绝版地块
「后海招商玺」位于南山区招商街道后海大道以西、工业七路以北,是原联合饼干厂旧改项目。项目地处深圳湾超级总部基地与传统蛇口豪宅区的交汇处,堪称左手深圳源,右手深圳湾的黄金位置。
对比这一地段的价值,目前后海片区二手房均价已超过10万元/㎡,而深圳湾片区更是深圳最高二手挂盘价的保持者,常年稳定在18万/㎡以上。
深圳「后海招商玺」项目总建面15.08万平,其中住宅8.82万平,商业2100平,另有幼儿园、社康及其它公共配套。地下停车位共计700个,车位充足。
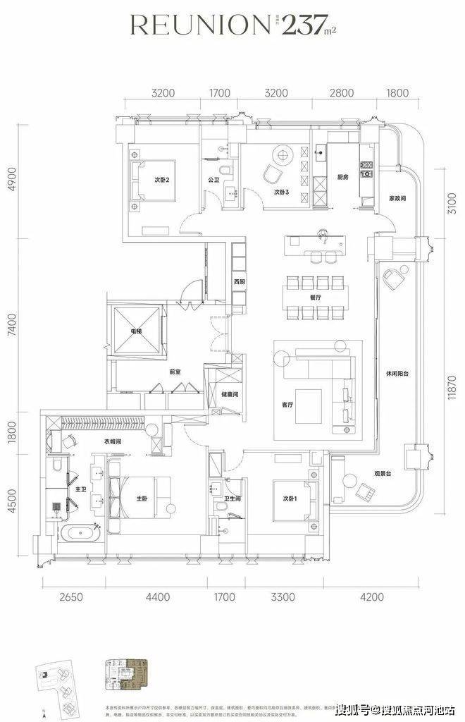
「后海招商玺」此次首推1栋小高层住宅,2T2户,专梯入户,户型为建面约197-237㎡的四房大平层。
项目户型分析与展示
02.
产品力解析:超高使用率下的成果
户型设计亮点还是挺新颖......
两个户型都是四房三卫+家政间设计,进门就是大客厅,卧室分布于客餐厅南北两侧,每个房间都有飘窗,且均拥有超大观景阳台。全明户型设计,确保了室内没有任何暗房。
最令人惊艳的是其空间利用效率——常规使用率在90%左右,加上电梯厅面积后使用率更可达95%;部分户型主卧采用270°转角飘窗,拥有全景仓视野和海景套房。
这一数据在当前的深圳豪宅市场中堪称翘楚,意味着业主能够以相同的产权面积获得更多的实际使用空间。
后海招商玺户型图欣赏:
项目产品设计分析
03.
产品设计与社区场景:超尺度的地标形象
招商玺在建筑设计上采用了创新的“浮岛甲板"策略,四栋住宅落于甲板之上,独享甲板庭院花园,进而形成超级社区底盘+浮岛绿化甲板的垂直共生人居标杆。
归家体验也极具仪式感。
车行入口打造殿堂级落客区,天幕穹顶搭配灵动水景,归家的尊崇仪式感扑面而来。
每栋住宅楼均配备独立入户大堂,设计风格与主入口一脉相承,延续高端质感。
社区还巧用架空层打造多功能架空花园,化身集休闲、社交于一体的专属会所空间,为业主提供了更多元的社交与休闲场所。
建筑立面以"海风百褶"为理念,打造海浪状肌理。外立面大胆采用弧线艺术勾绘王座式塔冠,以及大面积通透玻璃幕墙,辅以高端石材,淬炼出恒久典雅的观感。
项目配套分析
04.
项目配套:科创+金融+生态的高能聚合区
交通网络发达是其一大亮点。
项目位于地铁2号线海月站和湾厦站之间,步行距离都在700米左右。通过周边主干道,经后海大道、滨海大道可快速直达南山科技园、前海、福田等核心区域。
商业配套堪称顶配。
最近的大型商场是宝能太古城,距离700米,2公里内还覆盖有海岸城、深圳湾万象城、太子湾K11、招商花园城世界级地标商圈等,全球顶奢商业集群在此。
教育资源同样优质。
目前周边公立学校是育才第二小学、育才第二中学、育才四小、育才三中等,同时项目还配建一所幼儿园和一所九年一贯制学校。国际学校:深圳贝赛思国际学校、深圳蛇口国际学校(SIS)、蛇口科爱赛国际学校(QSI)。育才系学校在南山区排名前列。
生态资源是项目另一大亮点。
项目东侧为深圳湾,西侧规划社区公园,3公里内分布117个公园,包括四海公园、人才公园等,形成"推窗见海、出门入园"的居住体验。
项目优缺点分析
05.
客观评价:优势与考量并存
核心优势的亮点。
稀缺地段与优质景观:地处蛇口传统豪宅区,周边聚集了半岛城邦、双玺等标杆豪宅,地段优势明显;部分高层单位拥有海景资源。
卓越产品设计:超过90%的基础使用率,加上电梯厅后可达95%,户型空间布局合理,2T2户、专梯入户设计提升居住品质。
国企品牌保障:招商蛇口是深圳知名房企,资金实力雄厚,工程进度和交付品质有保障。
纯粹圈层环境:全部为197-235㎡四房大平层,社区圈层纯粹。
【后海招商玺开发商售楼处咨询/预约电话☎️ 400-880-7297(中介勿扰)】
✅ 本项目暂不接受临时到访,过来参观样板房请记得提前来电预约!
✅ 为您安排楼盘现场销售全程一对一在线解答,给您更贴心的体验!
温馨提醒:我们楼盘开发商售楼处400电话没有设置任何所谓的“分机号”,拨打前请仔细甄别,注意保护个人隐私!谨防上当!
免责声明:
以上所发布的关于深圳后海招商玺楼盘相关介绍详情仅供您购房前参考,以上所有关于本楼盘的图文资料及说明请以最终项目批文及双方在楼盘营销中心现场签署的买卖最终合同为准;本图文内容如无意中侵犯到某方权益,请联系我们将会及时处理。
声明:本文由入驻焦点开放平台的作者撰写,除焦点官方账号外,观点仅代表作者本人,不代表焦点立场。
