南山蛇口【招商望海玥家园】首推公寓389套,已开样板房,总价200万起,在售36-44-46-60㎡1-2房
扫描到手机,新闻随时看
扫一扫,用手机看文章
更加方便分享给朋友
深圳南山区蛇口要来海景新楼盘了,而且有小户型的!
蛇口新盘招商望海玥家园预计将于2025年第二季度开盘入市,目前项目已经出地面好几层了。项目部分户型可以看深圳湾海景,推出的面积在66-125㎡之间,而且本次住宅可售只有52套。均价大约在11.3万/㎡(此价格仅为参考,最终价格以开发商备案官方网站公布为准)。
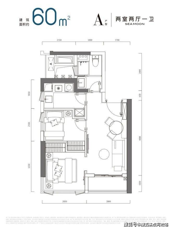
最新消息:招商「望海玥」项目首推公寓389套,目前已经开放营销中心跟实样板房,过来现场看样板房,需要提前拨打开发商售楼部400热线电话400 800 9113(已认证) 进行预约才能现场参观,整栋楼高度为35F,户型为36-44-46-60㎡的1-2房,精装修交楼。公寓基本上跟住宅的面积错开,蛮适合喜欢蛇口的单身或者小两口自住。公寓价格正常是住宅的6-7折左右,住宅卖11万,也就是说大概率在6-9万左右价格,据了解36㎡起步价在200这样,不过36㎡户型大概率不看海,户型图来看,看海的应该是44跟60㎡为主,而且看海的要中高楼层,46㎡应该侧面也能看一点海,看海户型或许得8-9万的单价了,以上价格只是猜测最终以我们官方输出拿证为准!
望海玥主力户型图速览
60㎡ | 双面采光两房 | 270°环幕视野
46-48㎡ | 端头通燃气一房一厅 | 独立厨房
43-44㎡ | 南向瞰海一房一厅 | 落地窗
36㎡ | 灵动大单间 | 小户型投资标杆
招商望海玥家园位居南山蛇口半岛,镶嵌在由太子湾招商玺家园、海上世界双玺花园、半岛城邦等深圳顶级豪宅社区构筑的沿海豪宅线上,坐拥山海阔景、完善配套以及优质人居环境。
望海玥项目具体位于望海路和湾厦路交汇处,蓝漪花园以东、蛇口老街以南,毗邻蛇口广场,与地铁2号线及13号线(建设中)东角头站相距约200米(地图测量仅供参考)。
整个望海玥项目包含4栋楼体2栋住宅1栋公寓跟一栋商业,产品户型设计多样,提供67平方米两房、95-106-112平方米三房及125平方米四房的选择。(具体以官方公示为准)。
望海玥家园共规划395套住宅房源,其中回迁房343套,可售普通商品房非常少仅有52套。大概率主要是卖公寓为主,望海玥家园为招商渔二村旧改项目,作为深圳蛇口最古老的渔村之一,该项目的旧改历程漫长且曲折。
望海玥项目从2006年启动,2018年开拆,直到2022年招商正式接手后才开始动工,今年年底有望入市。从启动到入市,耗时将近18年。
项目效果图
望海玥公寓户型图:
望海玥住宅户型图鉴赏:
海景地段+地铁口物业
招商渔二村旧改地块在蛇口老街、湾厦路和望海路交汇处。步行220米左右,就能到达最近的2号线东角头地铁站。
望海玥项目将结合蛇口半岛的滨海优势,建设集商业、娱乐、文化、居住于一体的具有滨海渔港风情的高尚商业居住区,利用渔港码头、游艇俱乐部等特色元素,传承“渔文化”,充分展现国际海滨城市风情。
可以看到地块的位置是不大的,通过百度的时光机,咖姐看到项目于2017年才进行围挡和清退。
相比之下,不远处的万科渔一村旧改项目,也就是现在万科蛇口公馆,地块面积则大得多。
2018年,万科蛇口公馆的住宅拿证时,备案价在7.97-10.06万/㎡,均价8.56万/㎡。
当时669人抢194套,中签率仅29%左右。
彼时无遮挡海景房招商双玺三期入市均价时13万/㎡,万科蛇口公馆的位置则稍靠里。
渔二村旧改的位置则比万科蛇口公馆更靠近海边,景观和视野也更广阔。
蛇口,有两个深圳最纯正的渔民群体——渔一村、渔二村,置身其中空气中仍然带着海腥味。当然,蛇口也是一个有情怀的地方,正是因为它和深圳城市化的发展历程有找密不可分的关系,决定了它现在优越的区域和地段价值。
然而,蛇口最后的渔村也即将消失,退出历史的大舞台。城市化的发展必然伴随的是城市更新,这两个渔村也将被深圳两个地产大鳄万科和招商操刀改造。
概括来讲,老蛇口留下了很多历史符号的建筑印迹,但已经赶不上规划的定位要求。东角头地铁口周边聚集了多个项目,渔一、渔二村旧改,渔人码头改造、蛇口油库搬迁、东角头土地整备出让等。从改造方向来看,未来片区内会有更多的住宅产品供应,并配以高端商业,整体提升可期。
对面的半岛城邦成交价就更高了,半一、半二的市场成交价在15万/平左右。
半岛城邦三期个别户型早已突破25万+/平,目前平均成交价在23万/平左右。
半岛城邦
2022年的蛇口,新盘表现相当不错,如招商仕林臻邸、招商玺家园、华侨城新玺,先后开盘都取得了较好的成绩。
可见深圳的有钱人对蛇口还是很认可的。
渔二村虽然存在超高容积率、周边城市面貌较差的缺陷。
但蛇口新房供应少,倒挂价差较大、部分楼层还是海景房,应该也会卖的很不错,所以操盘方更加不急于这一时了。
望海玥周边配套
交通:步行前往2/8号线的东角头地铁站大概200百米左右,出行方便,东角头地铁站是13号线二期(南延)站点之一,该线路共设车站3座,分别为东角头站、歌剧院站、日出剧场站。
学校:项目周边有蛇口学校、南外语滨海学校,距离相对较近,从项目位置步行前往两个学校的距离都是在四五百米左右。目前学校为蛇口育才太子湾学校,属于育才品牌后入驻的学校,比不上传统的育才牌子。
商业:项目本身规划有商业体积,加上周边社区带有底层商业,整体上满足日常购物需求,虽然片区内有多个大型商超,如海上世界、宝能·all city购物中心、City花园城、海岸城购物中心等商圈,但从项目前往这些商圈需要自驾或搭乘地铁,花费时间在15-20分钟左右。
文娱:步行可抵达深圳湾公园蛇口段,还有深圳歌剧院,海上世界以及海上世界文艺中心,妥妥的豪宅配套。
看完以上关于深圳蛇口招商望海玥家园楼盘相关的图文介绍,如果您对我们楼盘感兴趣的话,建议您可以联系我们望海玥开发商售楼处全国免费400热线电话:400-800-9113(已认证)在线进行免费咨询或对接楼盘现场销售人员(中介请勿扰),我们可以为您安排本楼盘现场销售一对一在线服务,比如说把楼盘的最新图文资料、样板房视频、通过手机的方式发给您看一看、您不需要立即过来楼盘现场就能够对我们楼盘熟悉个大概,还可以告诉您关于我们望海玥楼盘对比周边楼盘的优点缺点、楼盘这几天最新的优惠政策、银行政策以及LPR利率、积分入学,等相关购房方面的问题都给你讲解的明明白白,让您买房不踩坑,毕竟买房是大事。找现场销售咨询并不需要额外花钱,反而更省钱,而且可以避免一些中介虚报价格浪费你宝贵的时间和精力,我们会把额外认购优惠、按时签约优惠、房贷优惠、一次性付款的优惠都告诉您,希望您能通过这个平台,全面了解我们的楼盘信息并顺利、开心的完成购房流程。
免责声明:以上展示的关于深圳招商望海玥楼盘最新相关图文资料可能有部分来自于网络,一切信息以最终在在我们楼盘现场签署的购房合同为准,如图文内容可能无意中侵犯某方权益的话,请及时联系我们将配合处理。
声明:本文由入驻焦点开放平台的作者撰写,除焦点官方账号外,观点仅代表作者本人,不代表焦点立场。
