金光华龙岸君粼(售楼处) 官网 -金光华龙岸君粼售楼中心电话 - 环境 - 户型 - 价格 - 地址 - 楼盘详情 - 配套 - 电话 -
扫描到手机,新闻随时看
扫一扫,用手机看文章
更加方便分享给朋友
复式叠墅总价约14**-2000万
(毛坯现楼)折后价格区间:
(底叠1/2:18**-2000万)
❗最后一套❗
(中叠3/4:14**-1650万)
❗最后三套❗
(上叠5/6:15**-1602万)
❗最后两套❗
(顶叠7/8:售罄❗)
三期高层住宅总价区间
(含8000/m²国际一线豪装)
⭐86平折后:5**-650万
⭐112平折后:7**-850万
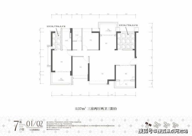
⭐137平折后:9**-1080万
二期高层住宅(大六房)
❤️164平折后:1**9-1210万
如需了解本楼盘更多详情,欢迎来电咨询深圳金光华·龙岸君粼开发商售楼处免费400咨询/预约电话:400-811-3080(官方发布)中介请勿扰,因近期参观的人员太多,本项目营销中心暂不接受临时到访,为不耽误您的行程,过来楼盘现场参观样板房请务必记得提前来电预约,预约看房的话最终房价还能更加优惠,最终价格包您满意!
金光华圳央墅区项目介绍
【项目指标】
【开发商】:深圳市金光华地产开发有限公司
【用地面积】:99046.5㎡
【容积率】:约1.99
【绿化率】:60%
【层数】:高层住宅:32层 / 叠墅:8层
【梯户比】:高层住宅:2梯3户/2梯4户
叠墅:专梯入户
【别墅产品】:约206-258㎡(售罄❗)
【叠墅产品】:约178㎡(毛坯现楼)
【高层产品】:三期约86-137㎡(精装现楼)
二期约165㎡(精装现楼)
【项目地址】:龙华区雅园路与华南路交汇处
【品牌观·宽厚】27载金光华·实力有信心·置业无忧
金光华集团——与城市共生长,所筑皆封面
立足于深圳,27载韶光,致力于成为粤港澳大湾区高品质城市综合运营商。十余年稳健发展,集团土地储备建面超1000万㎡,布局4大核心区域多颗希望种子。
10年缓酿墅区
超150万㎡人居版图,深圳中轴天然湖山+多个低密豪宅规划, 金光华领衔大区域开发,觉醒平方公里级城市理想,各大产业总部齐聚。
【城市观·通达】国际匠师之作·规划更用心·美好渐呈
•鼎立湾区核心 ,深圳主城烫金之作
福田中心、深圳北站商务中心双CBD 1+1>2,占城市黄金地脉;势起大区域开发,鼎立深圳主城板块,成就大城都会封面生活。
•赋能版块进阶,扛鼎区域价值升级
① 占地60万㎡,总建面不低于250万㎡的深国际·华南数字谷,与香蜜湖新金融中心规划同等城市站位,赋予片区巨大价值。
② 约37万㎡民悦公园(规划中),总投资约1.5亿元,成就城市生态人居高地。
③ 约160万㎡星河WORLD,约2800万㎡华为总部基地带动区域创新,板块含金量飙升。
•双枢纽+五轨道交通,城央一脉通达
①双枢纽(深圳北站+五和站),1小时无缝对接大湾区;五和站城际枢纽,5/10号线及规划中的深大、深惠、深广中轴城际。
②双地铁口(光雅园站+南坑站),五轨道(22号线在建中),5号线3站南山、10号线2站福田,约15mins高效通达深圳各区,城市脉搏咫尺把握。
③民乐路2024年即将全面通车完成验收,开通后将大大缩短至梅观高速车程,畅达福田。
•内外双循环配套,聚合多维资源
①产业配套:梅林-彩田新一代信息科技总部基地 | 深国际华南物流园 | 星河WORLD | 坂雪岗科技城-华为总部基地
②旗舰商业:COCO Park,8号仓 | 高配山姆会员店、costco | 红山/福田双CBD商圈
③TOP文教:潜龙学校附属龙岸幼儿园 | 万科双语学校(私立) | 华南实验学校(小、初中部) | 72班九年一贯制学校(在建中),24班小学,18班小学( 规划中)
④优质医疗:市第二人民医院 | 新华医院 | 深圳第二儿童医院
⑤双CBD人文:红山展览馆、演艺馆、图书馆、美术馆 | 福田深圳音乐厅、图书馆、市少年宫、博物馆等
【资源观·从容】外拥四湖一山·内享龙栖湖·低密墅区
•天赋湖山大境,约6万㎡湖畔园林美学
君粼近享银湖山、塘朗山两大山脉,揽民治、民乐、雅宝、南坑四大湖泊;
内揽约5300㎡龙栖湖、约6万㎡园林景观,内外围合,开启城市美学生活。
•台地园林:复式叠墅享相对独立的组团花园,3800m²欧式风格台地园林
台地园林错落有致,打造首层私属定制的花园式入户、四大主题性共享庭院、格调精致的植物搭配,每栋首层拥有独立入户路径,花园层层叠进,建筑高低错落有致,推窗即见景也保障居住私密性与舒适性。
•奢想墅院:实景现楼,双层专属一户,高赠送,超低梯户比
叠墅采用新古典立面风格,上下两层叠拼为一户,一户独占两层,上下皆有度。一栋仅4户,专属舒适。层高3.3米,1梯2户超低梯户比,首层赠送入户花园,顶层赠送实用阁楼,多阳台、多露台,超高使用率,独立专属电梯厅入户,玄关带阳台,于此拥有从墅院生活到独揽天地的完满体验。
金光华·龙岸君粼86-258平胜过新规湖景小洋房!2026团购特价房火热报名中↓另有别墅清盘特惠价
新房官lang已关注
已同步到看一看写下你的评论
视频详情
▰▰▰▰▰▰▰▰▰▰▰▰▰▰▰▰▰▰▰▰▰▰▰▰▰▰▰▰▰▰▰▰
•约2.0低密舒居,“林、风、山、云”四大主题园林
高达60%绿化率,最大约350m阔绰楼间距,目光所至珍藏隽秀波澜;三期园林“静、悠、轻、想”的匠心,规划独立私属归家景观带,步履间享格调流淌。
宽阔的不仅是约2.0超低容积率,更是步步皆植被,生态进家园的约60%绿化率。

以时代之匠心,致敬世界湾区之辉煌
①接驳连廊设计,连通不同楼栋,关怀业主日常出行,悉心照拂归家脚步。
②归家+休闲双动线,入户双重尊贵归家之道,规划阳光景观车库,诠释高门礼序。
③全龄交互乐享空间,打造主题全龄泛会所,专配生日轰趴馆、贵宾宴会厅。
•名家执笔雕琢,擘画高端人居品质
室内设计由全球酒店室内设计排行第一的CCD执笔打造;社区园林经由山水比德景观设计机构再执笔规划与升级。
【著作观·考究】精工匠造好房·精妆更放心·奢适品质
精工筑家,豪宅级空间规划,关怀凝练细节;台地园景,“歌剧院式”规划布局,循地势南北高,中间低,形成自然起伏呈“聚气藏风”之势,推窗即见景也保障居住私密性与舒适性。
①高阔奢享:建面约86-176㎡墅境宽宅,改善型大四房,全南向户型天然舒适;两梯三户低梯户比,多阳台露台设计,悦享阔绰居住空间;方正户型结构搭载更多半开放设计,高阔空间实用率与灵活性大幅提升。
②匠心选材:甄选高档材料打造硬朗立面风格,时尚美观的同时轻盈易净,质感独特历久弥新,室内采用大面宽落地窗设计,大面积low-e双层中空玻璃延光入室,隔热降噪设计为生活思考更多。
③三期奢配生活:甄选全球Top级品牌甄装,德系精工、Miele精品系再展生活质感,墅境美学标准叠加国际空间标准,点睛都心风尚人居。
【圈层观·远见】高阶身份象征·社交更优雅·眼界共鸣
圈层进阶,读懂圈层人物的向往。纵观全球,环湖法则随经典不断流传,渐成高净值人居圭臬。君粼深谙自然的美好无价,悉心于墅境之上、旖旎湖畔再著雅奢宽宅,重筑跨越时光的经典品味,为深圳艺术湖居生活再呈佳作。
【三期平层户型图】
【二期平层户型图】
【二期叠墅户型图】
看完以上介绍,如需了解更多关于我们深圳龙华金光华·龙岸君粼楼盘最新消息、剩余房源以及楼层、这几天房价优惠活动、在卖的户型、限购政策、房贷相关问题等情况,欢迎来电咨询金光华·龙岸君粼开发商售楼处全国免费400咨询/预约电话:400 811 3080(官方认证)中介请勿扰。
温馨提示:因近期本项目售楼中心来访的看房客户特别多,过来营销中心参观样板间采取预约制,为不耽误您的行程,过来营销中心现场看房请务必记得提前拨打售楼处400电话来电进行预约一下,预约看房价格还可以享受更多开发商内部优惠,名额有限千万不要错过,感谢您对我们工作的支持和配合,在此恭候您大驾光临实地品鉴。
免责声明:以上展示的关于深圳金光华·龙岸君粼楼盘最新图文资料可能有部分来自网络,一切信息以最终在现场签署的购房合同为准,如图文内容无意中侵犯某方权益的话,请及时联系我们将配合处理。
声明:本文由入驻焦点开放平台的作者撰写,除焦点官方账号外,观点仅代表作者本人,不代表焦点立场。
