【合泰·嘉悦公馆】盐田首个新规户型,总价340万起,买72-99平精装3-4房,8号线沙头角站
扫描到手机,新闻随时看
扫一扫,用手机看文章
更加方便分享给朋友
最新消息:

盐田沙头角,合泰嘉悦公馆已经拿证,备案均价5.75万,项目定在9月21日正式开盘,这次开盘也给出了9.3折的综合优惠,折后均价5.34万/m²,折后单价4.48-6.25万/m²,3房折后总价336万起,4房折后总价484万起。
72m²的3房2厅1卫,折后总价336-447万/套,单价4.65-6.17万/m²。
81m²的3房2厅1卫,折后总价374-499万/套,单价4.61-6.15万/m²。
88m²的3房2厅2卫,折后总价396-533万/套,单价4.48-6.04万/m²。
99m²的4房2厅2卫,折后总价484-623万/套,单价4.85-6.25万/m²。
【合泰嘉悦公馆开发商售楼处咨询/预约热线📞 400-880-7297,中介勿扰】
温馨提示:因近期参观的购房者较多,所以本楼盘采取预约制,过来营销中心现场参观样板间请记得提前拨打开发商售楼处400热线电话在线预约,预约看房价格更优惠,感谢您的配合!
下面是合泰嘉悦公馆备案价格表

本次嘉悦公馆开盘推出1栋174套房源,面积有72-81㎡的3房1卫,88㎡的3房2卫,99㎡的4房2卫户型,期房带精装交付,具体交楼时间待定。

嘉悦公馆是沙头角板块仅有的在售新盘,并且还是新规楼盘,双地铁口物业,配套的是深高级盐田学校,背靠梧桐山,远眺沙头角海。
对项目感兴趣可以加我们预约看房,千万别自己去看房;预约我们才有额外优惠和最底价,咨询电话:15889473566
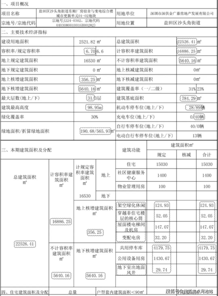
一、项目介绍
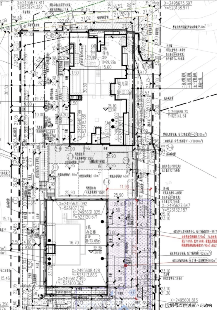
嘉悦公馆,由盐田本土开发商,合泰集团打造,分南北区2个地块打造,总占地面积约0.61万㎡,总建筑面积约5万㎡,共由2栋总高31-33层的住宅组成,另外规划1栋写字楼17层。
本次推售的是南地块,总占地面积约0.25万㎡,总建筑面积约2.25万㎡,计容建筑面积约1.69万㎡,容积率6.7,绿化率30%,共由1栋31层高的住宅组成,总规划174户,全部都是商品房,3梯6户设计,地下室有3层,规划117个车位,车位比1:0.67。


还有北地块:1栋17层办公楼,以及1栋住宅33层这栋住宅是含回迁房、保障房及公配设施(幼儿园、社区体育场地等)


二、项目基础数据
【开发商】深圳市深供金广嘉房地产发展有限公司
【占地面积】约0.25万㎡
【建筑面积】约2.25万㎡
【总户数】174户
【户型面积】72-81-88-99㎡3-4房
【停车位】117个(车位比1:0.67)
【物业及物业费】合泰自有物业,--元/㎡/月
【绿化率】30%
【容积率】6.7
【总楼栋及总层高】1栋,31层
【梯户比】3梯6户
【交楼时间】待定,精装修交付
【产权年限】70年(2024-2094年)
【项目位置】深圳市盐田区沙头角(地铁8号线沙头角站C口700米)
三、嘉悦公馆项目户型图
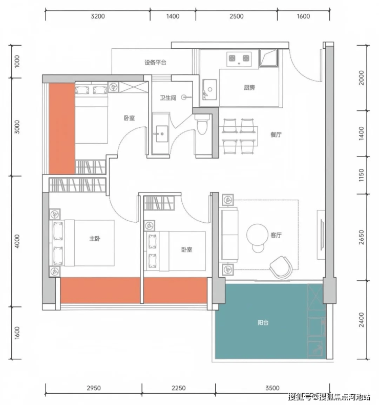
01
项目航拍图
02
嘉悦公馆户型介绍
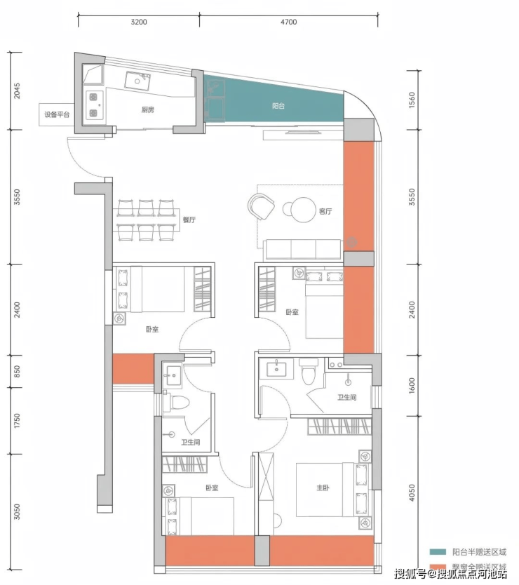
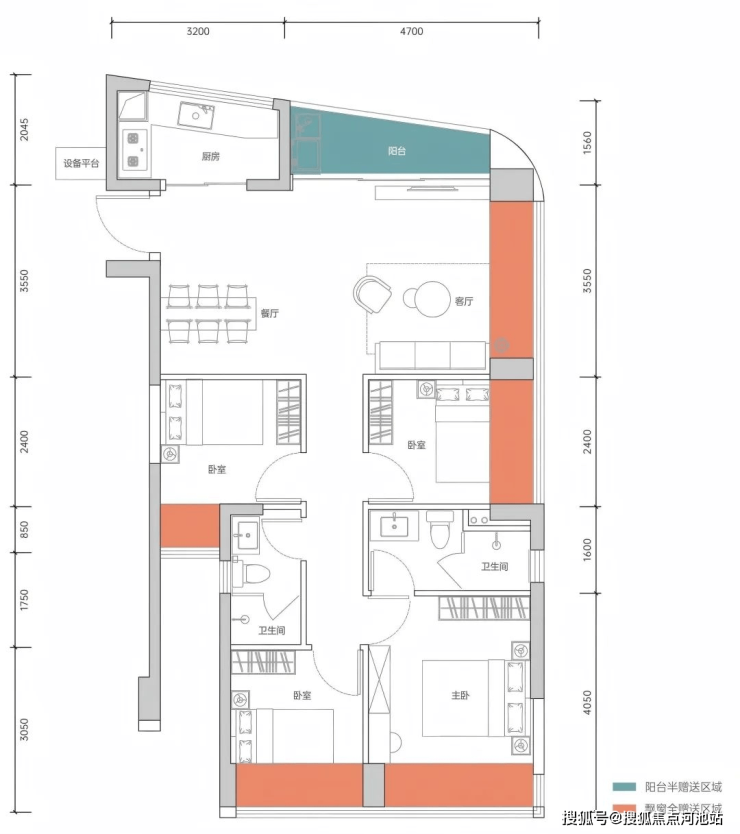
72㎡的3房2厅1卫,设计的是竖厅格局,客厅3.5米开间,LDKB一体化设计,动静分区,3个卧室分别做到了主卧11.28㎡/次卧8.57㎡/次卧7.76㎡(包含墙体飘窗),客厅出3.78㎡的大阳台,U型厨房5.22平,卫生间干湿分离,得房率约86-90%(包含赠送),正北朝向。
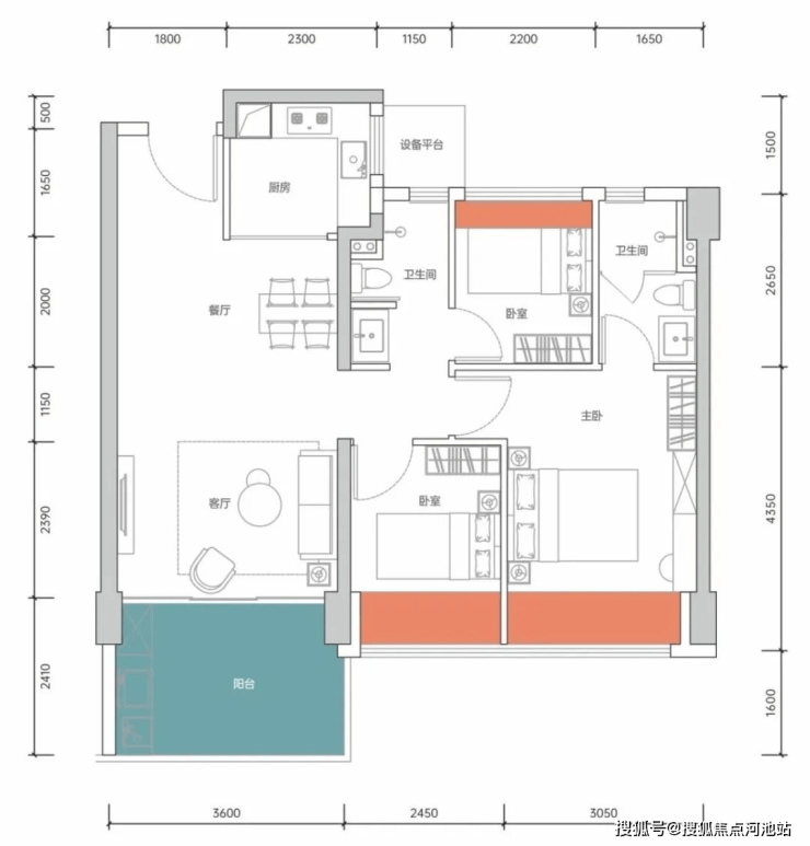
81㎡的3房2厅1卫,设计的是经典竖厅格局,客厅3.5米开间,LDKB一体化设计,三开间朝南,动静分区,3个卧室分别做到了主卧11.29㎡/次卧8.97㎡/次卧7.76㎡(包含墙体飘窗),客厅出8.4㎡的大阳台,U型厨房5平,卫生间干湿分离,得房率约86-90%(包含赠送),正南朝向。


88㎡的3房2厅2卫,设计的是经典竖厅格局,客厅3.6米开间,LDKB一体化设计,三开间朝南,动静分区,3个卧室分别做到了主卧14.26㎡/次卧7.81㎡/次卧5.83㎡(包含墙体飘窗),客厅出8.67㎡的大阳台,U型厨房4.95平,公卫三段式干湿分离,得房率约86-90%(包含赠送),正南朝向。
99㎡的4房2厅2卫,设计的是竖厅南北通透格局,客厅3.55米开间,LDKB一体化设计,动静分区,4个卧室分别做到了主卧12.96㎡/次卧7.93㎡/次卧7.7㎡/次卧7.68㎡(包含墙体飘窗),客厅出7.3㎡的阳台,U型厨房6.54平,卫生间干湿分离,得房率约86-90%(包含赠送),阳台主朝北向。


四、交通出行
直线距离8号线沙头角站/海山站地铁口均约700m,1站罗湖,9站福田CBD。拥享沙头角&莲塘双口岸,快速抵达香港,轻松实现双城生活。
深盐路封面标杆,直连深南大道、滨河大道、北环大道,半小时通达福田、南山。

五、商业配套
紧邻盐田商业标杆——约25万m²壹海城商业及中英街,同时旁边规划有深港国际旅游消费区重点项目——田心工业区旧改5万㎡+商业,免税购物天堂为这里的业主实现了家门口的高品质生活。

六、周边学校
项目自带公立幼儿园,周边林立深圳高级中学盐田学校、田东中学、林园小学等优质学府。
其中,项目西侧紧邻的深圳高级中学盐田学校(九年一贯制),该校由盐田区委区政府与深圳市高级中学联手打造,总建筑面积51715.36平方米,办学规模为54个教学班。学校配备独立体育馆(恒温游泳池、网球场和篮球场)及物理、化学、生物、信息、科学、舞蹈、合唱、美术等高配置功能室,融合深高GLOBE课程体系,开展3F荣誉课程、科创课程等特色教育。
东侧规划新建54班九年制学校(山海学校),采用"小班化+智慧教育"模式,预计2026年投入使用。北地块自建12班幼儿园,满足0-18岁全龄段教育需求。周边还有林园小学(区属公办)、田心小学(排名第3的优质小学)、田东中学(省一级初中)等教育资源,形成"三校环绕"的教育矩阵。盐田区正积极推进教育现代化,2023年新增学前、义务教育学位不少于1900个,为居民子女提供良好的学习环境。
(说明:本项目的学区划分和学位申请以教育局当年公布的招生政策为准)

七、休闲配套
沙头角以其价格洼地+生态宜居性+丰富的文化底蕴优势吸引了众多关注,使其成为了刚需置业者在盐田的首选板块。
生态环境:北倚翠绿梧桐山,负氧离子含量高于外区60%,空气质量优良率达100%。南眺辽阔大鹏湾,坐拥19.5公里黄金海岸线。69公里半山公园带串联多个生态公园,更有东和公园、盐田中央公园等多公园环伺,宜居指数全市第一。

此外,项目近享盐田的四大馆文体配套,盐田图书馆、盐田文化馆、沙头角体育馆、中英街博物馆等。

八、片区规划
盐田嘉悦公馆所在区域以"数字创意+现代服务业"为主力军,依托沙头角深港国际消费合作区政策,构建了多元化的产业格局。项目周边聚集了国际消费组团(免税场景、跨境购物)、总部创新组团(金融、科技企业)、黄金珠宝组团(周大福等龙头企业)以及生命健康组团(大百汇生命健康产业园)。盐田区2023年GDP达850.02亿元,同比增长5.3%,第三产业占比82.4%,战略性新兴产业增速显著,其中计算机通信电子设备制造业增长26.1%。沙头角街道作为深港融合前沿,拥有国家级沙头角保税区,主要承载港口物流、保税服务及高端航运业。随着沙湖新城220万㎡综合体(对标万象天地)的规划落地,区域产业能级将进一步提升,为居民创造更多就业机会。
🏗【盐田百万旧改 田心工业区】
田心旧改作为沙头角深港国际旅游消费合作区的核心项目,以百万级体量重塑城市格局,打造“深港国际消费合作核芯、都市山海商务活力中心”。未来,这里将成为深港融合的桥头堡,吸引高端产业与人才,焕发区域经济活力。

信息来源:美好盐田公众号《深港新“盐”值⑥ | 老旧工业区“破旧赋新” 加速蝶变万象城2.0版》
九、周边房价对比
盐田在售新房:佳兆业御璟佳园、鹏瑞南区项目等,对比价格和地段。
二手房:山海四季城、东部阳光花园等,可能价格更低。
十、小区高阶品质
——凝萃时代美学,缔造高品生活——
💫【极简美学 镌刻城市经典】
外立面采用真石漆、铝板幕墙及中空LOW-E玻璃,以现代极简美学打造历久弥新的城市地标。
中空LOW-E玻璃公建化立面:有效隔音、阻隔紫外线,营造舒适室内环境;
铝板线条:赋予建筑挺拔质感,外立面精致大气。

【高品公区 悦享高配社区生活】
项目以人性化高定标准,尽心打磨公区及居所,融合东境西韵设计理念,集奢华、现代美学的元素,注重奢华感和仪式感,采用超现代立面风格和艺术弧线角设计打造酒店化品质入户大堂。


嘉悦公馆优点:
1、位于盐田的核心板块--沙头角;
2、学校不错,深圳四大之一的深高级盐田学校;
3、距离地铁、商场都比较近;
4、距离400米有盐田人民医院,800米有盐田区政府,1公里的中央公园,还有海滨栈道,背靠梧桐山远眺沙头角海,居住环境较好,适合住家;
5、居住人群纯粹,纯商品房;
6、得房率高,新规户型。

【深圳盐田嘉悦公馆开发商售楼处咨询/预约热线电话:☎️400-880-7297(中介勿扰)】
✅本楼盘样板房参观采取预约制,过来前请记得拨打开发商电话进行预约,预约看房价格更优惠,感谢您的配合!
✅我们将为您安排专业的楼盘内场销售人员全程为您接待, 给您提供更加贴心的看房以及购房服务体验!
免责声明🔉:
以上所发布的关于深圳嘉悦公馆楼盘相关介绍详情仅供您购房前参考,以上所有关于本楼盘的图文资料及说明请以最终项目批文及双方在楼盘营销中心现场签署的买卖最终合同为准;本图文内容如无意中侵犯到某方权益,请联系我们将会及时处理。
声明:本文由入驻焦点开放平台的作者撰写,除焦点官方账号外,观点仅代表作者本人,不代表焦点立场。
