深圳龙岗【融湖盛景花园】平湖标杆!约82㎡-143㎡3房-4房!实景现房 !
扫描到手机,新闻随时看
扫一扫,用手机看文章
更加方便分享给朋友
深圳【融湖盛景花园】
最新消息:融湖中心城5期本次开盘推出建面约82-111㎡3-4房,总价319-500万,单价4-4.5万/平米。如需了解更多详情,欢迎咨询融湖盛景花园开发商售楼处咨询/预约电话:400-880-7297(已认证)中介请勿扰,过来我们营销中心看房务必记得提前来电预约,预约看房的话最终的价格还能更加优惠。
基础资料
开发商:深圳市鼎宏投资发展有限公司
地址:深圳市龙岗区平湖街道平吉大道与平龙路交汇处
占地面积:5万
总建面:27万㎡
产权:70年(21-91)
总户数:1803户
面积:82-111㎡2-4房
开发商电话:4008807297(官方)
梯户比:2梯4户、2梯5户,2梯6户
价格:3.8-4.5万
交楼标准:精装
物业公司:深圳市岗宏城拓物业管理有限公司
物业管理费:4.2元/㎡
容积率:3.97
绿化:40%
交楼时间:合同25年10月预计24年底交楼
建筑类型:住宅
层高:2.95米
使用率:80%
楼层高:31层
栋数:1栋5单元
水电:民水民电
商业:4万+1.17万㎡
学校:九年一贯制公立信德学校
在售户型:3.8-4.5万
82㎡ 3房1卫319-371万单价3.8-4.5万
94㎡3房2卫349-412万单价3.7-4.3万
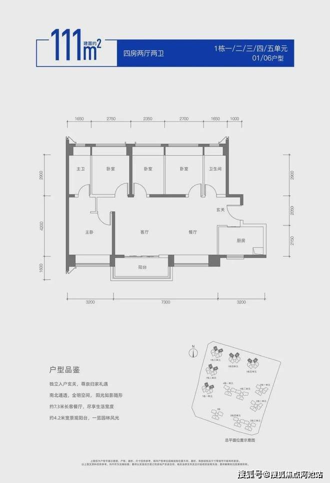
111㎡4房2卫444-505万单价4-4.5万
113-115㎡4房2卫476-495万单价4.2-4.3万
130㎡4房2卫554-576万单价4.2-4.4万
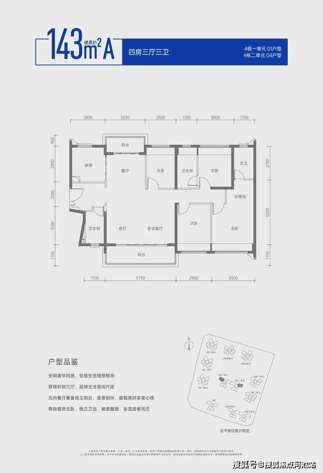
143㎡4房3卫624-672万单价4.3-4.6万
项目总规划平面图欣赏
户型图欣赏
备案价
以上就是关于深圳融湖盛景花园这篇文章的详细介绍说明,看完以上介绍内容,如果您对我们融湖中心城5期还有任何疑问,欢迎联系融湖盛景花园开发商售楼处电话:400-880-7297(中介请勿扰)进行咨询或者安排本楼盘现场销售在线为您一对一服务,现场销售人员会把楼盘的新资料、样板间图片视频、都发微信给您看、您不需要过来楼盘现场都能够熟悉个大概,还可以了解到本楼盘的优点缺点、房产政策、银行贷款政策、积分入学、都给您讲解的明明白白。现场销售还可以为您对我们楼盘进行全面更详细的介绍,包含项目开盘详情、近期房价、楼层高低、户型朝向分析、最新折扣优惠活动等情况,而且还可以避免中介虚报价格,耽误您的时间和精力,中介所给的优惠我们全都可以给,让您买的放心,住的舒心!买房是大事,记得及时联系我们。
免责声明:以上展示的图文资料可能有部分来自于网络,一切信息以最终在现场签署的购房合同为准,如图文内容无意中侵犯某方权益的话,请及时联系我们将配合处理。
声明:本文由入驻焦点开放平台的作者撰写,除焦点官方账号外,观点仅代表作者本人,不代表焦点立场。
