2026福田【湾尚·庭玺】119-175㎡3-4房,双口岸地标综合体,品质现房
扫描到手机,新闻随时看
扫一扫,用手机看文章
更加方便分享给朋友
核心地段,高品质住宅。身处繁华,也可以拥有自己的一方静谧,回归生活的本质,重拾对家的热爱。




项目基础信息
开发商:深圳市承翰投资开发集团有限公司
占地面积:约2.5万㎡
建筑面积:约25万㎡
业态类型:高端住宅、办公、酒店、公寓、商业
(仅住宅可售,其余业态自持运营)
产权年限:住宅70年
总套数:374套(一期住宅)
总层高:5-41层(12、28为避难层)
开发商电话:4008113080
梯户比:A座4梯6户、B座4梯5户
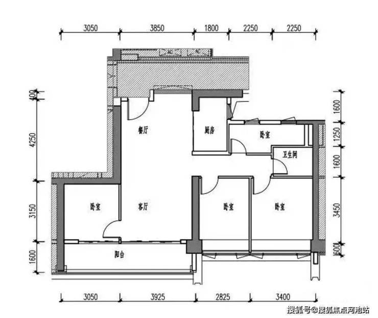
主推产品:庭玺119-175㎡住宅
119-120-122㎡ 3房2厅2卫
124-128㎡ 4房2厅2卫
174-175㎡ 4房2厅3卫(专梯入户)
交楼标准:精装
均价:11万(含精装)
车位:972个(一期车位)
交楼时间:2025年3月31日
物业管理:9.8元/平米,世邦魏理仕为咨询顾问,定制24小时管家式服务
承翰湾尚国际·庭玺值不值得买?
【区位价值】福田正脉,享九大功能中心配套
集行政,文化,金融,交通,会展,购物,酒店,公园,住宅等九大优质配套。

【规划价值】三大引擎赋能,造湾区科创中心
最新“十四五”规划中,福田定位湾区总部经济核心区,并聚焦河套深港科技创新合作区、香蜜湖新金融中心、环中心公园活力圈“三大新引擎”,项目位于三大引擎的三角地带核心位置,坐拥众多规划和资源。

【教育价值】12年无忧教育,轻松接轨海内外名牌学校
项目骏玺在建总计9个班的配套幼儿园,周边有福田名校荔园外国语教育集团(荔园外国语小学(水围校区)),世界名校摇篮(深圳国际交流学院附属初中部),皇岗中学等丰富教育资源,满足一站式12年无忧教育。


【交通价值】 4+2+2交通配置,切换从容生活
【4地铁】距福民地铁站700米,福田口岸400米。毗邻地铁4、7、10号线福田口岸站及福民站,20号线(规划中)
【2口岸】临近福田口岸与皇岗口岸,无缝接驳深港两地;
【2轨道】穗莞深城际轨道(建设中)2站直达前海,联通两大深港合作区;福田高铁站,快速链接全国。

【生态价值】奢享福田中心3公园2山1区1绿道,500公顷生态绿肺
周边分布着“3公园(皇岗公园、红树林生态公园、福田中心公园)2山(莲花山、笔架山)1区(米埔自然保护区)1绿道(福荣都市绿道)”的自然景观,环绕500公顷生态绿肺,未来下楼600米到达皇岗公园,可以在闲暇时刻与家人一起与自然徒步。

【品牌价值】 20余载品牌沉淀,于湾区造地标
承翰集团20余载,业务聚焦地产、教育、物业、农业、青创、公益等众多领域。截止2021年末,集团开发、在建、运营的项目共计20余个,总建面超过200万㎡,包括慢城,陶源,陶柏莉等知名优质项目,注重精工品质及项目创新,为更多的人拥有品质生活而不懈奋斗。

【综合体】都会生活风貌,锻造城市雅集
建筑面积约25万㎡雅贵综合体(住宅|商业|公寓|办公|酒店),于繁华的城市中心,慢度全能悠闲的优雅生活。
【人文雅宅】极具新中式东方美学的精工美宅,匠造一座CBD内心桃花源;
【ForC购物中心】多元品质生活中心,演绎一站式生活场景
【万豪AC酒店】华南地区首个引入五星级标准万豪精品酒店(AC欧轩)
【雅诗阁盛捷】知名品牌雅诗阁旗下盛捷酒店运营管理
【甲级办公】总部级城市商务封面

【大师高定】全球大师执笔,匠造全新标杆
邀请东方美学设计大师程绍正韬、全球商业设计TOP3J&A杰恩、全球建筑设计TOP3AECOM、全球酒店设计TOP3CCD郑中设计组合的大师团队,以更高标准打造生活的繁华与优雅,去丰富内心世界的需求。

【人文雅宅】 五重归家礼序,回归优雅生活
建筑室内外融合统一,五重归家礼序,迎接世界归来的步履,于都市桃源中邂逅悠然天地。渡口打开归家的仪式,秋水洗去身心的尘嚣,像蝴蝶一样流连花间,从石涧中品味高山流水,徘徊于悠远的诗性逸境。
【5重意象景观+7大功能园林】 融合建筑与自然的界限,打造花园层的城市村落;

【4F泛会所】业主客厅的延展,营造宠辱不惊、去留无意的意境空间;同时精选品质石材打造,提升整体的品味及调性。



【户型格局】楼栋板式设计,户型方正,南北通透,采光性能优秀,保证了居住视野。



【精工品牌】甄选世界知名精装品牌,引领奢宅标准前沿;例如:瑞族、大金、MASTER、汉斯格雅等国际一线品牌。配备全屋智能化系统,将安全便捷融入生活,满足豪宅的配置要求;

( 注:具体精装品牌以实际交付为准)
【物业服务】 定制高端服务,彰显尊享品质
引入五大行-世邦魏理仕提供物业服务咨询,承翰物业贯彻精诚,周到的服务理念,提供7*24小时金管家式服务,为您提供住家全无优的尊享生活。

【承翰骏玺开发商售楼处咨询/预约电话☎️ 400-811-3080(中介勿扰)】
✅ 本项目暂不接受临时到访,过来参观样板房请记得提前来电预约!预约看房价格更优惠!
✅ 为您安排楼盘现场销售全程接待并讲解,给您更贴心的看房体验!
温馨提醒:我们楼盘售楼部400电话没有设置任何所谓的“分机号”,拨打前请仔细甄别,注意保护个人隐私!谨防上当!
【免责声明】
1、本文部分信息和图片来源其开发商推广内容,对项目周围交通、商业、文化教育、医疗以及其他市政条件的介绍,具体以政府规划及现场实际为准。
2、效果图是规划意向的概念设计展示,非最终规划方案,不作为开发商承诺,最终以向政府报批报建的方案为准。
3、本文所述内容和意见仅供参考,不构成市场交易依据和投资建议,买卖双方权利义务以双方签署的买卖合同为准。
声明:本文由入驻焦点开放平台的作者撰写,除焦点官方账号外,观点仅代表作者本人,不代表焦点立场。
