鸿荣源·壹城中心(深圳)鸿荣源·壹城中心户型图/规划图/交房/房价
扫描到手机,新闻随时看
扫一扫,用手机看文章
更加方便分享给朋友
龙华壹成中心,项目规划总占地约41万平米,总建面达320万平米,是深圳北部片区建设规模最大的住宅社区之一!

我们这个项目分为11个区域建设

鸿荣源·壹城中心10区,是整个大工程的最后一个项目,深圳壹城中心十区计划2025年5月31日精装修交楼!

壹城中心备案名叫做 壹城时尚花园
壹城时尚花园是该项目第9个开盘的住宅小区
在此之前的8期住宅都是瓷砖的外立面,终于在最后一期,换上了最流行、最时尚的铝板外立面;而且还带装修(之前的都不带装修)

不仅如此,本项目也是户型面积最小的一区,全部在100㎡以内
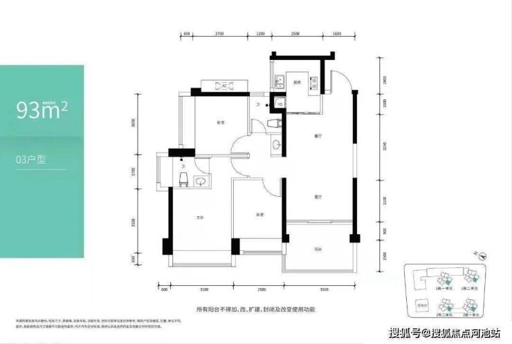
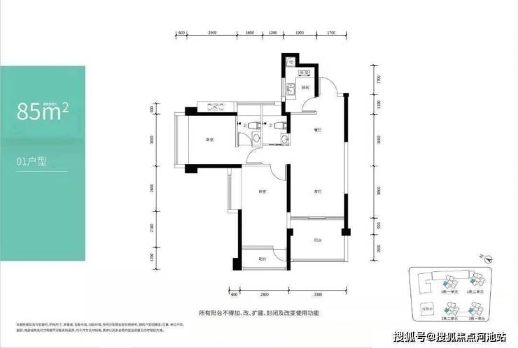
鸿荣源壹城中心户型分布平面图
户型图欣赏以及房价说明
该户型西南向
单价区间:69860.52-73560.52元/㎡
总价区间:588-625万
该户型正南向
单价区间:71650.51-76700.52元/㎡
总价区间:663-712万
该户型正南向
单价区间:69710.51-73100.52元/㎡
总价区间:652-679万
该户型西北向
单价区间:65320.51-71600.51元/㎡
总价区间:547-603万
该户型正南向
单价区间:70960.51-76000.52元/㎡
总价区间:656-705万
该户型东北向
单价区间:67160.51-70760.52元/㎡
总价区间:628-678万
关于学校:
有孩子需要上学的话,这里非常方便,东边的幼儿园和小学已经建好。

南边的初中和另外一所幼儿园正在施工!
龙华实验学校附属幼儿园
龙华实验学校小学部
龙华创新实验学校初中部效果图
该初中投资约2.3亿元
建设24班
提供1200个初中学位
地址:深圳龙华-龙华人民路-工业路-梅龙路-东环一路-建设路围合而成—鸿荣源壹城中心
【鸿荣源·壹城中心售楼处咨询/预约电话:☎️400-811-3080(中介勿扰)】
✅ 温馨提示:本项目采用预约制,过来营销中心参观样板间请记得提前拨打售楼处400热线预约,预约看房价格更优惠,感谢您的配合!
我们将安排楼盘内场销售人员全程为您接待, 给您提供贴心的看房服务体验!
注意:龙华鸿荣源壹城中心十区楼盘开发商售楼部400电话没有设置任何“分机号”,拨打前请认真识别,注意保护个人隐私!谨防上当!
免责声明🔉:
以上所发布的关于深圳龙华壹城中心楼盘相关介绍详情仅供您购房前参考,以上所有关于本楼盘的图文资料及说明请以最终项目批文及双方在楼盘营销中心现场签署的买卖最终合同为准;本图文内容如无意中侵犯到某方权益,请联系我们将会及时处理。
声明:本文由入驻焦点开放平台的作者撰写,除焦点官方账号外,观点仅代表作者本人,不代表焦点立场。
