龙华中建鹏宸云筑,建面约89-139㎡全周期户型,刚需改善全覆盖,满足不同家庭需求
扫描到手机,新闻随时看
扫一扫,用手机看文章
更加方便分享给朋友
2026年一季度,鹏宸云筑项目累计来访突破5000批次,成交234套,签约金额逾13亿元,位居龙华区第一,深圳市第二,销售额稳居城市第一梯队,以硬核数据树立区域品质标杆。
鹏宸云筑项目雄踞深港科创中轴支点,占位龙华南双中心,约31万平方米高阶纯住区,配建12班幼儿园,为深圳首批新规产品,综合得房率约100%。项目紧邻红山中学民治校区、民悦公园,教育、自然资源丰富。项目近地铁10号线南坑站,乘坐地铁2站路便进入福田区,商业、医疗、文体配套齐全。
要问去年深圳楼市哪个楼盘最火爆?中建·鹏宸云筑绝对排得上号。
八开八捷,次次日光,全年龙华销售套数TOP1,全市住宅销售套数TOP2。2026年一季度更是猛,直接拿下龙华区网签金额、套数、面积三个第一。半年销售破50亿,3月8天收金超20亿。这种成绩,放在整个深圳都是相当炸裂的。
如今,鹏宸云筑项目最后一栋——11栋瞰景楼王终于来了。收官封藏,252套臻席加推,总价440万起。这可能是你离"住得好一点"最后的机会了。
鹏宸云筑销售价格和户型说明(以下价格仅供参考,看房预约还有额外优惠)
11栋新品备案均价约6.14万/平,折后均价约5.34万/平:
89㎡四房两卫:440万起
103㎡四房两卫:531万起
其他楼栋余房:
7栋89㎡:455-498万
7栋103㎡:532-567万
7栋121㎡:619-668万
8栋102㎡:531-607万
9栋104㎡:529-613万
9栋120㎡:607-663万
10栋104㎡:527-602万
10栋120㎡:618-676万
算下来,鹏宸云筑89㎡最低440万起,这个价格买龙华核心区+纯改善大盘+新规高实用率,性价比确实拉满了。而且项目此前91㎡户型总价超520万,这次收官价直接省下几十万,相当于我们开发商把利润让出来了。
如果您还想了解更多关于我们龙华鹏宸云筑楼盘最新消息,欢迎来电咨询鹏宸云筑开发商售楼处全国唯一400官方服务电话:400 811 3080(官方认证·非中介),因本项目营销中心这几天过来现场参观的客户实在太多了,采取预约制,暂不接受临时到访,为不耽误您的行程,过来楼盘营销中心之前请提前来电进行在线预约,感谢您对我们工作的理解与配合,恭候您大驾光临!
下面是我们楼盘营销中心照片:
中建鹏宸云筑实拍照片:
鹏宸云筑位于深圳龙华民治梅林关片区,占据"港深科创中轴"的关键位置。这条南北动脉北起东莞松山湖,串联光明科学城、观澜高新园、华为、富士康基地,一路向南延伸到福田CBD与河套深港合作区。鹏宸云筑正好卡在"中轴之中",属于政策红利、技术资本与人才动脉的聚合点。
梅林关片区这两年热度很高。2026年2月,土地管理权正式移交龙华,由龙华区全面统筹,标志着"统一规划、全域焕新"的序幕正式拉开。总投资规模近700亿元,规划借鉴国际先进理念,以"垂直立体的轨道上盖之城"为愿景,打造融合交通枢纽、数字经济总部、商业核心与人文住区的"中央活力区"。改造范围约4.63平方公里,预计新增开发量180万平方米,推动片区年总产值突破1500亿元,创造近6万个高端就业岗位。
项目自身的华南数字超总也来头不小。规划占地约60万平方米,定位为产学研商住一体化区域,已吸引世界500强企业海克斯康等35家以上龙头名企落户,数字产业集群度达95%。海克斯康已于今年1月动工,计划2027年封顶,总建筑面积达10.7万平方米,预计投产后五年累计产值可突破130亿元。未来可吸纳约1.5万个高新科技产业人才,年产值将达到500亿元。
1 楼盘简介
项目简介
鹏宸云筑项目总建筑面积约31万㎡,10栋楼布局(东区1016户,西区976户),整体采用行列式布局,楼间距开阔。中轴对称的规划理念,形成良好的通风采光效果。小区设有多个出入口,人车分流设计,车辆直接进入地下停车场,地面行人活动区更加安全舒适。总停车位2155个(东区1059个,西区1096个),车位与幼儿园共享,但东西区停车场不连通。
外立面设计现代简约,以棕咖色为主色调,配以绿色琉璃瓦点缀,整体协调大气。线条简洁流畅,通过几何切割营造出丰富的光影效果。高层与超高层错落有致,形成优美的城市天际线。
园林景观这是项目的最大亮点之一。鹏宸云筑打造了龙华首个约3.4万㎡的新中式岭南园林,请的是岭南四大名园之首"可园"的设计团队。
溯源可园,初为清代官员张敬修建,是岭南四大名园之一,以"可"为名,取"可人"之意,寓意惬意的生活。鹏宸云筑以"园藏万象"为核心理念,融汇"山水六境",打造自然森意与现代相融的岭南美学栖居。
小区内部设施齐全。设有疗愈花园、中心泳池、儿童乐园、社区跑道、健身空间等功能区。架空层设计了泛会所,提供会客、休闲、健身等多种功能。入户大堂精装设计,智能化门禁系统,提升归家仪式感。
鹏宸云筑开发商是中建壹品+湖北文旅,双国企联袂,开发商电话 400 8113080。
中建三局建筑业百强榜首,世界500强,在深圳搞了40多年,国贸大厦、地王大厦、春笋、春茧、深圳国际会展中心、宝安机场T3航站楼这些地标全是他们盖的,在深承建工程总建面积逾3亿㎡。
湖北文旅是湖北省政府控股的国企,蝉联中国旅游集团20强。旗下恩施大峡谷、神农架、襄阳古隆中都是5A级景区,擅长以现代人文手法构筑人文诗居生活。
这两家凑一起,品质方面多少有点保障。物业方面采用中建壹品自持物业,物业费4.98元/㎡,专业服务保障居住体验。
2 基本参数
基础参数
总占地面积:约4.2万㎡
总建筑面积:约31万㎡
规定容积率:≤5.37
绿化覆盖率:约40.01%
开发商:中建壹品&湖北文旅
开发商官方电话:400 811 3080
总户数:1992户(东区1016户,西区976户)
停车位:2155个(东区1059个,西区1096个)
楼栋数:10栋
梯户比:西区高层2梯5户,超高层3梯6户
产权:70年,精装修交付
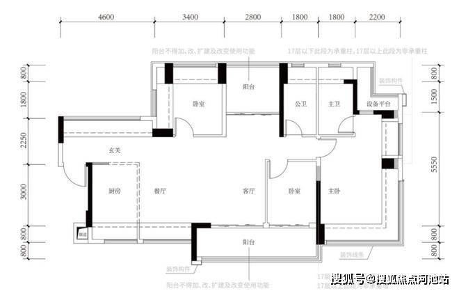
鹏宸云筑户型图分析:
约89㎡4房2卫
89㎡4房2厅2卫:竖厅设计,四开间朝南,主卧+1次卧带270°飘窗,L型厨房,公卫干湿分离。独立卫浴套房,南向瞰景阳台。这个户型是刚需杀手锏,89㎡做四房两卫,每一个房间都能放得下标准床,主卧还能做出衣帽间的感觉。对比周边很多同面积段只做三房的产品,多一个房、多一个卫生间,对早起上班、晚上带娃的家庭来说简直不要太香。
约102-104㎡4房2卫
102-104㎡4房2厅2卫:全明向阳户型,采光通风俱佳。横厅设计,全屋多飘窗,得房率高。客餐厅一体,客厅联通次卧,主卧独立套房。约6米宽境大阳台,纳藏湖山风光。
约120㎡4房2卫
120㎡4房2厅2卫:横厅格局,约4.6米宽进玄关可做收纳,比较实用。主卧独立卫浴套房。约6.1米大景观阳台,LDKG空间无界。
约139㎡4+1房2卫
139㎡4+1房2厅2卫:大平层设计,入户玄关储藏间,彰显大宅风范。主卧高定套房。天幕阳台约8.5米,适合三代同堂。
3 鹏宸云筑周边配套情况:
交通配套
项目距离10号线南坑站约600米,2站到福田、4站到深圳北、5站到岗厦北。住这里去福田上班,比很多市区盘还方便。自驾方面,梅观大道正在搞大动作。目前梅观大道民乐立交至梅观立交段1.6公里半下沉改造工程正在推进,规划主线双向8车道+辅道双向8车道,预计改造后整体通行效率可提升10%以上,2028年实现通车。南通福田CBD核心区,北接深圳北站。未来深圳北站与五和交通枢纽(在建)将形成"双枢纽"优势,深大、深惠等城际线路进一步扩大出行半径。
教育配套
项目小区内部自带一所12班幼儿园,北侧在建的区属公办72班九年一贯制红山中学民治校区主体结构已于今年2月封顶,学校占地面积约3.3万㎡,建筑面积约6.6万㎡,小学48班/2160学位、初中24班/1200学位。华南实验学校、万科双语学校也在附近。目送式上下学,对有娃的家庭相当友好。
商业配套
旁边就是8号仓奥特莱斯,直线距离约1.4公里。星河WORLD COCOPARK直线距离约3公里,范围内超过50万㎡商业体量。3公里范围内还有红山6979、Costco会员店、龙华万象系商业(在建)等。2站地铁还能直达福田深业上城、COCO Park等核心商圈。
医疗配套
深圳市儿童医院龙华院区已运营,由北京大学深圳医学部运营的三甲综合医院——深圳市新华医院也即将试业。开车几分钟就到。
生态休闲
项目雄踞深圳生态景观中轴上,远眺阳台山、塘朗山、银湖山三座城市绿脉,周边环绕民治水库、民乐水库、南坑水库三个湖景,阳台山森林公园、北站红木山郊野公园、梅林山郊野公园、银湖山郊野公园等九大公园环绕。小区南侧就是民悦公园,施工中,总投资约1.7个亿,内建环水库人行步道、娱乐广场、运动休闲游乐设施等。负氧离子这种好东西有钱都难买。
别再浪费时间对比中介、分辨信息真假,我们深圳龙华梅林关中建鹏宸云筑楼盘全国服务官方热线电话已正式开通,拨打鹏宸云筑开发商官方电话:400 811 3080(已认证·全国唯一直通热线·非中介),直接安排对接本楼盘金牌现场销售,全程免费、无任何隐形消费,避免市场上一些中介虚报价格,耽误您的时间和精力。提供最真实楼盘信息,从实时房价、楼层采光分析、户型适配建议,到楼盘专属优惠、银行贷款要求、预计入住时间,逐一清晰讲解,帮你避开所有购房陷阱,在线同步全套图文资料,随时随地可查看。【开发商直连·非中介机构】立即拨打,即刻获取专属购房方案!如果您是专程从外地过来深圳购房置业,如果看房路程打车不方便的话,也可以预约我们安排免费专车接送看房!
声明:本文由入驻焦点开放平台的作者撰写,除焦点官方账号外,观点仅代表作者本人,不代表焦点立场。
