【后海玺家园】第二批入市,专梯专户-小高层,首推197-237大平层.仅42套!
扫描到手机,新闻随时看
扫一扫,用手机看文章
更加方便分享给朋友
作为扛着“玺”系金字招牌的光环:前有 “5000 万蹲” 的深圳双玺打响名号,后有 “2024 交付天花板” 招商玺,如今第三座玺系落子后海,直接锁定顶豪赛道。
后海招商玺项目共规划 4 栋住宅 + 1 栋幼儿园,合计261套,首推 1 栋约 197-235㎡四房大平层住宅,起步就是改善终局户型,据说这次通过极致挖掘,确保赠送率、阳台率最大化,整体使用率达93%,装标升级到10000元/㎡。
【后海招商玺开发商售楼处咨询/预约热线 400-880-7297,官方发布】
温馨提示:因近期参观的购房者较多,所以本楼盘采取预约制,过来营销中心现场参观样板间请记得提前拨打开发商售楼处400热线电话在线预约,预约看房价格更优惠,感谢您的配合!
项目规划示意图
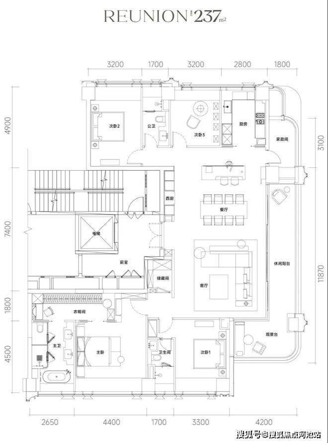
后海招商玺户型图欣赏
项目基础信息
后海招商玺位于南山区招商街道后海大道以西、工业七路以北。
用地面积为约3.3万㎡,开发建设用地面积约1.5万㎡平方米,建筑面积约9.88万㎡,容积率为6.5,其中住宅约8.8万㎡,商业2100㎡,公共配套设施约8205㎡。
小区共261套可售住宅,具体面积段为188-197-237-246㎡大平层。
楼栋全向东布局,高区 270° 环幕视野直扑深圳湾海景,无任何遮挡、
今年后海招商玺首开1栋高层住宅,197-235㎡四房大平层,属于通透板楼设计,视野无遮挡。这次设计采用“浮岛甲板”设计策略,四栋住宅落于甲板之上,独享甲板庭院花园。进而形成超级社区底盘 + 浮岛绿化甲板的垂直共生人居标杆。
建筑风格:以“海风百褶”为设计理念,双反弧形的立面元素在各处形成丰富变化的海浪状立面肌理,呼应滨海风情。
「后海招商玺」车行大门做了殿堂级落客区,设有天幕和水景,非常具备归家仪式感。
每栋设有独立入户大堂,风格与大门相呼应。
小区同样是新晋豪宅的配方,通过抬高与城市界面做了区隔,整体豪宅的这种私密性就出来了。花园采用立体园林设计,利用架空层打造会所功能空间,这里不是简单的空间叠加,而是一场关于“如何生活”的持续迭代。
项目利用裙房屋顶打造拥有“仪式水轴“艺术庭院”“空中浮岛森林”三级景观设计的空中庭院,四栋住宅均漂浮于甲板之上,独享甲板庭院花园,以“海风吹拂下的豪宅底盘”托举城市上空的豪宅群落,形成立体景观系统。
交通:项目位于2号线海月站和湾厦站之间,直线距离约500m左右,2站抵达后海站,可换乘11号/13号地铁线,2站直达福田、前海。距离12号线四海站直线距离1.2Km。
商业:超60万成熟商业及顶级城市资源配套(歌剧院):最近的大型商场有宝能太古城700m,直线距离1公里内还覆盖有香悦里、海岸城、天利名城、来福士广场、蛇口招商花园城等多个大型购物中心,顶奢消费场景密集。
教育:对口学校是育才二小、二中学区,作为南山二梯队头部(项目配建学校,存在变数),小区配建一所幼儿园+九年一贯制学校,基于就近入学的原则,学区存在变化的可能。
温馨提醒:我们楼盘开发商售楼处400电话没有设置任何所谓的“分机号”,拨打前请仔细甄别,注意保护个人隐私!谨防上当!
免责声明:
以上所发布的关于深圳后海招商玺楼盘相关介绍详情仅供您购房前参考,以上所有关于本楼盘的图文资料及说明请以最终项目批文及双方在楼盘营销中心现场签署的买卖最终合同为准;本图文内容如无意中侵犯到某方权益,请联系我们将会及时处理。
声明:本文由入驻焦点开放平台的作者撰写,除焦点官方账号外,观点仅代表作者本人,不代表焦点立场。
