好消息【鸿荣源·珈誉玖玺】今天取证,3月7日 实景样板房盛大开放 ,3月14日 正式开盘
扫描到手机,新闻随时看
扫一扫,用手机看文章
更加方便分享给朋友
最新消息:【鸿荣源·珈誉玖玺】加推11栋,定于2026年3月7日开盘选房!
新加推11栋折后价(仅供参考,看房预约更便宜!)
01户型,总价420-438万,单价4.45-4.64万
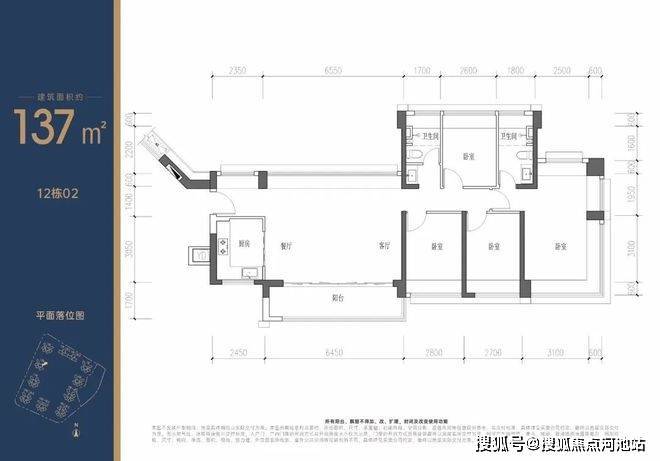
02户型,总价363-379万,单价4.33-4.52万
03户型,总价403-420万,单价4.47-4.66万
05户型,总价367-383万,单价4.37-4.56万
06户型,总价365-381万,单价4.35-4.54万
07户型,总价361-376万,单价4.29-4.48万
08户型,总价359-379万,单价4.27-4.46万
11栋位置示意图
珈誉玖玺作为珈誉府大盘仅剩的一个的纯住宅地块,不仅延续了珈誉府一贯的高品质,更在户型设计、景观视野等方面进行了全面升级,是最后一张“王炸”,“炸”出了郎咸平亲自带队来扫货。
如需了解本楼盘更多详情,欢迎来电咨询深圳鸿荣源珈誉玖玺楼盘开发商售楼处免费400咨询/预约电话:400-880-7297(官方发布)中介或自媒体请勿扰,因近期参观的人员太多,本项目营销中心暂不接受临时到访,为不耽误您的行程,过来楼盘现场参观样板房请务必记得提前来电预约,预约看房的话最终房价还能更加优惠,最终价格包您满意!
下面是我们楼盘营销中心实拍照片:
鸿荣源·珈誉玖玺项目位于深圳宝安大道与凤塘大道交汇处,总建面约40.53万㎡,规划有10栋31-48层的高层、超高层住宅,总户数2479户。户型包括约75-97㎡的3房、约110-199㎡的4房等类型。
珈誉玖玺大户型豪宅产品的诞生,标志着深圳西部豪宅市场从2.0正式迈入了3.0时代。
珈誉玖玺项目同样也是鸿荣源在深圳西部打造的天花板级别豪宅产品,继承“玖”系产品的所有特点——最中心的地段、最全面的配套、最优质的产品。
若是用两个词来形容珈誉玖玺,就是“全能”与“便捷”,因为真正实现了下楼即地铁、下楼即商业、下楼即高配的场景需求。
商业配套
项目综合体配有50万㎡「湾区壹方」商业购物中心,将沿用「前海壹方城」的运营团队,保障高端的招商和丰富的业态。
个50万㎡的「湾区壹方」和「潮奢奥莱」OUTLETS商业,将是西部再一个巨型壹方系商业升级版,汇聚OUTLETS常见名牌,比宝中36万㎡的「前海壹方城」更巨大更丰富。
除此之外北面还有西部第一间「山姆会员店」和「海岸城」商业,基本上5公里范围内满足所有休闲娱乐购物需求,其中「海岸城」于2024年7月13日已正式开业。
另外还有一路之隔的「华强广场」也在2024年9月26日开业,未来这边的商业配套体量巨大。
教育配套
学校方面,「珈誉玖玺」周边从幼儿园高中都配齐。
在九年义务教育方面,「珈誉玖玺」位于凤塘大道南侧,未来应该是上住宅小区西南边规划的深圳外国语宝安南校区小学。由于目前尚未建设,短期内应该仍要到「珈誉府」那边的深外南校区借址上学。
交通配套
公共交通方面,「珈誉玖玺」位于综合体南侧,临近11号快线塘尾地铁站。
11号快线是深圳贯通东西的重要线路,沿途的站点都是深圳的各大核心区,6站到宝中,7站到前海,9站到深圳湾,11站到福田。
另外距离穗深城际轻轨福海西站也不远,穿梭大湾区广州-东莞-深圳机场非常便捷,穗深城际二期会延长到宝安、前海、深超总和皇岗新口岸。在前海、南山、福田工作通勤便捷,哪怕在东莞滨海湾上班通勤也不显麻烦。
自驾方面,临近凤塘大道和沙井中心路,能够便捷接驳G107、广深高速和沿江高速几条重要主干道。
人文环境
项目周边还拥有不少人文配套和自然资源,如「新桥市民广场」、「万丰湿地公园」和「立新湖公园」。
如今「珈誉玖玺」再度加推10栋二单元和12栋约75-97㎡三房,于2026年2月20日取证,3月1日开盘。
鸿荣源·珈誉玖玺户型图欣赏:
看完以上关于深圳宝安沙井鸿荣源·珈誉玖玺楼盘最新相关的图文介绍,如果您对我们楼盘感兴趣的话,建议您可以联系我们鸿荣源·珈誉玖玺开发商售楼处电话:400-880-7297 进行免费咨询或对接楼盘现场销售人员(中介勿扰),我们可以为您安排本楼盘现场销售一对一在线服务,比如把楼盘的最新图文资料、样板间视频、通过微信发给您看、您不需要过来楼盘现场就能够熟悉个大概,还可以告诉您关于深圳鸿荣源·珈誉玖玺楼盘的优点缺点、楼盘近期优惠政策、银行贷款政策以及LPR利率、积分入学,等问题都给你讲解的明明白白,让您买房不踩坑,毕竟买房是大事。找现场销售咨询并不需要额外花钱,反而更省钱,而且可以避免中介虚报价格浪费你的时间和精力,我们会把额外认购优惠、按时签约优惠、贷款政策优惠、一次性付款的优惠告诉您,希望您能通过这个网络平台,全面了解我们的楼盘信息并顺利完成购房流程。
声明:本文由入驻焦点开放平台的作者撰写,除焦点官方账号外,观点仅代表作者本人,不代表焦点立场。
