满京华金硕和府-整个深圳近百万规模的项目屈指可数,金硕和府居标杆大城内核,纵享“繁华”与“宁静”
扫描到手机,新闻随时看
扫一扫,用手机看文章
更加方便分享给朋友
深圳光明【满京华·金硕和府】
最新消息:2024年8月9日下午,满京华金硕和府取证了!将于当天晚上19点半签到,20点开始开盘选房!本次开盘优惠也非常喜人。(本项目地址位于光明中心区内,距6号线光明站D出口步行约850米。)
如需了解更多详情,欢迎咨询光明满京华楼盘开发商官方售楼处咨询/预约电话:400-880-7297(已认证)中介请勿扰,过来我们营销中心看房务必记得提前来电预约,预约看房的话最终的价格还能更加优惠。
航拍实景图欣赏
开盘折扣(预约看房价格还可以更优惠)
3房折扣:总价-8888*91折
4房折扣:总价-8888*93折
金硕和府是深圳第一个采用新规设计的住宅!飘窗宽度0.8米,据说全部可改造,不含赠送得房率达79.6%,比一期金硕华府提高了近5个百分点,含赠送使用率最高近100%。
金硕和府本次推出2栋,186套房源,面积段为85-113平3-4房,2026年底精装交付。备案均价4.7万,总价376-568万(折前)。
项目基础信息
【开发商】:深圳市满京华置业投资有限公司
【地址】:深圳·光明中心·光辉大道与狮山三街交汇处·6号线光明站D出口约800m
【总占地面积】:约11万㎡
【总建筑面积】:约88万㎡
【金硕和府占地面积】:约0.88万㎡
【金硕和府建筑面积】:约7.48万㎡
【金硕和府总套数】:458户
【产品户型】:建筑面积约85-88m²三房两卫、建筑面积约110-114m²四房两卫、建筑面积约113-119㎡四房两卫
【开发商电话】4008807297(已认证)
【交付标准】:全装修
【梯户比】:1栋49F 3T6户、2栋33F 2T/6户
【车位比】:1:1.10(505个)
【容积率】:5.74
【物业费】:4.3元/㎡/月
【产权年限】:70年
【批地时间】:2023年4月
【交楼时间】:2026年底
金硕和府此次发售建面约85-113㎡三至四房。
建面约85㎡三房两厅两卫
户型西南、东南朝向,竖厅设计。S墙设计预留冰箱卡槽,0.8米的可改造飘窗设计,尤其是主卧和书房的双飘窗设计,赠送拉满。
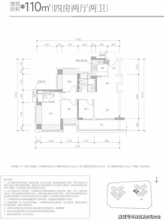
建面约110㎡四房两厅两卫
户型西南、东南朝向,竖厅设计。S墙设计预留冰箱卡槽,客厅3.8米开间,6.2米大阳台。110多平的面积,四个房间改造前的宽度分别达到了3米、2.55米、2.4米和2.4米,都能做到比较舒适的尺寸。
建面约113㎡四房两厅两卫
户型西北、东北朝向,竖厅设计,客厅4米开间。不足是只有一个4米开间的阳台,朝向不太好。优点是可以看科学公园,深圳国际美术馆,景观视野比较好。
金硕和府户型相比于一期金硕华府,主要区别在于,飘窗宽度做到0.8米,主卧和书房的飘窗由一个增加到两个,再加上采用新规面积计算方式,整体使用率近一步提高。
—金硕和府测评—
项目优势
1、位于光明中心区的科学公园,享有光明区最好的文体配套。
2、人群比较纯粹,没有保障房、回迁房,是纯商品房小区。
3、超高使用率,最高达99%(含赠送)。
4、名校环伺,项目配建3所幼儿园,周边分布有多所学校,包括有华师大附属星河小学、深实验光明学校、深圳小学等多所市属名校分校。
5、可换乘13号线,直达南山科技园、后海,适合南山90后年轻家庭置业。
项目周边配套:
教育资源
周边也分布有多所学校(具体学区范围以官方公布为准),包括有华师大附属星河小学,2024年录取积分:第八类27.7分;
深实验光明学校,2024年录取积分:第一类118分;
深圳小学光明曙光学校,2024年录取积分:第二类97.75分。
深实验光明学校/图源网络
交通资源
周边分布有地铁6号线的光明、科学公园站,距离约1公里左右,两站可换乘13号线,规划有另一条直达南山科技园的29号线,轨道交通便利。
文娱休闲
家门口有科学公园,占地面积约为208万㎡,公园内规划有科学岛、深圳国际美术馆、科技馆新馆、西方美术馆等,紧邻科技创新文化集群。
临近狮山公园、约9.4万㎡的东周文化公园,约10万㎡的开明公园,约56万㎡的新城公园等丰富绿色生态资源。
科学公园效果图/图源网络
商业资源
项目自带商业综合体外,1公里左右还有在建的星河cocopark,以及3公里处还有目前光明最繁华的凤凰城蓝鲸世界,万达广场等大型商业。
凤凰城蓝鲸世界/图源网络
地块剖面示意
05-03、05-05地块效果图
05-03、05-05地块效果图
项目解析:
满京华项目沿光辉大道从西到东设计范围涵盖10块用地,总用地面积约109398㎡。其中项目用地7块,返还用地1块,公共绿化用地2块。
建筑高度设计
整个工程进度最快的为05-05地块「楼村商业大厦」和05-10地块「金硕华府」。
东西轴带

满京华项目选取了位于光明中心区规划红线范围内的楼村狮山工业区作为试点,周边紧邻科技创新文化集群,如科学岛、科技馆新馆、西方美术馆等,是光明科学环廊核心地带之一。
狮山利益统筹规划图
05-03、05-05地块总建筑面积约222623㎡,集具有国际、艺术、现代风格的高端住宅、办公、商业、配套等。
其中主要包括1栋约180m超高层办公写字楼,3栋超高层住宅(住宅最高约150m)及其商业配套。
其中住宅05-03地块较为狭长,3栋塔楼一字排开获取最佳景观效果,05-05地块办公塔楼建筑立面采用框架式幕墙,竖明横隐,高区塔楼层级叠退,强调建筑形象的向上拔升感,竖向线条加玻璃幕墙,虚实结合,视觉效果轻盈简洁。
办公塔楼地标冠以“光明之灯”为主题,与科学馆、西方美术馆形成立体三角关系。
项目区位:
光明中心法定规划图
狮山利益统筹项目
看完以上光明满京华金硕华府楼盘相关的图文内容,如果您对我们楼盘感兴趣的话,建议您可以联系我们满京华光明项目开发商售楼处电话:400-880-7297 (已认证)进行免费咨询或对接楼盘现场销售人员(中介勿扰),我们可以为您安排本楼盘现场销售一对一在线服务,比如把楼盘的最新图文资料、样板间视频、通过微信发给您看、您不需要过来楼盘现场就能够熟悉个大概,还可以告诉您关于深圳“光明金硕和府”楼盘的优点缺点、楼盘近期优惠政策、银行政策以及LPR利率、积分入学,等相关购房方面的问题都给你讲解的明明白白,让您买房不踩坑,毕竟买房是大事。找现场销售咨询并不需要额外花钱,反而更省钱,而且可以避免中介虚报价格浪费你的时间和精力,我们会把额外认购优惠、按时签约优惠、贷款政策优惠、一次性付款的优惠告诉您,希望您能通过这个网络平台,全面了解我们的楼盘信息并顺利完成购房流程。
免责声明:以上展示的光明新湖街道楼村项目满京华楼盘最新图文资料可能有部分来自于网络,一切信息以最终在现场签署的购房合同为准,如图文内容无意中侵犯某方权益的话,请及时联系我们将配合处理。
声明:本文由入驻焦点开放平台的作者撰写,除焦点官方账号外,观点仅代表作者本人,不代表焦点立场。
