河东骏濠园,深圳宝安前海内环,小面积住宅,低总价现楼,45-63-87㎡的2-3房!
扫描到手机,新闻随时看
扫一扫,用手机看文章
更加方便分享给朋友
最新消息:河东骏濠园,单价低至5万起,总价220万起,45㎡1-2房,毛坯现房!
河东骏濠园项目位于深圳宝安西乡,小区附近配套非常完善,地铁12号线流塘站/15号线西乡公园站,宝安西乡流塘小学/文汇学校/西乡中学,步行到万达广场/西乡公园!
在售户型:
住宅:均价4.9万-6.1万(预约看房更优惠)
43~45平 一房一厅(可改二房)单价总价约220-275万,楼层可选;
64平 二房一厅总价360-390,3套
如需了解本楼盘更多详情,欢迎来电咨询深圳宝安河东骏濠园开发商售楼处免费400咨询/预约电话:400-800-9113(已认证)中介请勿扰,因近期参观的人员太多,本项目营销中心暂不接受临时到访,为不耽误您的行程,过来楼盘现场参观样板房请务必记得提前来电预约,预约看房的话最终房价还能更加优惠,最终价格包您满意!
下面是我们楼盘营销中心现场实拍照片:
河东骏濠园这个楼盘究竟值不值得买?
项目概况
河东骏濠园位于深圳宝安西乡,靠近宝中、南山前海,是一个集住宅、公寓、办公、商业于一体的综合体项目。项目推出的户型为45-63-87㎡的2-3房现房
【项目基本信息】
地址:深圳宝安西乡广深路106号
总建面:约16万㎡
容积率:3
车位数:106
总层高:15-30层
开发商电话:400 800 9113
楼栋类型:超高层
户型区间:45-87㎡
开发商:深圳市河东股份合作公司
项目介绍
河东骏濠园位于深圳宝安,靠近宝中、南山前海,前海作为粤港澳大湾区全面深化改革创新试验平台和高水平对外开放门户枢纽,目前已吸引超300家世界500强投资设立企业,累计注册港企数量超1.1万家,注册资本超1.2万亿元。目前已汇聚金融、现代物流、信息服务、科技等产业,众多高端人才聚集。
前海合作区已由14.92平方公里扩展至120.56平方公里,超2/3面积集中于宝安,将进一步带动宝安发展驶入快车道。河东骏濠国际拥享前海发展辐射,共享优质生活配套。
项目租金分析
项目周边拥有丰富生活配套,交通网络发达,出行便利,同时随着未来15号线的开通,高端人才租住需求外溢,可以预见本片区的居住需求将直线提升。
目前距离本项目约700m的45㎡产品的月租金可达5000元,如果有考虑买来收租的可以研究研究
河东骏濠园周边配套情况:
交通配套:项目直线距离12号线流塘站约700米,接驳地铁1号线、5号线,可轻松抵达南山等区域。未来还有地铁15号线(规划中)西乡公园站,进一步提升交通便捷性。
商业配套:项目自带约1.9万㎡集中商业,周边还有港隆城、仟悦城、天虹、万达广场等大型商场,满足日常购物需求。此外,约3公里范围内汇聚大仟里、大悦城(在建中)、中洲πMALL、海雅缤纷城、壹方城等大型商业集群,都市繁华尽在掌握。
生活配套:周边大型公园、文化艺术中心等一应俱全,如西乡公园、流塘公园、宝安公园等,为居民提供丰富的休闲娱乐场所。同时,项目周边还有宝安体育中心、欢乐港湾等人文艺术设施,满足居民多样化的生活需求。
项目规划
河东社区作为大型社区,分为南北两大区域,打造河东百万大城,其南区规划107发展带城市更新单元,总建筑面积达235万㎡,集办公、商业、酒店、公园等多元业态,带动人流聚集。
周边还有地铁15号线(规划中)作为深圳首条环线轨道,起终点均为前海站,作为战略上的“产业线”,极速串联前海、宝中、大铲湾“腾讯科技岛(在建中)”、南山科技园、后海总部基地、留仙洞总部基地等高端产业密集区,推动资金流、人才流、技术流汇聚,构筑“前海内环”经济大动脉。
建面约44-63-87㎡住宅,户型方正、带阳台、通燃气,首付30万起,抢占核心地段。
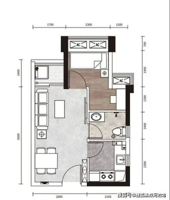
河东骏濠园户型图欣赏:
【45㎡一房两厅】
64㎡的2房2厅1卫,设计的竖厅格局,进门玄关,客厅3.3米开间,客餐厅一体化,L型厨房,卫生间干湿分离,得房率约73%(包含赠送),仅有几套可售。此户型集中在1B栋,这一栋里面有很多是回迁房,所以可售的不多。
看完以上图文介绍,您如果想要了解更多关于我们深圳宝安西乡河东骏濠园楼盘最新消息、当前剩余房源、这几天楼盘现场折扣优惠活动、近期周边房价走势、银行相关利率政策等情况的话,欢迎来电咨询河东骏濠园开发商售楼处免费400咨询/预约热线电话:400-800-9113(已认证)中介勿扰。
温馨提示:因本项目营销中心参观样板间采取预约制,为不耽误您的行程,过来营销中心现场看房前请务必记得提前来电预约,预约看房的话享受的优惠折扣比直接上门更多,最终成交价格也会更加划算,在此真诚感谢您对我们工作的支持和信赖,恭候您大驾光临。
免责声明:以上展示的关于深圳宝安河东骏濠园楼盘最新相关的最新图文资料可能部分来自网络,具体细节以最终签署的购房合同为准,如无意存在侵犯某方权益请及时联系我们处理。
声明:本文由入驻焦点开放平台的作者撰写,除焦点官方账号外,观点仅代表作者本人,不代表焦点立场。
