华侨城新玺·名苑网站丨华侨城新玺·名苑欢迎您丨丹华侨城新玺·名苑图文楼盘
扫描到手机,新闻随时看
扫一扫,用手机看文章
更加方便分享给朋友
作为雄踞蛇口之滨的超一线滨海标杆综合体,华侨城新玺项目携手德国gmp建筑师事务所、英国MSP景观设计、中国台湾真工(程绍正韬)室内设计等国际顶尖设计师团队打造而成,从望向未来、望向海洋的超越与突破中浴海而出,拥有270°一线无遮挡海景,户户赏海,尽揽湾区风光,抢占璀璨的蛇口天际线,重序湾区豪宅的传奇名片。
【华侨城新玺开发商售楼部400免费咨询/预约电话📞: 400-811-3080,中介勿扰】
温馨提示:过来营销中心参观样板间请记得提前拨打售楼处400热线预约,感谢您的配合!

华侨城新玺项目位于南山区蛇口街道南端,东南海玫瑰园三期,南面临深圳湾;与香港元朗隔海相望,连接香港的西部通道跨海大桥落脚于蛇口东角头。距离南山后海约4公里,与海上世界项目隔“小湾区”相望,与南海玫瑰三期和半岛城邦为邻。
项目基础信息
【开 发 商】深圳华侨城新玺发展有限公司
【产权年限】40年
【一期总套数】226
【交付标准】预计带装修发售
【开发商电话】4008113080
【交楼时间】2023年底
【在售户型】约220㎡—480㎡商务公寓
【层高】3.6m
【车位】660
【绿化率】30.03%
在早期的效果图里有一个桥
连接到海上世界那边,不过如果这座桥真的建成...
这个内湾里的渔船就无法自由出入
小编原来想会不会这些渔船被迁走,但是深圳还有哪里可以供它们他们容身呢?
走遍整个深圳海岸线,也只有蛇口还有仅存的这个渔港了,留下它才能让蛇口的内涵得以保留!
所以新的效果图中这座桥取消了...
项目有四层高的裙楼
内部有丰富的商业
1栋位于最前排,纯公寓,可以看到有阳台
3栋位于后面一点,底层办公、上层公寓,目前已经装幕墙的部分(办公)没有阳台!
“新玺”周边全部都是住宅区,跟后海总部基地纯商业建筑的氛围是完全不同的,作为深圳最顶级的公寓,却能融入在蛇口这样一个滨海风情的居住区,这是“新玺”很大的卖点!
据传“新玺”公寓的主要面积是230-480㎡,大面积配上必然的高单价,总价可能要4000万往上走...
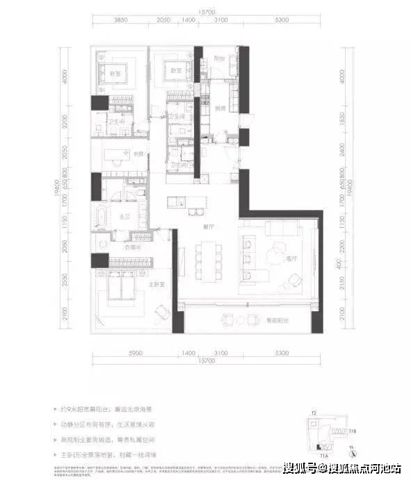
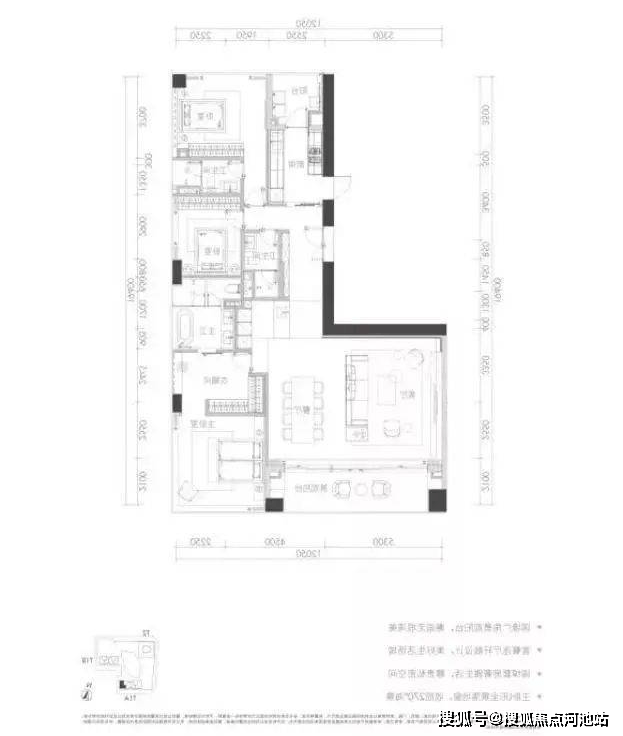
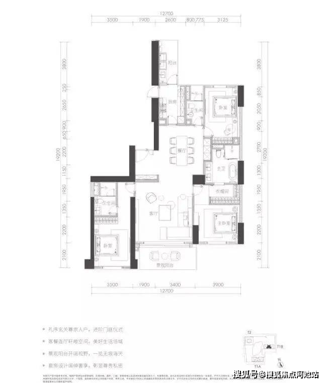
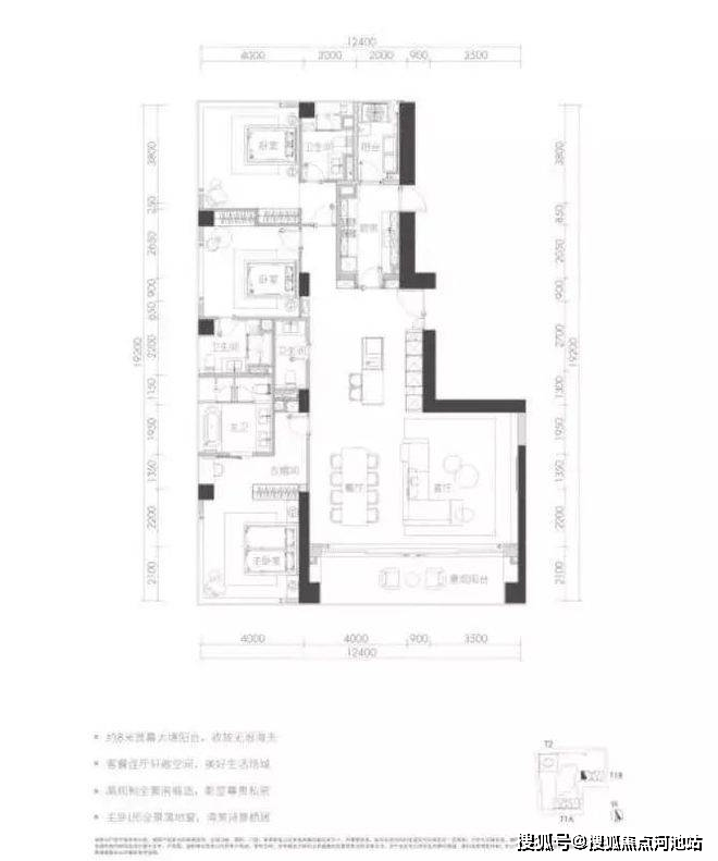
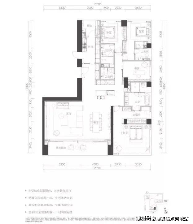
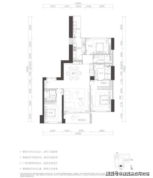
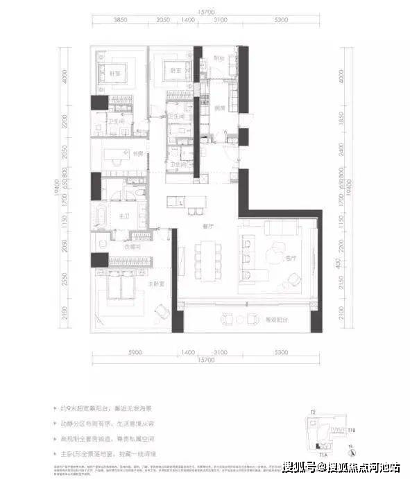
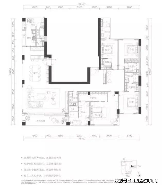
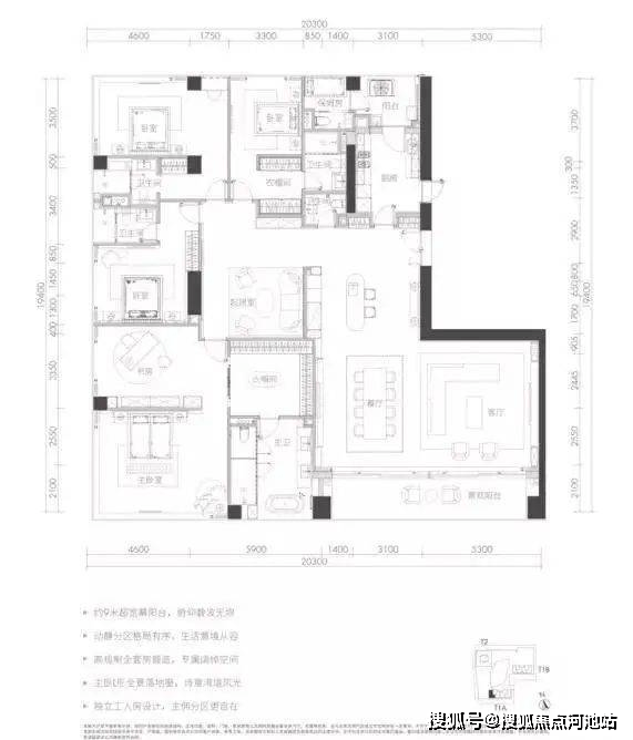
华侨城新玺户型赏析:
项目将推出的商务公寓均为大户型,有230㎡、260㎡、280㎡、350㎡、400㎡、480㎡等多种,为3-4房。










【华侨城新玺新玺开发商售楼处咨询/预约电话☎️ 400-811-3080(中介勿扰)】
✅ 本项目暂不接受临时到访,过来参观样板房请记得提前来电预约!预约看房价格更优惠!
✅ 为您安排楼盘现场销售全程接待并讲解,给您更贴心的看房体验!
温馨提醒:我们华侨城新玺名苑楼盘售楼部400电话没有设置任何所谓的“分机号”,拨打前请仔细甄别,注意保护个人隐私!谨防上当!
【免责声明】
1、本文部分信息和图片来源其开发商推广内容,对项目周围交通、商业、文化教育、医疗以及其他市政条件的介绍,具体以政府规划及现场实际为准。
2、效果图是规划意向的概念设计展示,非最终规划方案,不作为开发商承诺,最终以向政府报批报建的方案为准。
3、本文所述内容和意见仅供参考,不构成市场交易依据和投资建议,买卖双方权利义务以双方签署的买卖合同为准。
声明:本文由入驻焦点开放平台的作者撰写,除焦点官方账号外,观点仅代表作者本人,不代表焦点立场。
