寰侨观邸售楼处:楼盘介绍、在售户型、最新价格、配套讲解
扫描到手机,新闻随时看
扫一扫,用手机看文章
更加方便分享给朋友


如需了解本楼盘更多详情,欢迎来电咨询深圳南山寰侨观邸开发商售楼处免费400咨询/预约电话:400-800-9113(已认证)中介请勿扰,因近期参观的人员太多,本项目营销中心暂不接受临时到访,为不耽误您的行程,过来楼盘现场参观样板房请务必记得提前来电预约,预约看房的话最终房价还能更加优惠,最终价格包您满意!
【项目基础指标】
建筑面积:约7.8万㎡
总楼层:地上33层,地下3层
楼层分布:23-29层
层高:约3.9m
居住电梯:3梯4户
停车位:约426个,其中76个专属停车位,车位比超2:1
开发商电话:400 800 9113
停车月卡:500元/月
物管服务:仲量联行物管顾问+寰侨物业
管理费:12元
产权年限:50年,2019年-2069年
水电:民用水电通燃气
玻璃幕墙:三层双银超白LOW-E中空夹胶玻璃
项目地址:中国•深圳•华侨城 深云西路二路与深云四路交汇处
【寰侨观邸核心价值】
价值一:深圳名片•华侨城——深圳第一富人区
城市中央、生态资源丰富;
汇聚文化艺术、旅游度假、五星级酒店、国际学校、高端商业等配套应有尽有;
快捷交通路网,北环大道/南坪快速/侨香路/京港澳高速,20-30分钟到福田CBD、深圳北站、皇岗/福田/深圳湾三大口岸、宝安机场等,城芯而居,超享生活。
豪宅云集,10-18万/平阶级阶层,层峯领袖汇居于此。

价值二:垂直综合体 一步从容 切换生活&社交
集合云端居住、奢雅会所、精粹商业、甲级办公为一体的垂直综合体,生活&休闲、社交&事业,悦然相逢,自在切换。
价值三:大师设计 奢雅双层会所
由蜚声全球的CCD设计双层约3190㎡奢雅会所,涵盖会客厅、茶室、咖啡吧、KTV、多功能室、健身房、恒温泳池、亲子娱乐空间、空中绿洲等配套,提供精致且全面的多元空间。

咖啡厅 轻酒吧

茶室

室内恒温泳池

特大豪华KTV

亲子娱乐空间

桌球室

价值四:五重尊贵体验 遇见生活的美好
秉持匠心,打造五重尊贵体验,定制领袖专属生活仪式,举止所至,皆得不凡享受
1⃣星级门庭广场——匠心打造精美前庭景观广场,尽显尊贵礼遇

2⃣超凡尺度大堂——CCD亲笔操刀,约8米挑高350㎡艺术大堂,致敬不凡气度

3⃣全方位守护品质生活——专属停车区/独立大堂/电梯均设多重门禁系统,提供安心无忧的居住体验
3梯4户 全进口日立品牌 6米/秒高速电梯

4⃣专属停车区——总计426席车位,76席专属停车位,户均超2个停车位,尊贵专属停车体验

5⃣寰侨物业&仲量联行物业顾问——细致入微的管家式服务,24小时贴心守候,尽享从容与尊崇的生活礼遇。
价值五:云端精筑 每一户 皆杰作
270°天际环幕景观 山海城一线宽景

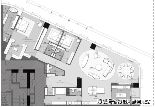
荟萃CCD、柏朗国际两大设计团队联袂匠造,以国际化视野,精研侨城湾芯云端新作,仅28席,位于建筑23-29层,全高区景观视野,建面约323-446㎡,纯粹大户云端居所。4款室内设计风格独特,尺度阔绰,兼顾细致实用,畅享舒适空间。


A户型
约396㎡3+1房2厅2厨5卫

lLSD亲笔操刀
l270°城市景观
l全套房、双主卧设计
l约9.9米超宽客餐厅开间
l方正主卧面积高达24㎡,明卫设计
l次卧带阳台
l中西厨结合
l3+1房,多功能房,灵活多变
B户型
约439㎡3+1房2厅2厨5卫

lLSD亲笔操刀
l270°城市+绿化景观,高区看海
l全套房、双主卧设计
l超10米特宽客餐厅开间
l方正主卧面积高达24㎡,明卫设计
l次卧带阳台
l独立中西厨
l3+1房,多功能房,灵活多变
C户型
约323㎡3+1房2厅2厨4卫

lCCD亲笔操刀,轻奢艺术主义
l殿堂级入户体验
l270°塘朗山景观,超10米特宽客餐厅开间
l全套房设计,主卧国际化视野设计,别具一格
l动静分区格局井然
l明卫设计、步入式衣帽间
l独立中西厨
l独立工人房设计,主仆分行
D户型
约446㎡4+1房2厅2厨5卫

CCD亲笔操刀
l4+1房结构,全套房设计,双龙抱珠
l生态造景入户体验
l超10米特宽客大厅开间
l超大主卧空间,面积高达26㎡,双衣帽间,前卫国际化卫生间设计,明卫空间,尽享奢阔生活;
lL行西厨设计,前卫设计,尽享奢豪品质
l独立工人房设计,主仆分行

看完以上图文介绍,您如果想要了解更多关于我们深圳南山寰侨观邸楼盘最新消息、当前剩余房源、这几天楼盘现场折扣优惠活动、近期周边房价走势、银行相关利率政策等情况的话,欢迎来电咨询寰侨观邸开发商售楼处免费400咨询/预约热线电话:400-800-9113(已认证)中介勿扰。
温馨提示:因本项目营销中心参观样板间采取预约制,为不耽误您的行程,过来营销中心现场看房前请务必记得提前来电预约,预约看房的话享受的优惠折扣比直接上门更多,最终成交价格也会更加划算,在此真诚感谢您对我们工作的支持和信赖,恭候您大驾光临。
免责声明:以上展示的关于深圳寰侨观邸楼盘最新相关的最新图文资料可能部分来自网络,具体细节以最终签署的购房合同为准,如无意存在侵犯某方权益请及时联系我们处理。
声明:本文由入驻焦点开放平台的作者撰写,除焦点官方账号外,观点仅代表作者本人,不代表焦点立场。
