中粮悦章凤凰里值得买吗,立新湖旁生态住区,央企开发实景呈现,自住与长期持有价值清晰
扫描到手机,新闻随时看
扫一扫,用手机看文章
更加方便分享给朋友
深圳宝安【中粮悦章凤凰里】
最新消息:时隔8年的深圳西部地铁11号线桥头站地铁口旁的中粮悦章凤凰里楼盘二期已经正式开放样板间和营销中心,本次开盘推出的是84-128㎡的三房至四房,总货量758套,如需了解更多详情欢迎咨询中粮悦章凤凰里开发商售楼处电话:400-811-3080,中介请勿扰。
中粮·悦章凤凰里,项目位于大洋路和塘新路交汇,占地3.26万㎡,总建面21.2万㎡,共规划有7栋住宅,4栋商品房、3栋保障房,33-34层。总户数1426户,其中可售商品房758套、保障房668套,车位1564个,容积率4.98。自带一所12班幼儿园和一所36班九年制学校及公交首末站3200㎡。

【项目基础信息】
项目总占地:约3.3万㎡
项目总建面:约21.2万㎡
容积率:4.62
社区规模:由7栋塔楼围合而成,加一栋幼儿园
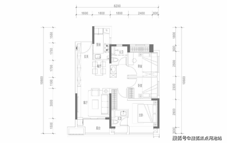
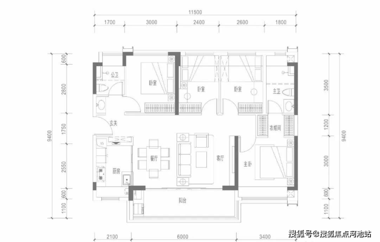
住宅户型:建面约84-128㎡三至四房,住宅使用率约78%
开发商电话:4008113080
产权年限:70年
车位:1654个
总户数:1426户
交楼时间:2025年3月
交楼标准:毛坯
项目地址:深圳·福永·11号线桥头站旁。

交通配套:项目临近11号线桥头站地铁口距离700米左右;“两横四纵“立体交通网络,宝安大道、沿江高速、107国道等城市主干道,快速串联全城;

教育配套:楼下有自带幼儿园和一所九年制的公里学校,学区带的是塘尾万里学校,福桥小学,桥头学校;

商业配套:项目自带1.2万㎡的商业,能满足基本的生活需求,一站抵达30万㎡奥特莱斯、两站抵达18万㎡海岸城购物中心,以及鸿荣源的50万㎡商业;
生活配套:距离立新湖公园直线距离约400米,水域面积1.2平方公里,“深圳西部最美的公园”。3公里范围内凤凰山森林公园、万丰湖湿地公园等绿境环绕,开启生活诗篇。

中粮悦章凤凰里规划图和户型图欣赏:

户型欣赏




【中粮悦章凤凰里开发商售楼处咨询/预约电话:☎️400-811-3080(中介勿扰)】
✅本楼盘样板房参观采取预约制,过来前请记得拨打开发商电话进行预约,预约看房价格更优惠,感谢您的配合!
✅我们将为您安排专业的楼盘内场销售人员全程为您接待, 给您提供更加贴心的看房以及购房服务体验!
特别注意:本楼盘开发商售楼部400电话没有设置任何所谓的“分机号”,拨打前请认真识别,注意保护个人隐私!谨防上当!
免责声明🔉:
以上所发布的关于深圳宝安松岗桥头站附近中粮悦章凤凰里楼盘相关介绍详情仅供您购房前参考,以上所有关于本楼盘的图文资料及说明请以最终项目批文及双方在楼盘营销中心现场签署的买卖最终合同为准;本图文内容如无意中侵犯到某方权益,请联系我们将会及时处理。
声明:本文由入驻焦点开放平台的作者撰写,除焦点官方账号外,观点仅代表作者本人,不代表焦点立场。
