深圳财富城二期-财富城二期楼盘详情-房价-在售户型-容积率-小区环境
扫描到手机,新闻随时看
扫一扫,用手机看文章
更加方便分享给朋友
坪山中心区,财富城2期弘德苑,共613套房源,面积有75㎡的3房1卫,89㎡的3房2卫,105-120㎡的4房2卫,140㎡的5房2卫户型,备案均价4.04万/㎡,备案单价3.47-4.95万/㎡,总价262-694万/㎡!计划在2026年6月份简装交房。
如需了解更多详情,欢迎咨询财富城2期售楼处电话400 811 3080,过来我们营销中心看房提前来电预约价格还能更优惠。
【财富城2期开发商售楼处400免费咨询/预约电话:400-811-3080,中介勿扰】
温馨提示:过来营销中心参观样板间请记得提前拨打售楼处400热线预约,感谢您的配合!
项目介绍:
财富城二期,总占地面积约4.54万㎡,总建筑面积约35.8万㎡,分为3个地块开发,分别是财富城育德苑,明德苑,弘德苑,总共规划有9栋13座住宅,总规划2538户,停车位2564个。
财富城2期所在的区位是整个坪山最核心的地段,汇聚了高铁+14/16号线双地铁+坪山实验学校+坪山中心公园+坪山天虹商场+坪山区政府+坪山体育中心+坪山图书馆,文艺馆等等,所有的市政配套基本都集中在这里,并且财富城2期也是该核心区域内唯一在售的新盘。
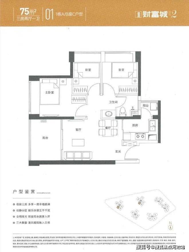
75㎡的3房2厅1卫,设计的是竖厅格局,客厅3.05米开间,3个卧室分别是3.1/2.85/2.25米的宽度,L型厨房,带1个小生活阳台,卫生间三段式分离设计,得房率约:76%(不含赠送),西南及西北朝向。
89㎡的3房2厅2卫,设计的是经典竖厅格局,客厅3.29米开间,3个卧室分别是3.3/2.8/2.5米的宽度,L型厨房,带1个小生活阳台,得房率约:76%(不含赠送),西南、东南及东北朝向。
105㎡的4房2厅2卫,设计的是竖厅南北通透格局,客厅3.5米开间,全屋飘窗双阳台设计,4个卧室分别是3.25/2.85/2.6/2.1米的宽度,U型厨房,得房率约:76%(不含赠送),阳台主朝西南向。
120㎡的4房2厅2卫,设计的是竖厅南北通透格局,双阳台设计,客厅3.6米开间,4个卧室分别是3.2/3.2/2.75/2.75米的宽度,U型厨房,得房率约:76%(不含赠送),阳台主朝东南、西北、东北向。
140㎡的5房2厅2卫,设计的是竖厅双龙抱珠格局,客厅4米开间,四开间朝南,4个卧室分别是3.55/2.95/2.95/2.7米的宽度,L型厨房,带1个小生活阳台,得房率约:76%(不含赠送),西南、东南朝向。
学校配套:根据2024年坪山教育局最新的学区划分,财富城2期所属片区,小初学区属于坪山实验学校+东北师范大学深圳坪山实验学校的大学区范围内,采取学位类型、后积分,再按平行志愿录取方法。
坪山实验学校在近年来一直都是属于坪山NO.1的学校,该校成立于2010年,如今已经有北、南、东三个校区,是一所九年一贯制学校,在2023年秋季总开设163个教学班,在校生有7600多人,并在2022年8月份正式成立教育集团。
深圳财富城2期开发商售楼处电话 400-811-3080(中介勿扰)
过来售楼中心看房请提前预约,可尊享内部特惠,价格包您满意!
为您安排楼盘内场专业销售人员一对一接待服务!让你买的放心,住的舒心!
免责声明🔉:
以上所发布的关于楼盘相关图文信息仅供您买房前参考,以上所有关于本楼盘的图文资料及说明请以最终以项目批文及双方在楼盘营销中心现场签署的买卖最终合同为准;本图文内容如无意中侵犯到某方权益,请联系我们将会及时处理。
声明:本文由入驻焦点开放平台的作者撰写,除焦点官方账号外,观点仅代表作者本人,不代表焦点立场。
