深圳宝安沙井万丰海岸城 169㎡楼王 6 房 超 16 米宽景视野 高端改善圈层品质大宅
扫描到手机,新闻随时看
扫一扫,用手机看文章
更加方便分享给朋友
最新消息:宝安沙井万丰海岸城·檀府项目现已取证,备案均价5.41万/㎡,备案总价431-1053万,将于2025年10月25日开盘选房,现在来电预约看房的话可尊享开盘当天99*97*97,约93折优惠。折后总价404万起,折后单价4.56万起,首推建面约89-91㎡三房二卫,93-103-121-125平米的四房二卫,139㎡的五房二卫,169㎡的六房。本次使用率约104%。
下面是最新万丰海岸城檀府住宅房源的备案价格表
如需了解本楼盘更多详情,欢迎来电咨询深圳万丰海岸城开发商售楼处免费400咨询/预约热线电话:400-880-7297(已认证)中介请勿扰,因近期参观的人员太多,本项目营销中心暂不接受临时到访,为不耽误您的行程,过来楼盘现场参观样板房请务必记得提前来电预约,预约看房的话最终房价还能更加优惠,最终价格包您满意!
下面是我们楼盘营销中心实拍照片:
万丰海岸城·檀府配套介绍:
核心优势:我们这个项目片区首个新规户型使用率高达104%,片区首个山姆会员点(下个月(10月)开业,深外宝本部+北校区(在建)
檀府相比于万丰海岸城离地铁更近!同样享受深圳外国语宝安学校学区!本次推售是新规户型。
项目鸟瞰效果图
万丰海岸城,项目位于宝安区沙井街道南环路与宝安大道交汇处,是一个集商业、住宅、产业、甲级写字楼、高端酒店、学校教育、文化休闲、交通枢纽、生态公园于一体的超大型城市综合体项目。
檀府项目由分南北两个地块组成,共有7栋超高层住宅和1所幼儿园,其中:5栋为商品房住宅,2栋为保障房,规划总户数2496户,其中普通商品房1392户,保障房1104户。
北地块(01-01),建设用地面积1.89万㎡,总建筑面积17.93万㎡,计容建筑面积12.85万㎡,容积率6.78。
规划建设4栋(45-47层)超高层住宅和1所幼儿园,该地块为纯商品房,总户数为1100户,机动停车位1309个。
万丰海岸城檀府规划平面图如下所示:
这次最大亮点莫过于全新迭代的王炸户型!
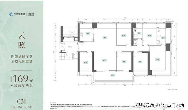
万丰海岸城·檀府户型分析
93平作为本次最高使用率的户型,做到极致四房,使用率约104%,在当下深圳的新房市场极为少见。
还是少有的四开间朝南,约11.7米采光面,仅40套左右!
169平楼王单位,更做到了大6房,仅约40席!
很方正的南北通透户型,全屋11个飘窗,收纳空间相当充足。
超16米东南采光面,阳台超7米宽;主卧进深4.5米,L型飘窗可270度景观。
沙井万丰项目A、B区规划商业总建面超66万㎡,致力于打造成为西部最具代表性的商业中心。作为海岸集团继南山海岸城、无锡海岸城的全国第三座、深圳第二座“海岸城”,将再次以超大体量+城市平台超级链接,革新深圳西部商业面貌。
万丰海岸城檀府航拍实景图
南地块(01-02),建设用地面积1.75万㎡,总建筑面积18.28万㎡,计容建筑面积13.51万㎡,容积率7.72。
规划建设3栋(48-53层)超高层住宅,总户数1396户,其中保障房1104户,普通商品房住宅292户,机动停车位1411个。
本次推售的万丰海岸城檀府(北地块),总占地面积约1.89万㎡,总建筑面积约17.96万㎡,计容建筑面积约12.87万㎡,容积率6.79,绿化率40%,共由4栋46-47层住宅组成,其中3栋1单元/2栋2单元商品房45层,3栋2单元商品房46层,2栋1单元47层,规划1所12班幼儿园。
总规划1098户,停车位1309个。
万丰海岸城目前已经推出了玺园、锦园、瑧园三区,其中,2020年万丰海岸城玺园、锦园同时推出,共721套房源,户型建面约73-143㎡均价约5.75万/㎡,最低社保入围月数为278个月;2021年万丰海岸城瑧园建面约81-136㎡均价约5.75万/㎡,入围最低积分59.1分,
商业:项目规划建设约14万㎡商业,如果后续海岸城扩容70万㎡拆迁范围的话相信一定也是会有商业配套规划,并且一定会比现在海岸城的商业规模要大,后续不仅能满足社区自身的购物娱乐需求,对沙井的大型商业配套也是一个强有力的补充。
不完全统计,除了项目附近分布的零散商业外,距离项目较近的几个小区也都建有配套商业,例如博林君瑞、丽莎花都等,其中万科星城配建有约26.8万㎡的商业配套。另外沙井形色城,沙井天虹这两处集中式购物中心是片区内运营多年的成熟商业,是目前沙井老城居民购物的主要场所。
交通配套
临近地铁11号线马安山站,此外,区域内另有地铁12号线20号线、18号线(规划中);穗莞深城际轨道交通线也已开通,该线路连接广州北站一深圳机场,预留延长线至深圳福田中心区。 深圳机场东枢纽(规划中)将按照6台14线规模在地下设站。航空方面片区内拥有深圳宝安国际机场,与60个城市通航,位居国内机场排名第三。
从宝安机场客运码头出发,可以到达香港、澳门、广州、珠海、中山5座城市。陆路交通已经形成“两横三纵”,“两横”是项目南北两侧的南环路、新沙路,“三纵”是项目西侧宝安大道、东侧中心路和107国道。高速方面拥有“四大高速”,广深高速、京港澳高速、广深沿江高速、外环高速等。深中通道预计2024年建成通车。
学校配套
【深圳外国语学校宝安学校】海岸集团代建的深圳外国语学校宝安学校,是宝安区引入的首个深圳四大名校。学校拥有102个班级,4740个学位,是目前深圳规模最大的九年一贯制学校。
生态配套
【坐拥南北景观 三公园】
由海岸公园、大钟山公园、架空层公园,形成立体生态体系。家楼下享有约4万㎡海岸公园休闲空间,公园设有400m跑道、儿童游乐场、健身器材区、下沉式花园、戏水景观等,满足全家人户外娱乐休闲、健康生活。
看完以上介绍,如需了解更多关于我们深圳宝安万丰海岸城檀府楼盘最新消息、剩余房源以及楼层、这几天房价优惠活动、在卖的户型、限购政策、房贷相关问题等情况,欢迎来电咨询万丰海岸城檀府开发商售楼处全国免费400咨询/预约电话:400 880 7297(已认证)中介请勿扰。
温馨提示:因近期本项目售楼中心来访的看房客户特别多,过来营销中心参观样板间采取预约制,为不耽误您的行程,过来营销中心现场看房请务必记得提前拨打售楼处400电话来电进行预约一下,预约看房价格还可以享受更多开发商内部优惠,名额有限千万不要错过,感谢您对我们工作的支持和配合,在此恭候您大驾光临实地品鉴。
免责声明:以上展示的关于深圳万丰海岸城檀府楼盘最新图文资料可能有部分来自网络,一切信息以最终在现场签署的购房合同为准,如图文内容无意中侵犯某方权益的话,请及时联系我们将配合处理。
声明:本文由入驻焦点开放平台的作者撰写,除焦点官方账号外,观点仅代表作者本人,不代表焦点立场。
