深圳西部网红盘《鸿荣源珈誉玖玺》加推建面94-109㎡,总价427万起
扫描到手机,新闻随时看
扫一扫,用手机看文章
更加方便分享给朋友
鸿荣源珈誉府项目位于深圳市宝安区沙井新桥,珈誉府本身是一个大型综合体,自身配套丰富,自带50万㎡大型商业;地铁11号线塘尾站挨着项目,深圳外国语宝安学校在项目南北两侧,且靠近万丰湖、立新湖,有生态资源。
如需了解本楼盘更多详情,欢迎来电咨询深圳鸿荣源珈誉府楼盘开发商售楼处免费400咨询/预约电话:400-880-7297(已认证)中介请勿扰,因近期参观的人员太多,本项目营销中心暂不接受临时到访,为不耽误您的行程,过来楼盘现场参观样板房请务必记得提前来电预约,预约看房的话最终房价还能更加优惠,最终价格包您满意!
基本信息:

【本期占地面积】:约4.79万㎡
【园林面积】:约2.9万㎡
【户型产品】:约124-199㎡臻奢4房
【开发商电话】:400 880 7297
【装修情况】:带装修交付
【产权年限】:70年(2022.5-2092.5)
【项目地址】:深圳·宝安大道和凤塘大道交汇(11号线塘尾站)
珈誉玖玺,是鸿荣源继宝中玖誉之后的又一高端品质之作,作为冠军红盘的接棒者,不仅是整个珈誉大城的最后一个住宅地块,而且是品质最高端的一个地块,刚需和改善首选的超级大城。
鸿荣源珈誉府户型介绍:
75㎡的3房2厅1卫
,设计的是竖厅格局,客厅3.1米开间,LDKB一体化,S墙设计预留冰箱卡槽位,3个卧室分别做到了主卧10.2㎡/次卧8.55㎡/次卧7.95㎡(包含墙体飘窗),U型厨房,卫生间三段式分离,得房率约77%(不含赠送),西南朝向。
84㎡的3房2厅2卫
,设计的是经典竖厅格局,客厅3.2米开间,LDKB一体化,S墙设计预留冰箱卡槽位,三开间朝南,3个卧室分别做到了主卧12.37㎡/次卧9.18㎡/次卧6.76㎡(包含墙体飘窗),U型厨房,卫生间三段式分离,得房率约77%(不含赠送),西南或东南朝向。
94㎡的3房2厅2卫
,设计的是横厅南北通透格局,客餐厅6.3米开间,LDKB一体化,四开间朝南,卧室全南向,3个卧室分别做到了主卧15.3㎡/次卧8.5㎡/次卧8.16㎡(包含墙体飘窗),L型厨房,公卫三段式分离,得房率约77%(不含赠送),阳台主朝东北向。
97㎡的3房2厅2卫
,设计的是横厅南北通透格局,客餐厅6.2米开间,LDKB一体化,四开间朝南,3个卧室分别做到了主卧13.87㎡/次卧8.58㎡/次卧7.92㎡(包含墙体飘窗),L型厨房,卫生间干湿分离,得房率约77%(不含赠送),阳台主朝东北向。
建面约124㎡的4房2厅2卫
124㎡的4房2厅2卫,此户型为东南朝向,设计的是经典竖厅格局,客餐厅位都设计了飘窗,就是为了争取更多的赠送,动静分区,四开间朝南,主卧270°观景飘窗,L型厨房,公卫三段式分离,得房率约88%(包含赠送)。
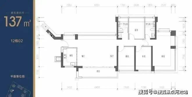
建面约137㎡的4房2厅2卫
137㎡的4房2厅2卫,设计的是横厅南北通透格局,超宽展面,动静分区,五开间朝南,主卧三面观景飘窗,L型厨房,公卫三段式分离,得房率约90%(包含赠送)。
建面约169㎡的4房2厅3卫
169㎡的4房2厅3卫,设计的是竖厅格局,2梯2户,专梯入户,独立入户玄关,LDKB一体化设计,四开间朝南,双主卧套间,客厅连接次卧出大阳台看花园全貌景观,二字型厨房带1个生活阳台,公卫三段式分离,得房率约95%(包含赠送),正南朝向。
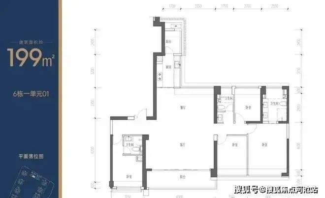
建面约199㎡的4房2厅3卫
199㎡的4房2厅3卫,设计的是竖厅格局,2梯2户,专梯入户,独立入户玄关,LDKB一体化设计,客厅超大开间,四开间朝南,双主卧套间,客厅超大阳台看花园全貌景观,二字型厨房带1个生活阳台,公卫三段式分离,得房率约95%(包含赠送),正南朝向。
鸿荣源珈誉府究竟值不值得买?
“誉”系精工匠造 | 八重都会园境
秉承“誉”系品质,打造“星空花园”主题大园林,约3万㎡围合式园林,约等于4.2个标准足球场大小,绕小区园林跑步一圈都有约1公里,源于梵高《星月夜》为灵感的“八重都会园境”,让您和公园只有一部电梯的距离,配备全龄泳池,两大儿童主题空间,构建全龄景观配套。
中国物业服务百强 | 领航高端服务
国家物业管理一级资质企业、深圳市物业管理行业协会副会长单位,致力于做中国高端物业专属服务的先行者,实现客户对美好生活的向往,中国物业服务品牌100强,粤港澳大湾区物业服务综合实力50强。
【玖繁·百亿商业 咫尺繁华 】
下楼即享商业:百亿超级商圈,定鼎西部新中心
🥇鸿荣源斥资打造又一湾区城市级购物中心
🏅约50万㎡“湾区壹方”、约10万㎡“熊出没”主题华强广场
🏅宝安首家山姆会员店、海岸城20万㎡商业,缤纷商业集聚
🏅共筑百亿超级商圈,定义湾区城市商业新模式,定鼎西部新中心

【玖畅·地铁直连 通达全城】
下楼即达地铁:直连地铁11号线,畅享都市便捷生活
✅地铁:家门口即11号线塘尾站,6站宝中、7站前海、9站后海、11站车公庙,便捷通达南山、福田核心片区
✅距离地铁口更近,更享便捷速达生活

【玖汇·全维配套集萃】
🌳1公里范围内万丰湖湿地公园、立新湖公园等公园环绕,悠然享受城市森意
📚高质学府资源环绕,周边书香氛围浓厚
近新桥文体中心、沙井文体中心(建设中),高标人文配置,悦享品质生活

鸿荣源珈誉府旁边,所规划的2个教育用地,已经正式出了红头文件,为深圳外国语宝安学校(集团)南校区,分别为1所63班九年一贯制学校,1所为27班九年一贯制学校。
该校目前所划分的深圳外国语学校宝安学校,在2023年小一的录取积分是96.9分,初一的录取积分是92.5分,按照宝安区教育局公布的积分政策,只要是深圳户籍(其它区)+学区内商品房,就有100分,深圳宝安户籍+学区内商品房,就有105分。
以上所展示的图文就是关于深圳宝安鸿荣源珈誉府楼盘最新介绍说明,看完以上内容,如果您对我们鸿荣源项目还有任何疑问的话,欢迎联系鸿荣源珈誉府开发商售楼处免费400热线电话:400-880-7297(已认证,中介请勿扰)进行咨询或者安排本楼盘我们楼盘现场销售人员在线为您一对一服务,现场销售人员会把楼盘的新资料、样板间图片视频、通过手机的方式发给您看、您不需要过来楼盘现场都能够了解个大概,还可以了解到本楼盘的优点缺点、房产政策、银行政策、积分入学、都给您讲解的明明白白。现场销售还可以为您对我们楼盘进行全面更详细的介绍,包含项目开盘详情、近期房价、楼层高低、户型朝向分析、最新折扣优惠活动等情况,而且还可以避免中介虚报价格,耽误您的时间和精力,中介所给的优惠我们全都可以给到,让您买的放心,住的舒心!买房是大事,记得及时联系我们。

免责声明:以上展示的关于深圳鸿荣源珈誉府楼盘最新相关的图文资料可能有部分来自于互联网,最终信息以在营销中心现场签署的购房合同为准,如以上图片或者文字无意中侵犯某方权益的话,请及时联系我们将配合处理。
声明:本文由入驻焦点开放平台的作者撰写,除焦点官方账号外,观点仅代表作者本人,不代表焦点立场。
