会展湾雍境名邸官方网站-会展湾雍境名邸官方楼盘详情-深圳楼市发布-会展湾雍境名邸楼盘详情-最新房价+户型图+交通+小区配套环境
扫描到手机,新闻随时看
扫一扫,用手机看文章
更加方便分享给朋友
招商会展湾雍境名邸位于宝安沙井大前海会展湾片区的招商会展湾雍境名邸于2025年4月30日取证入市,本次是招商会展湾雍境二期,首推1栋3单元的195套房源,面积段有80㎡3房1卫,91㎡3房2卫,92㎡3房2卫3种户型,是3梯7户的普通高层,预计2027年9月精装交楼。
如需了解更多关于我们楼盘最新消息、剩余房源、优惠活动、房价走势等情况,感兴趣的朋友欢迎来电预约前往参观,享受一对一专属VIP看房服务,一定比中介和自媒体更便宜享受开发商内部额外最低优惠折扣和大额现金购房补贴。
Vip Tel:400 880 7297【官方热线】
央企招商蛇口,美好生活承载者
招商蛇口是招商局集团旗下城市综合开发运营板
块的旗舰企业,中国领先的城市和园区综合开发运营服务商,以优秀的产品品质和领先的服务水准深受信赖,企业品牌价值位列行业TOP5。
基础信息
楼盘名称:招商会展湾雍境名邸
楼盘位置:宝安区沙井街道展城路与南环路交汇处,紧邻地铁12号线海上田园南站
宗地面积:约2.52万㎡
建筑面积:约16.95万㎡
受让日期:2023年3月31日
土地年限:70年(2023年3月31日-2093年3月30日)
物业费:4.5元/㎡/月
总户数:1534户(商品房804套,保障性住房730套)
车位数:1421个
车位比:约1:0.93
容积率:4.3(北地块4.6,南地块4.3)
绿化率:40%
楼栋层数:6栋住宅,总高26-32层
梯户比:2梯6户/3梯7户
开发商电话:400 880 7297
装修标准:精装修交付(含智能家居、品牌厨卫)
交付日期:预计2027年9月(一期提前1年交付,二期或更快)
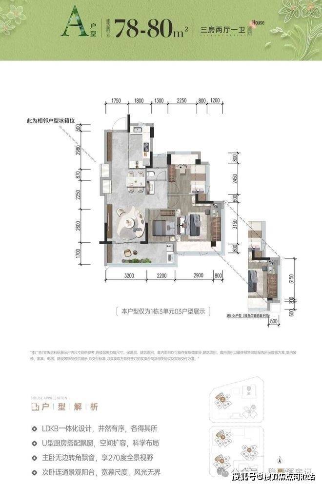
户型布局:
78-80㎡三房一卫
89-92㎡三房两卫
115-117㎡四房两卫
户型图
交通配套
项目距离地铁12号线海上田园南站仅50米,距离地铁20号线国展北站仅400米,远期规划还有18号线和30号线强化区域联动。
商业配套
会展城商业集群总规划超50万方的体量,包含国际品牌店㎡免税店等业态,目前正在逐渐开业,未来将成为辐射大湾区的消费地标。
与项目一路之隔的华发冰雪世界规划有10万方的商业街区,预计今年投入运营,未来将吸引千万级的客流量。周边目前已成型的有会展湾公园里2万方社区商业,万丰海岸城16万方的商业综合体。
教育配套
楼盘自带幼儿园,距离会展湾实验学校仅500米,该校是由宝安中学第二外国语学校承办,总规划72个班,已于2024年开学。
温馨提示:感兴趣的朋友欢迎来电预约前往参观,享受一对一专属VIP看房服务,一定比中介和自媒体更便宜享受开发商内部额外最低优惠折扣和大额现金购房补贴。
本项目推广名为“招商会展湾雍境名邸",官方电话:400 880 7297 本资料为要约邀请,不作为要约或承诺。以上所发布的关于楼盘相关图文信息仅供您买房前参考,以上所有关于本楼盘的图文资料及说明请以最终以项目批文及双方在楼盘营销中心现场签署的买卖最终合同为准;
声明:本文由入驻焦点开放平台的作者撰写,除焦点官方账号外,观点仅代表作者本人,不代表焦点立场。
