罗湖刚需到改善型住宅新房:京基璟誉府,湖山首排奢宅,约50-180平精装1-4房!
扫描到手机,新闻随时看
扫一扫,用手机看文章
更加方便分享给朋友
深圳【京基璟誉府】
罗湖区在老深圳人眼里它就是深圳的代名词,这里是深圳崛起的发源地,到现在GDP增速依旧很快,2023年GDP总量为2808亿,增速约7.2%,高于福田南山。
与其说其他区域还在等待完善的配套,罗湖早就有了,还不少,如:
罗湖有多个城市标志性建筑,如京基100、国贸大厦、地王大厦等;
这里还有成熟的生活配套,医疗方面全市39家三甲医院这里占了7家;
学校教育方面深圳“八大”这里有两个-深圳中学、翠园中学;
商业方面有深圳天河城、深圳万象城、KK MALL等集中式商业,还有充满生活烟火气息的东门步行街。
过去几年,罗湖入市的新盘不仅不多,价格也不便宜,综合性价比一般。相较之下,京基天韵府作为体量约84万平全景山水人文大城的首期,不仅价格让人惊喜,品质也有让人值得期待的点,此外还能享受到大城的「长期成长性」,综合性价比更高。
先抛开产品部分,京基天韵府的素质绝对不差,其位于罗湖区东湖街道仁心路与围岭中路交汇处西北侧,属于罗湖的老牌居住区——布心片区,周边配套十分丰富,距离地铁5号线布心站仅约200米,步行4分钟,实打实的地铁物业,出行非常方便。
商业方面距离约12万㎡天河城购物中心约1公里,2公里左右则有华润万象汇、喜荟城购物中心等大型商业配套;教育方面紧邻东晓小学、布心小学、布心中学等教育配套;休闲方面同样丰富,旁边就是深圳水库、东湖公园等配套,高层甚至拥有不错的景观视野。
项目介绍
京基天韵府位于罗湖区布心太白路旁,项目原为东湖街道布心村水围村城市更新单元,总占地面积4.8万㎡,建筑面积约54.8万㎡,项目共分二期4个地块开发,其中一期是京基天韵府(在售),京基天珺府,京基天宸府,二期是京基璞誉府。
如需了解更多详情,欢迎咨询京基天韵府开发商售楼处咨询/预约电话:400-880-7297(已认证)中介请勿扰,过来我们营销中心看房务必记得提前来电预约,预约看房的话最终的价格还能更加优惠。
京基天韵府:3栋住宅62层,1栋办公楼71层,1所9班幼儿园。
京基天珺府:1栋保障房53层,1栋保障房+住宅53层,1栋商务公寓62层
京基天宸府:1栋办公楼58层,1栋办公楼68层,2栋住宅75层。
京基璟悦府:2栋住宅60层,1栋办公楼62层,1栋办公楼66层,1所18班幼儿园。
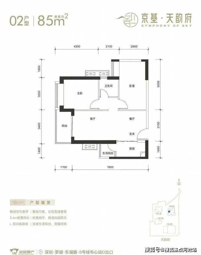
京基天韵府于今年3月23日已开盘!推出1栋B座244套,在售面积有70-85㎡的2房1卫,105㎡的3房2卫,120-150-180㎡的4房2卫户型,备案均价6.56万/㎡,备案单价5.99-7.62万/㎡,总价在453-1387万/套,开盘折扣为备案价85折,开盘当天销售138套,其中项目05-180㎡,06-85㎡及07-150㎡高层景观视野良好可以看到远处的梧桐山以及深圳水库景观,看湖总价最低在400多万。
在453万这个价格再85折70㎡预计也就是386出头万左右就能买到罗湖准现房,项目于2025年7月带装修交付,项目为5梯7户,项目学区还是罗湖名校东晓小学➕翠园集团布心中小学。
户型图鉴赏:
项目还即将加推新地块璟誉府,相比天韵府璟誉府更近湖边一些,其中一期是只有050607——85-150-180㎡三个户型看湖,璟誉府是有1B1座0304——120㎡,1B2座03——150㎡,以及1A1座04——180㎡四个大户型为主看湖,璟誉府是3梯4跟3梯5户为主,其中璟誉府还有50㎡的小户型总价260万起,交房时间2026.10.31
目前京基璟誉府预约看房话的可尊享折扣以及折后价发布,过来现场看房拨打开发商电话400-880-7297进行在线预约的话,可以享受额外的98折,还有额外两年的物业费,加上认筹的优惠(买8.8元VIP券享额外99折,2万元诚意登记88折+送一年物业管理费)合计88折*99折*98折=85.37折另送3年物业费。
50㎡ 一房一厅一卫 36套折后260万-280万
70㎡ 两房一厅一卫 36套折后360-380万
85㎡ 两房一厅一卫 68套折后450-480万
95㎡ 三房两厅两卫 55套折后540-570万
105㎡ 三房两厅两卫 146套折后580-650万
120㎡ 四房两厅两卫 95套折后700-780万
150㎡ 四房两厅两卫 41套折后930-1010万
180㎡ 四房两厅两卫 11套折后1115-1225万
以上折扣以及价格仅供参考最终以拿证公布为准
户型图鉴赏:
项目位于东湖街道,西临东晓路,北临东湖路,东临丹平快速路,距离5号线“布心站”300米,7号线“太安站”700米范围内,属于“双地铁”物业。
示意图
此外,值得一提的是距离只有400米左右的粤海城,总建面约65万㎡,规划有写字楼、购物中心、公寓等业态,被誉为深圳的天河城。单单这个商业配套便足以满足今后的休闲购物娱乐等需求,除此之外周边还有喜荟城、IBC、万象汇等均是大型的商业。
周边教育资源丰富,布心小学、布心中学、东晓小学等学校(入学/升学条件以当地教育主管部门制定的当年入学政策为准)。
值得一提的是:布心中学和东晓小学均为深圳老牌八大之一——翠园东晓教育集团的成员学校。
一开始,翠园东晓校区还隶属于翠园教育集团,而翠园在罗湖的地位好比荔园之于福田,南二外之于南山;但因翠园东晓创新学校连续13年诞生罗湖中考状元,本身实力非常强,最后就从翠园教育集团独立出来,牵头成立了翠园东晓教育集团,其成员学校里面就有布心中学和东晓小学。
在深圳「名校集团化的大背景下」,随着时间的推进、翠园东晓教育集团的持续加持,铭叔和儿子对这两所学校也充满期待和信心。
景观视野也是非常良好,西望园岭公园,北瞰淘金山绿岛。项目是京基联袂国际大师匠造的都市综合体,集住宅、公寓、办公、商业等多元业态一体,多样性组合创造更多可能,「宜商X宜业X宜居X宜娱」全城市生活功能闭环,足不出户享全优生活。
项目优缺点方面:
优点:
1区位优势:位处罗湖核心区域的布心片区尽享城市便利与生活配套;
2交通便捷:双地铁配套(5号线布心站和5、7号线太安站)以及多条城市主干道相接通方便快捷;;
3教育资源丰厚:周边有众多知名学校包括东晓小学、布心小学、布心中学等;
4商业氛围浓厚:天河城、万象城、kk mall等大型商业中心汇聚;
5自然景观优美:高层单位可欣赏到深圳水库等美景带来舒适宜居体验。
看完以上介绍,如需了解更多关于我们深圳京基璟誉府楼盘最新消息、剩余楼层、房价优惠活动、户型结构等情况,欢迎咨询京基璟誉府开发商售楼处咨询/预约电话:400 880 7297(已认证)中介请勿扰。
温馨提示:因近期我们京基项目营销中心来访的看房客户较多,过来营销中心参观样板间采取预约制,为不耽误您的行程,过来营销中心现场看房请务必记得提前拨打售楼处400免费热线来电进行预约一下,预约看房价格还可以享受更多开发商内部优惠,名额有限千万不要错过,感谢您对我们工作的支持和配合,在此恭候您大驾光临实地品鉴。
免责声明:以上展示的关于罗湖京基璟誉府楼盘最新图文资料可能有部分来自于网络,一切信息以最终在现场签署的购房合同为准,如图文内容无意中侵犯某方权益的话,请及时联系我们将配合处理。
声明:本文由入驻焦点开放平台的作者撰写,除焦点官方账号外,观点仅代表作者本人,不代表焦点立场。
