桑泰缙樾府-南山(桑泰缙樾府)首页网站丨桑泰缙樾府欢迎您丨楼盘详情 /价格 /户型
扫描到手机,新闻随时看
扫一扫,用手机看文章
更加方便分享给朋友
南山南头,桑泰缙樾府于2024年12月6日取证入市,推出1栋/2栋,共147套房源,面积有114-115-118㎡的4房2厅2卫,133㎡的5房2厅2卫户型,打出了9.31折优惠,折后均价6.79万/㎡,单价6.51-7.1万/㎡,总价在737-943万/套。
桑泰缙樾府总高只有30-31层,3.62的低容积率,3梯4户的豪宅配比,户户南北通透,最低上车门槛都是4房。
如需了解更多详情,欢迎咨询桑泰缙樾府售楼处电话400 811 3080,过来我们营销中心看房提前来电预约价格还能更优惠。
【深圳桑泰缙樾府售楼中心400免费咨询/预约电话:400-811-3080,中介勿扰】
温馨提示:过来营销中心参观样板间请记得提前拨打售楼处400热线预约,感谢您的配合!
桑泰缙樾府项目位于南山南头同乐,推出户型上基本是户户南北通透,容积率也非常低,仅3.62。但周边配套相对一般,片区内无大型商业,配套有待完善。
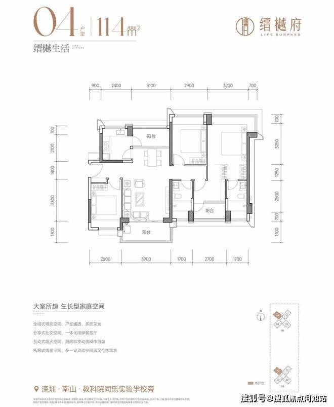
平面图和户型图
项目户型包括114㎡4房2厅1卫、115㎡4房2厅2卫、118㎡4房2厅2卫和133㎡5房2厅2卫。
缙樾府均为大户型,虽然存在把阳台改餐厅和房间的情况,整体来讲产品还是很不错的,114㎡做4房,133㎡做5房,空间利用率很高,相比之下,西丽汉园茗院110㎡只能做到三房。
缙樾府位于南山区南头同乐片区中山园路与铁二路交汇处,项目东侧紧挨着同乐实验学校,西侧是同乐物联网产业综合基地,南侧是近期入市的安居房同乐馨苑。
从大区位来看,荔源雅苑位居宝安区跟南山区交界处,西侧是宝安中心区,北侧是南山TCL科学园国际E城,东侧是西丽交通枢纽,深圳超级总部基地,南侧是南山中心区。
同乐属于南山区最边缘的区域,存在感很弱。周边多为物流园、工业区、老旧小区以及城中村,居住氛围还可以,但缺乏生活配套。
缙樾府建筑面积为4.79万㎡,建筑高度为31层,建筑高度为99.9米,目前正在施工,已出地面20多层。
深圳桑泰缙樾府开发商售楼处电话 400-811-3080(中介勿扰)
过来售楼中心看房请提前预约,可尊享内部特惠,价格包您满意!
为您安排楼盘内场专业销售人员一对一接待服务!让你买的放心,住的舒心!
免责声明🔉:
以上所发布的关于楼盘相关图文信息仅供您买房前参考,以上所有关于本楼盘的图文资料及说明请以最终以项目批文及双方在楼盘营销中心现场签署的买卖最终合同为准;本图文内容如无意中侵犯到某方权益,请联系我们将会及时处理。
声明:本文由入驻焦点开放平台的作者撰写,除焦点官方账号外,观点仅代表作者本人,不代表焦点立场。
