拾悦城楠园首页网站 - 拾悦城楠园销售中心(营销中心)欢迎您 - 小区环境 - 户型 - 价格 - 地址 - 楼盘详情 - 周边配套 - 拾
扫描到手机,新闻随时看
扫一扫,用手机看文章
更加方便分享给朋友
拾悦城楠园(深圳沙井)
如需了解更多详情,欢迎咨询拾悦城楠园售楼处电话400 811 3080,过来我们营销中心看房提前来电预约价格还能更优惠。
【深圳拾悦城楠园售楼中心400免费咨询/预约电话📞:400-811-3080,中介勿扰】
温馨提示:过来营销中心参观样板间请记得提前拨打售楼处400热线预约,感谢您的配合!
项目基本信息
【项目名称】拾悦城.楠园
【占地面积】约3.54万㎡
【建筑面积】约23.5万㎡
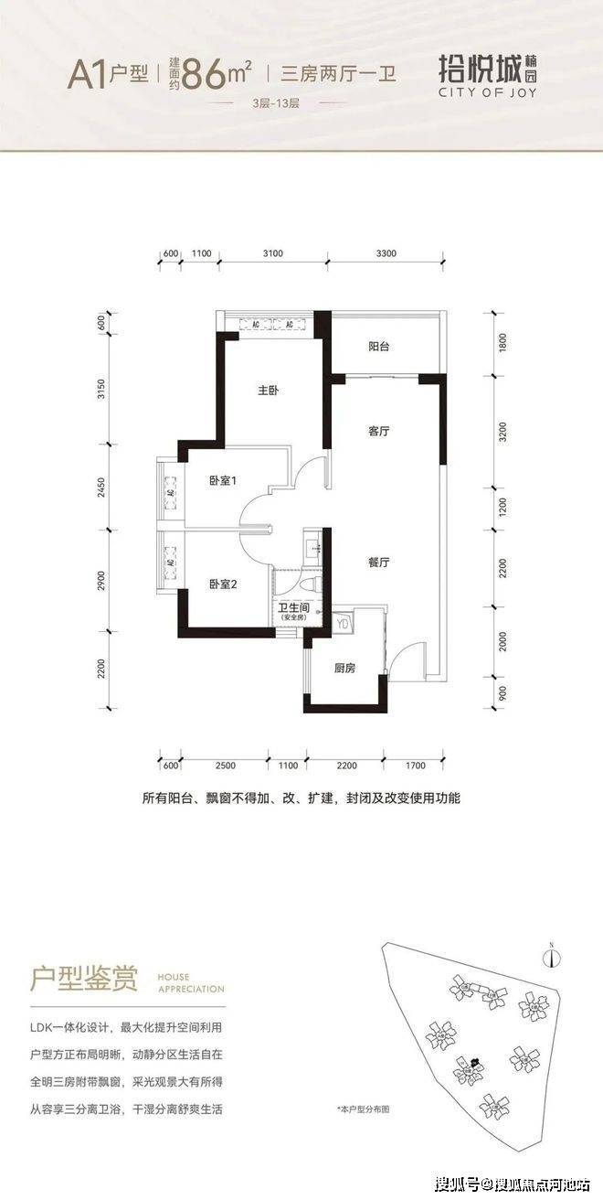
【推售产品】86-140㎡3-5房
【交付标准】简装交付
【交房时间】2025.12
【房产性质】70年
【总 户 数】可售2015套
【车 位 数】约2396个
【物业公司】万家好物业
【物 业 费】4.5
【容 积 率】约6.66
【绿 化 率】约40%
【梯 户 比】3T7、3T6、3T5
【开发商电话】4008113080
交通配套
【出行Top:11号线上 高速畅达全城】
紧邻11号线沙井站约700米,5站到机场,7站通宝安中心(从马安山出发),快速通达前海湾、后海总部基地、深湾总部基地、福田中心。
商业配套
【繁华Top:超48万㎡醇熟生活圈】
项目约3公里内超48万㎡商荟集群,未来周边还会进驻山姆会员店(建设中)、海岸城等,悦享一站式购物生活圈。
教育配套
【优教Top:宝中外(集团)学校旁 接送省心】
项目内建设有一所18班幼儿园,拾悦小学与壆岗岗厦片区九年一贯制学校(在建)新建工程皆纳入深圳市宝安中学外国语学校(集团)成员学校,近距离接送省心,强师资家长安心。
小区配套
1.4万平全龄段主题园林:1.4万平米中央园林,以“全维社区共享生活体系”为概念,打造全龄段、多元化、动静分明的沉浸式归家生活。
主题儿童区:670平米森系主题儿童乐园
环氧步道:356米环形健康步道,即能运动又能与家人一起享受幸福甜蜜的闲暇时光
社区活动广场 :专属社区活动场地,满足全龄段业主活动需求
高品质公区:高品质入户大堂、停车场入户大堂,归家仪式与空间交融
社区会客厅:沉浸式社区会客厅,邻里关系更温馨
户型鉴赏
深圳拾悦城楠园开发商售楼处电话 400-811-3080(中介勿扰)
过来售楼中心看房请提前预约,可尊享内部特惠,价格包您满意!
为您安排楼盘内场专业销售人员一对一接待服务!让你买的放心,住的舒心!
免责声明🔉:
以上所发布的关于楼盘相关图文信息仅供您买房前参考,以上所有关于本楼盘的图文资料及说明请以最终以项目批文及双方在楼盘营销中心现场签署的买卖最终合同为准;本图文内容如无意中侵犯到某方权益,请联系我们将会及时处理。
声明:本文由入驻焦点开放平台的作者撰写,除焦点官方账号外,观点仅代表作者本人,不代表焦点立场。
