宝安西乡【前海辐射圈双地铁现楼】河东骏濠园,住宅0首付45-87㎡2-3 房
扫描到手机,新闻随时看
扫一扫,用手机看文章
更加方便分享给朋友
河东骏濠园位于深圳市宝安区西乡街道的河东社区,属于深圳核心区域内,需要购房资格(深户或者深圳一年社保)项目距离流塘地铁站900米。项目由4栋组成,1A栋商业,1B住宅,2栋公寓,3栋住宅,目前主要售卖3栋和1B栋,主打的都是刚需小户型住宅,建面45-63-87㎡即将全新开盘入市!
如需了解本楼盘更多详情,欢迎来电咨询深圳宝安河东骏濠园楼盘开发商售楼处免费400咨询/预约电话:400-800-9113(已认证)中介请勿扰,因近期参观的人员太多,本项目营销中心暂不接受临时到访,为不耽误您的行程,过来楼盘现场参观样板房请务必记得提前来电预约,预约看房的话最终房价还能更加优惠,最终价格包您满意!
下面是我们楼盘营销中心现场照片:
项目介绍
河东骏濠园项目是集公寓、办公、住宅、商业等为一体的都会综合体,由4栋建筑组成,1A栋商业,1B栋住宅,2栋公寓,3栋住宅。
河东骏濠园项目周边配套:
交通配套:河东骏濠园紧邻15号线(规划中)西乡公园站,直线距离约200米,无需换乘,3站直达大铲湾“腾讯科技岛”、5站直达留仙洞总部基地、6站直达前海商务区、9站直达南山科技园,12站抵达后海总部基地,构建半小时通勤圈。直线距离12号线流塘站约700米,步行900米,接驳地铁1号线、5号线,4站通达南山。距离穗莞深城际(在建中)西乡站、宝安站约2.5公里。
学校配套:项目距离流塘小学800米,塘小学1993年成立。教学设施完备先进,有先进的信息技术应用系统和12个标准功能室等。以“智善教育”为理念,培养德智体美劳全面发展的优雅少年,儿童版画、跳绳和京剧表演等特色课程初成气候,荣获“全国文明礼仪教育示范基地”“深圳市绿色学校”等多项荣誉称号
- 距离弘雅小学900米,弘雅小学实行文武兼修,开设武术、艺术特色课程,是“全国日常英语实验学校”,与北师大联合办学,被选定为“北京师范大学基础教育实验基地”。
- 新华实验学校:注重素质教育和学生全面发展,师资力量雄厚,教学设施完善,在当地有一定的口碑和影响力。另外,河东骏濠园项目还自带1栋幼儿园.
商业配套:项目下楼即享约1.9万㎡集中商业,直线距离约1公里范围聚集港隆城、仟悦城、天虹、万达广场。约3公里范围内汇聚大仟里、大悦城(在建中)、中洲πMALL、海雅缤纷城、壹方城等大型商业集群,满足日常吃喝玩乐购等需求,都市繁华尽在掌握。
西乡会堂,直线距离宝安体育中心约1.4公里,约3.5公里范围内汇聚欢乐港湾、宝安区公共艺术中心(在建中,含博物馆、美术馆、艺术馆)、宝安区青少年宫、宝安区图书馆等。
【河东百万大城首发 都会综合体】
河东社区作为大型社区,分为南北两大区域,打造河东百万大城,其南区规划107发展带城市更新单元,总建筑面积达235万㎡,集办公、商业、酒店、公园等多元业态,带动人流聚集。
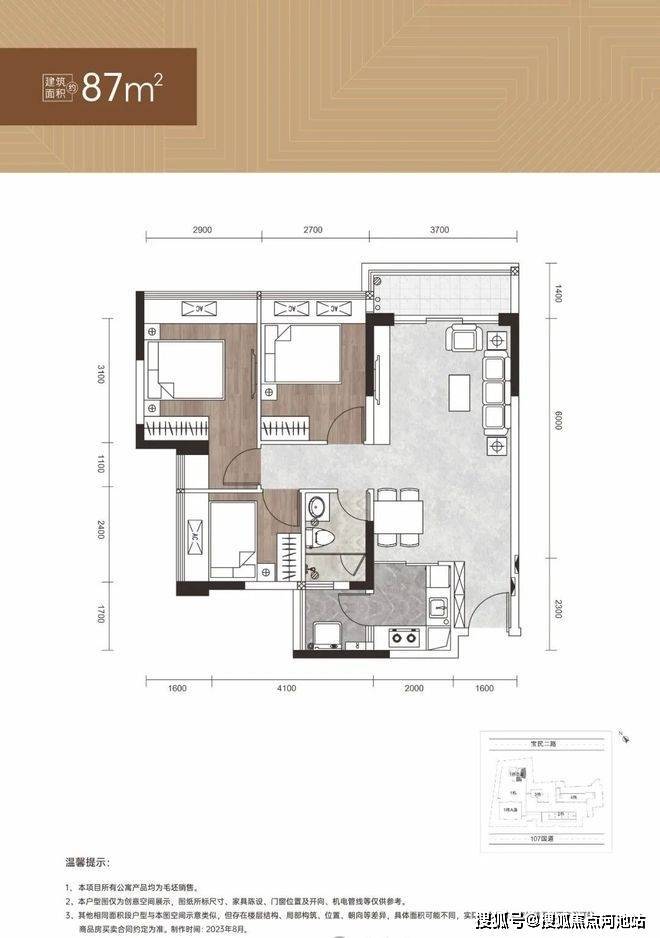
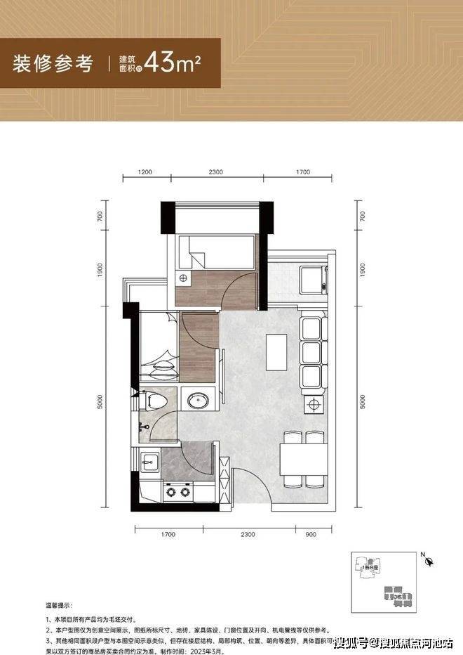
河东骏濠园项目属于深圳核心区,需要购房资格(深户或者深圳一年社保)。目前主要售卖3栋和1B栋住宅,户型43-64-87㎡,已是现房,毛坯交付!
河东骏濠园规划平面图
43㎡一房一卫 43㎡改两房
看完以上图文介绍,您如果想要了解更多关于我们深圳河东骏濠园楼盘最新消息、当前剩余房源、这几天楼盘现场折扣优惠活动、近期周边房价走势、银行相关利率政策等情况的话,欢迎来电咨询河东骏濠园开发商售楼处免费400咨询/预约热线电话:400-800-9113(已认证)中介勿扰。
温馨提示:因本项目营销中心参观样板间采取预约制,为不耽误您的行程,过来营销中心现场看房前请务必记得提前来电预约,预约看房的话享受的优惠折扣比直接上门更多,最终成交价格也会更加划算,在此真诚感谢您对我们工作的支持和信赖,恭候您大驾光临。
免责声明:以上展示的关于深圳宝安河东骏濠园楼盘最新相关的最新图文资料可能部分来自网络,具体细节以最终签署的购房合同为准,如无意存在侵犯某方权益请及时联系我们处理。
声明:本文由入驻焦点开放平台的作者撰写,除焦点官方账号外,观点仅代表作者本人,不代表焦点立场。
