不想等期房?选光明松茂御城准现楼,2026 年精装交付,实景可鉴买房告别烂尾风险
扫描到手机,新闻随时看
扫一扫,用手机看文章
更加方便分享给朋友
最新消息:深圳光明凤凰城【松茂御城·雅苑】2期项目将于2025年8月28日开放二期实体样板间,并同步认筹,9月初直接开盘认购,本次开盘首推1栋B/G/H/E座,共约333套房源,建筑面积81㎡-135㎡,81㎡三房二卫,89㎡四房二卫,109㎡四房二卫,135㎡五房二卫,光明户型天花板,得房率最高100%。共1225套房源,二期预计价格4万/㎡,准现房精装交楼。
如需了解本楼盘更多详情,欢迎来电咨询深圳松茂御城二期楼盘开发商售楼处免费400咨询/预约电话:400-880-7297(已认证)中介请勿扰,因近期参观的人员太多,本项目营销中心暂不接受临时到访,为不耽误您的行程,过来楼盘现场参观样板房请务必记得提前来电预约,预约看房的话最终房价还能更加优惠,最终价格包您满意!
下面是我们楼盘营销中心实拍照片:
松茂御城一期现在清盘消息:按照之前价格,开发商只打了9.X折!最近内部消息,给出了清盘价超惊喜优惠,且已经是现楼,84㎡做到了3.8米的客厅!超100%使用率!
这次,我们开发商内部也给出了7X折优惠,折后价格如下,除了折扣外,还有额外媒体返利,具体可以扫码预约获取!
绝版户型·收官钜惠
超100%使用率·即买即住·赠送品牌精装
建面约84-89㎡ 精装现房 13号线双地铁口
82㎡的3房2厅1卫,折后总价284万~312万/套,单价3.46~3.80万/㎡。
84㎡的3房2厅1卫,折后总价328-334万/套,单价3.9-3.97万/㎡。
86㎡的3房2厅1卫,折后总价289-321万/套,单价3.73-4.04万/㎡。
88㎡的3房2厅2卫,折后总价311-393万/套,单价3.5-4.46万/㎡。
89㎡的3房2厅2卫,折后总价317-345万/套,单价3.56-3.87万/㎡。
项目区位
松茂御城雅苑,位于深圳市光明区凤凰街道塘尾社区松白路与东明大道交汇处北侧约200米,前身为塘尾沙头面工业区地块更新单元,作为轨道13号线车辆段综合开发项目的核心区域,周边是百万级别的旧改大开发项目,未来前景值得期待。
项目介绍
松茂御城雅苑,由松茂集团开发,总占地面积约4.53万㎡,总建筑面积约29.78万㎡,容积率4.67,绿化率40%,共分2期开发打造,后期将会有风雨连廊连接在一起,总规划2130户,停车位2321个,车位占比约1:1.09。
目前首推的一期,总占地面积约1.4万㎡,总建筑面积约10.21万㎡,共由4栋住宅组成,其中1栋A/B座住宅33F,1栋C座住宅32F,2栋公寓32F,共规划905户,其中商品房279套,回迁房112套,公租房124套,另外还有390套商务公寓,停车位773个。
二期总建筑面积约20.74万㎡,计容建筑面积约14.24万㎡,共由9栋总高32F的住宅组成,另外还规划有1所9班制幼儿园,总规划1225户,全部是商品房,回迁房暂不确定,小区还规划了菜市场,公交首末站,社区服务中心等,停车位1548个。
松茂御城一期和二期楼栋规划图
松茂御城项目规划平面图
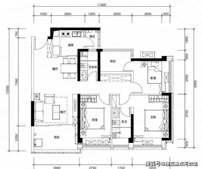
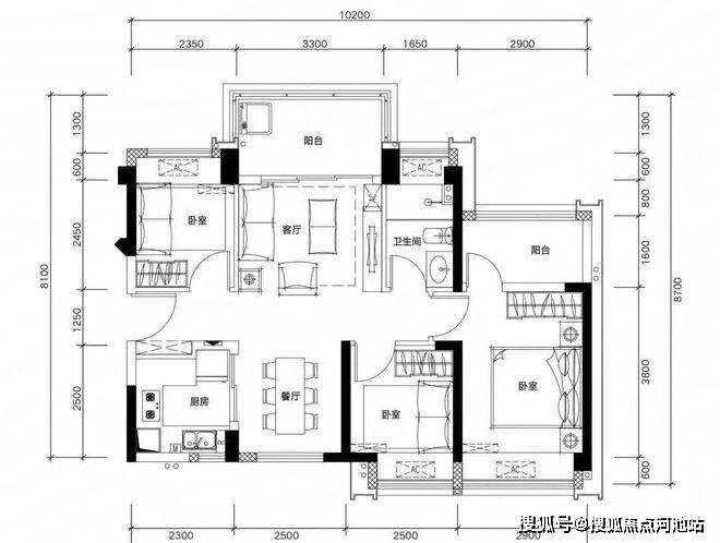
松茂御城户型图解析:
81m²的3房2厅2卫,1H栋01户型,设计的是竖厅南北通透格局,客厅3.3开间,客餐厅分离设计,四开间朝南,3个卧室分别做到了主卧12.76m²/次卧7.57m²/次卧7.16m²(包含墙体飘窗),得房率79.6%(不含赠送),U型厨房,卫生间干湿分离,阳台4.29m²东北朝向看花园。套内面积64.48m²+赠送面积11.25m²=实用面积75.73m²,加上赠送后得房率93.49%。
81m²的3房2厅2卫,1H栋03户型,设计的是经典竖厅格局,客厅3.4米开间,LDKB一体化设计,三开间朝南,动静分区,3个卧室分别做到了主卧11.53m²/次卧9.9m²/次卧5.88m²(包含墙体飘窗),得房率79.6%(不含赠送),U型厨房,卫生间干湿分离,阳台4.42m²西南朝向。套内面积64.48m²+赠送面积9.64m²=实用面积74.12m²,加上赠送后得房率91.5%。
81m²的3房2厅2卫,1G栋03户型,设计的是经典竖厅格局,客厅3.4米开间,LDKB一体化设计,三开间朝南,动静分区,3个卧室分别做到了主卧12.02m²/次卧10.72m²/次卧7.01m²(包含墙体飘窗),得房率79.6%(不含赠送),U型厨房,卫生间干湿分离,阳台5.61m²东南向看花园。套内面积64.48m²+赠送面积10.33m²=实用面积74.81m²,加上赠送后得房率92.35%。
82m²的3房2厅2卫,1G栋05户型,设计的是经典竖厅格局,客厅3.4米开间,LDKB一体化设计,三开间朝南,动静分区,3个卧室分别做到了主卧12.02m²/次卧10.72m²/次卧8.01m²(包含墙体飘窗),得房率79.6%(不含赠送),U型厨房,卫生间干湿分离,阳台5.44m²西南朝向。套内面积65.27m²+赠送面积10.31m²=实用面积75.58m²,加上赠送后得房率92.17%。
89m²的4房2厅2卫,1B栋01户型,设计的是竖厅南北通透格局,客厅3.5米开间,客餐厅分离设计,四开间朝南,4个卧室分别做到了主卧12.63m²/次卧7.93m²/次卧7.32m²/次卧7.01m²(包含墙体飘窗),得房率79.6%(不含赠送),U型厨房,卫生间干湿分离,阳台5.25m²东南朝向看松白路。套内面积70.85m²+赠送面积15.02m²=实用面积85.87m²,加上赠送后得房率96.48%。
89m²的4房2厅2卫,1B栋02户型,设计的是经典竖厅格局,客厅3.5米开间,LDKB一体化设计,四开间朝南,动静分区,4个卧室分别做到了主卧12.33m²/次卧8.82m²/次卧7.08m²/次卧5.76m²(包含墙体飘窗),得房率79.6%(不含赠送),U型厨房,卫生间干湿分离,阳台5.25m²东南朝向看松白路。套内面积70.85m²+赠送面积11.85m²=实用面积82.7m²,加上赠送后得房率92.92%。
89m²的4房2厅2卫,1B栋03/05户型,设计的是经典竖厅格局,客厅3.5米开间,LDKB一体化设计,四开间朝南,动静分区,4个卧室分别做到了主卧12.18m²/次卧9.05m²/次卧7.65m²/次卧6.37m²(包含墙体飘窗),得房率79.6%(不含赠送),U型厨房,卫生间干湿分离,阳台4.9m²西南朝向看花园。套内面积70.85m²+赠送面积12.45m²=实用面积83.3m²,加上赠送后得房率93.6%。
109m²的4房2厅2卫,1B栋06户型,设计的是竖厅南北通透格局,客厅3.85米开间,客餐厅分离设计,四开间朝南,南北双阳台,4个卧室分别做到了主卧16.2m²/次卧11.2m²/次卧9.21m²/次卧7.52m²(包含墙体飘窗),得房率79.6%(不含赠送),U型厨房,卫生间干湿分离,阳台6.16m²西南朝向看花园。套内面积86.77m²+赠送面积16.43m²=实用面积103.2m²,加上赠送后得房率94.67%。
109m²的4房2厅2卫,1G栋02户型,设计的是经典竖厅格局,客厅3.9米开间,LDKB一体化设计,四开间朝南,动静分区,4个卧室分别做到了主卧15.55m²/次卧11.96m²/次卧9.44m²/次卧7.7m²(包含墙体飘窗),得房率79.6%(不含赠送),U型厨房,卫生间干湿分离,阳台6.43m²东南朝向看花园。套内面积86.77m²+赠送面积14.41m²=实用面积101.18m²,加上赠送后得房率92.82%。
135m²的5房2厅2卫,1G栋01户型,设计的是竖厅南北通透格局,客厅4.2米开间,客餐厅分离设计,四开间朝南,南北双阳台,5个卧室分别做到了主卧18.03m²/次卧11.55m²/次卧11.52m²/次卧9.26m²/次卧8.54m²(包含墙体飘窗),得房率79.6%(不含赠送),U型厨房,卫生间干湿分离,阳台7.14m²东南朝向看花园。套内面积107.5m²+赠送面积21.81m²=实用面积129.31m²,加上赠送后得房率95.78%。
135m²的5房2厅2卫,1E栋03户型,楼王单位,设计的是竖厅南北通透格局,客厅4.15米开间,客餐厅分离设计,四开间朝南,南北双阳台,5个卧室分别做到了主卧17.67m²/次卧14.24m²/次卧9.92m²/次卧9.27m²/次卧8.26m²(包含墙体飘窗),得房率79.6%(不含赠送),U型厨房,卫生间干湿分离,阳台6.64m²正南朝向看花园。套内面积107.5m²+赠送面积21.51m²=实用面积129.01m²,加上赠送后得房率95.56%。
01
交通配套
松茂御城紧挨着松白路主干道,周边还有东明大道,光明大道,沈海高速,深圳外环高速,南光高速,龙大高速等交通要道,目前距离在建的13号地铁线“月亮路站”约400米,3站到光明城站,5站到石岩上屋站,计划在2025年通车运营。
02
商业配套
项目自带4.6万㎡的底商商业,周边润宏城规划了万象商业,在20分钟车程范围内还有光明最大的蓝鲸世界购物中心,万达广场,包括公明最好的大仟里购物中心。
03
学校配套
根据2024年光明区教育局最新的学区划分,小学学区划分在教科院实验小学,秋硕小学,龙豪小学,光明实验学校,初中学区划分在深圳中学光明科学城学校二初中部,凤凰城实验学校初中部。
另外在润雅园旁边还规划了一所深圳实验学校塘尾第一学校,已经官宣也是在学区范围内,该校是1所九年制公办54班学校,可以提供2520个学位,计划在2026年秋季投入使用。
04
医疗配套
项目后侧就是中国科学院大学深圳医院(光明)塘尾社区健康服务中心,可满足日常的就医需求,并且开车10分钟就能到达中国科学院大学深圳医院(西院区)。
05
休闲配套
项目茶余饭后散步的好去处很多,后方即为塘尾社区公园,一公里内还有后底坑水库、将围社区消防主题公园、明湖城市公园。2公里处有五指耙公园、光明开明公园、党建公园、凤凰安全文化主题公园等。
值得一提的是,虽然属于旧规产品,但实际使用面积与新规产品不相上下,并非全靠飘窗“堆面积”,每一寸空间都能高效利用。
优势盘点:
1. 近地铁,交通便捷,半小时直达南山核心区。
2. 深中、深实验双名校分校,教育资源优质,学区一步到位。
3. 准现楼+大花园社区,品质生活触手可及。
4. 户型灵活,89㎡做4房2卫,空间利用极致,满足刚需和改善需求。
以上所展示的图文就是关于深圳光明凤凰城松茂御城楼盘最新介绍说明,看完以上内容,如果您对我们楼盘还有任何疑问的话,欢迎联系松茂御城楼盘开发商售楼处免费400热线电话:400-880-7297(已认证,中介请勿扰)进行咨询或者安排本楼盘我们楼盘现场销售人员在线为您一对一服务,现场销售人员会把楼盘的新资料、样板间图片视频、通过手机的方式发给您看、您不需要过来楼盘现场都能够了解个大概,还可以了解到本楼盘的优点缺点、房产政策、银行政策、积分入学、都给您讲解的明明白白。现场销售还可以为您对我们楼盘进行全面更详细的介绍,包含项目开盘详情、近期房价、楼层高低、户型朝向分析、最新折扣优惠活动等情况,而且还可以避免中介虚报价格,耽误您的时间和精力,中介所给的优惠我们全都可以给到,让您买的放心,住的舒心!买房是大事,记得及时联系我们。
免责声明:以上展示的深圳光明区松茂御城楼盘最新相关的图文资料可能有部分来自于互联网,最终信息以在营销中心现场签署的购房合同为准,如以上图片或者文字无意中侵犯某方权益的话,请及时联系我们将配合处理。
声明:本文由入驻焦点开放平台的作者撰写,除焦点官方账号外,观点仅代表作者本人,不代表焦点立场。
