敬请期待||深圳顶流【深圳湾澐玺】即将开放,深圳湾地王项目
扫描到手机,新闻随时看
扫一扫,用手机看文章
更加方便分享给朋友
近日,位于深圳湾(后海)的华润&中海“地王”正式更名,官宣备案名为“后海沄玺花园”。目前我们楼盘宣传效果图已经出炉。
与中信·信悦湾并列深圳今年最值得期待的顶豪项目。
根据规划,该项目除住宅外,还将建设商务公寓、商业等;将建设片区次地标,高度不低于200米!
最新消息:深圳湾备受瞩目的新豪宅 ——后海沄玺花园楼盘入市的最新消息来了,预计我们将于2025年国庆后开放展厅以及209-294两个户型异地样板间开放,最快2025年12 月开盘入市,如需了解更多详情欢迎咨询深圳澐玺花园开发商售楼部咨询/预约电话:400 811 3080(已认证)中介请勿扰。
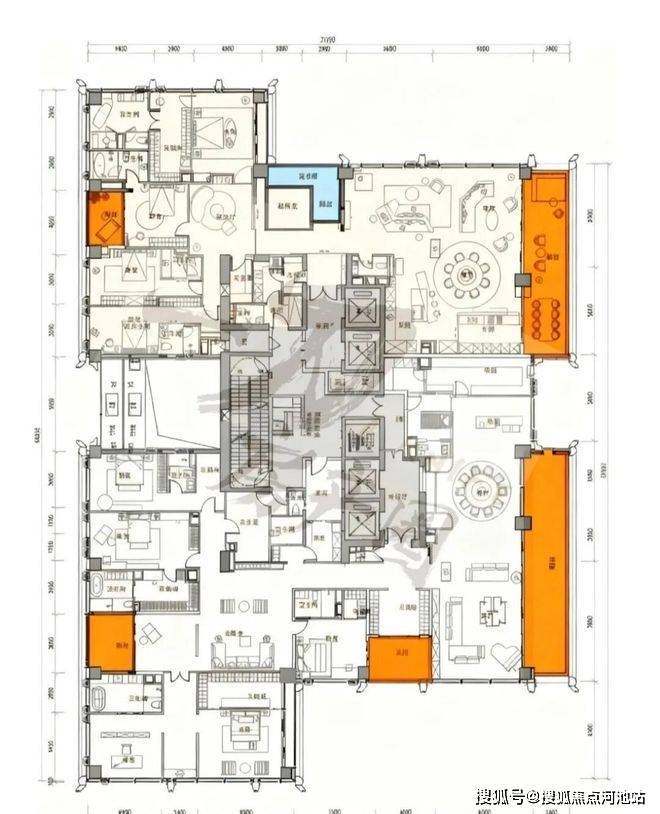
我们沄玺花园项目计划首推的是北地块 348户,面积段为约209-269-294-304-375-403-500-700-1100㎡,全部可以做到4️⃣房3️⃣卫 起步。
分为高低区设计:
· 低区5F起(150米以内)是约209-304㎡四房以上大户型;
· 高区42F起(150-200米)是约370-375-403㎡4+1房五卫+家庭厅+家政套间;
· 超高区58F起(200米以上)是约500-700㎡顶级大平层;
· 顶楼Penthouse约1050㎡顶奢大平层
项目共5栋楼其中4栋住宅1栋公寓,后海澐玺花园可售住宅货量约505套,首推北区2栋楼。
以错层分布,户型大致如下:
低区(5层起,150米以下):约209-304㎡,四房及以上大户型;
高区(42层起,150-200米):约370-403㎡,4+1房设计,配备家庭厅及家政套间;
超高区(58层,200米以上):约500-700㎡大平层;
顶楼复式:约1050㎡。
△北区
项目具体位于粤海街道后海总部基地内,登良路和后海滨路交汇处,与2号线登良站无缝衔接。
占地面积约3.85万㎡,总建面约26万㎡,其中住宅约17.7万㎡,商务公寓约7万㎡,商业约1万㎡。
其中本地块为独立占地的9班幼儿园,用地面积3000.07平方米,土地用途为二类居住用地,容积率≤0.97,规定建筑面积2900平方米。
住宅加商业用地用地面积35566.00平方米(其中建设用地面积31653.10平方米、道路用地面积 3912.90平方米),土地用途为二类居住用地+商业用地、城市道路用地。容积率≤8.22,规定建筑面积 260100平方米,包括:住宅176900平方米、商务公寓70000平方米(40000平方米允许分割转让, 30000平方米限整体转让)、商业10000平方米、文化活动室1000平方米、便民服务站400平方米、社区老年人日间照料中心750平方米、托育机构500平方米、物业服务用房550平方米。
建面198平起,预估均价15-16万左右,假如低楼层13.5万,预计2700多万起!
整体效果图看起来绝对高大上,逼格满满,看样子像中海操刀,另一个深湾玖序,也是最近豪宅新房流行的风格:公建化全玻璃幕墙,毕竟是核心 CBD,必须跟周围写字楼一样全部公建化外立面。
仔细看了下,可能跟深超总的中海深湾玖序列一样,应该没有外阳台,就是全景落地窗+内阳台设计,虽然当时深湾玖序这个设计也遭到了吐槽,胜在地段加上楼盘高端,去年开盘到目前开盘快一年时间了也基本快清盘了,那么更好的深圳湾地块。
据了解澐玺将严格按第4代住宅标准打造的项目,澐玺在空间利用上堪称 “极致”:每户配备 “空中庭院”,部分庭院面积超20㎡,实现 “推窗见海+私享绿植” 的双重体验;
以下为开发商建设的外立面实景图
沿登良路增设东西向连廊、将其定义为“文化运动轴”,以高线天街链接人才公园与深圳湾文化广场,构建15分钟步行生活圈,消解主干道对城市肌理的割裂,将住区接入深圳湾城市动脉。
以既有空中连廊系统为基底,向北延伸公共步道,贯通南北口袋公园。整合首层、二层及地下慢行系统,形成四维立体通廊,将住区纳入更广阔的城市公共网络。
摒弃传统豪宅的封闭围合模式,以“共生街区”重构社区边界。在安全与私密的同时,通过区分私密与开放、居住与公共的空间层次,建立一种高度渗透的公共系统。城市连廊与开放商业界面串联起街道、公园与步行系统,使社区主动生成一种面向城市的“生活前场”。
社区配套体系借由立体复合的策略,嵌入于架空层、避难层与连廊节点,以最小的指标占用容纳最大功能。将避难层改造为星空会所,架空层嵌入泳池、艺术工坊、全龄儿童区,形成一个向所有住户开放的共享生活网络。
“好房子”是优美的风景、生机的自然、舒适的生活、艺术与形式的完美结合。
看完以上图文介绍,您如果想要了解更多关于我们深圳后海沄玺花园楼盘最新消息,银行相关利率政策等情况的话,欢迎来电咨询后海沄玺花园开发商售楼处免费400咨询/预约热线电话:400-811-3080(已认证)中介勿扰。
温馨提示:因本项目营销中心参观样板间采取预约制,为不耽误您的行程,过来营销中心现场看房前请务必记得提前来电预约且现场验资,在此真诚感谢您对我们工作的支持和信赖,恭候您大驾光临。
免责声明:以上展示的关于后海沄玺花园楼盘最新相关的最新图文资料可能部分来自网络,具体细节以最终签署的购房合同为准,如无意存在侵犯某方权益请及时联系我们处理。
声明:本文由入驻焦点开放平台的作者撰写,除焦点官方账号外,观点仅代表作者本人,不代表焦点立场。
