【盛合天宸家园】大降价!单价5.75万、总价788万起,买宝安137平4房3卫,精装现房
扫描到手机,新闻随时看
扫一扫,用手机看文章
更加方便分享给朋友
下面是售楼处照片
如需了解本楼盘更多详情,欢迎来电咨询盛合天宸开发商售楼处免费400咨询/预约电话:400-880-7297(已认证)中介请勿扰,因近期参观的人员太多,本项目营销中心暂不接受临时到访,为不耽误您的行程,过来楼盘现场参观样板房请务必记得提前来电预约,预约看房的话最终房价还能更加优惠,最终价格包您满意!
一、项目概述
盛合天宸家园,一个由设计大师程绍正韬携手国企江苏华建共同打造的东方美学高品质住宅,坐落于宝安区航城街道,地处黄田路和航空路交汇处东北侧。这个项目占地面积约1.35万平方米,总建筑面积约7.46万平方米,由4栋住宅楼组成,总户数424套,以108-137平方米的四居室户型为主。其容积率仅为3.33,绿化率高达40%,充分保证了居住的舒适度和生态环境的优美。
二、盛合天宸家园周边配套
交通配套:盛合天宸家园交通便利,地铁1号线固戍站和在建的12号线西乡桃源站步行可达,公交站点密布,自驾出行也极为方便,紧邻宝安大道和107国道。
教育配套:周边教育资源丰富,小学学区为宝安区航城学校,初中学区涵盖航城学校和海湾学校,均具备优秀的师资力量和教学设施。
商业配套:项目自带200平米商业设施,周边有航城里购物中心等商业体,满足日常购物需求,同时通过地铁可快速到达多个大型购物中心。
生态配套:项目周边有在建的航城文体公园和著名的西湾红树林公园,为居民提供优美的生态环境和休闲场所。
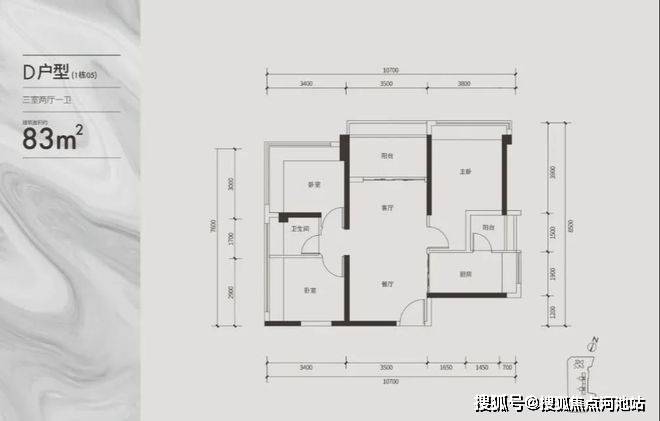
三、户型介绍
盛合天宸家园以108-137平方米的四居室户型为主,设计合理,空间宽敞。户型方正,南北通透,采光良好。每个户型都充分考虑了家庭成员的生活需求,设置了多个功能区,包括客厅、餐厅、卧室、书房、厨房和卫生间等,为居民提供了一个温馨舒适的居住环境。
四、优缺点分析
优点:
地理位置优越:位于宝安区航城街道,紧邻广深公路,交通便利。虽远离地铁站步行距离,但公交、自驾便捷。
配套设施完善:自带200平米商业,周边有航城里购物中心等,满足日常需求。教育资源丰富,提供多样化选择。
生态环境优美:周边有航城文体公园(在建)和西湾红树林公园等,提供良好生态环境和休闲场所。
品质住宅:现房销售,购房者可直观了解房屋质量和装修情况。由知名开发商打造,品质有保障。
看完以上介绍,如需了解更多关于我们深圳宝安盛合天宸家园楼盘最新消息、剩余房源以及楼层、这几天房价优惠活动、在卖的户型、限购政策、房贷相关问题等情况,欢迎来电咨询盛合天宸开发商售楼处全国免费400咨询/预约电话:400 880 7297(已认证)中介请勿扰。
温馨提示:因近期本项目售楼中心来访的看房客户特别多,过来营销中心参观样板间采取预约制,为不耽误您的行程,过来营销中心现场看房请务必记得提前拨打售楼处400电话来电进行预约一下,预约看房价格还可以享受更多开发商内部优惠,名额有限千万不要错过,感谢您对我们工作的支持和配合,在此恭候您大驾光临实地品鉴。
免责声明:以上展示的关于盛合天宸家园楼盘最新图文资料可能有部分来自网络,一切信息以最终在现场签署的购房合同为准,如图文内容无意中侵犯某方权益的话,请及时联系我们将配合处理。
声明:本文由入驻焦点开放平台的作者撰写,除焦点官方账号外,观点仅代表作者本人,不代表焦点立场。
