深圳【中信城开红树湾】福田绝无仅有的标准 海景住宅
扫描到手机,新闻随时看
扫一扫,用手机看文章
更加方便分享给朋友
中信城开·红树湾位于深圳市福田保税区红花道与香樟道交汇处,毗邻福田红树林公园。总建筑面积66748.02㎡;计容积率建筑面积44638.62㎡;不计容积率建筑面积22109.4㎡;含商品房373户,安居房24户;以小户型为主,梯户比有2梯2户、2梯3户。
售楼处实景图欣赏:
【项目基本信息】
【项目名称】:中信城开·红树湾
【建筑面积】:约32000㎡
【占地面积】:约9467平米
【 总层高 】:15层
【 梯户比 】:2梯2户/3户(亮点)
【可售房源】:317套
【户型面积】:59-63-79-93-119-143平,1房-4房
【车位数量】:340个
【产权年限】:70年
【项目地址】:福田区红树林公园东侧红花道与香樟道交汇处
中信城开红树湾开发商售楼处咨询/预约热线:400-811-3080(中介勿扰)
红树湾,位于红树湾生态公园之畔,距离公园仅一河之隔,坐拥深圳红树湾臻稀的红树林自然资源,拥享富氧含量极高的优渥生态环境,随享丰富多彩的生态人文活动。


| 效果图,仅供参考
深圳湾际18公里总部经济生态智富圈C位
高端人居林立的深圳湾际之芯
国家科学中心启动区深港科创合作区之核
深圳40余年精粹资源厚积荟萃处
中信又一湾区作品中信城开红树湾
澎湃焕新美好,持续热销中

地铁:
三号延长线福保站去年已经开通,距离1.3公里。
学校:
周边配套小学是福苑小学(公办),初中是福田外国语中学(原名福田保税区实验学校);幼儿园则在距离项目约350米处有福田第八幼儿园。
商超:楼下自带商业,目前距离比较近的益田中心广场,中港城的CTMALL。
医院:项目距离最近的是福田妇幼保健院。
中信城开红树湾,低密纯居,天赋藏品。项目以实力央企,奢藏品质,因地制宜精研人居奢适尺度与艺术生活美学;甄选全球高端尚品,创新规划6大奢适人居体系,实现2梯2-3户奢适梯户比,以纯粹小高层奢适美好,盛载深港双城全球精英雅境人生。

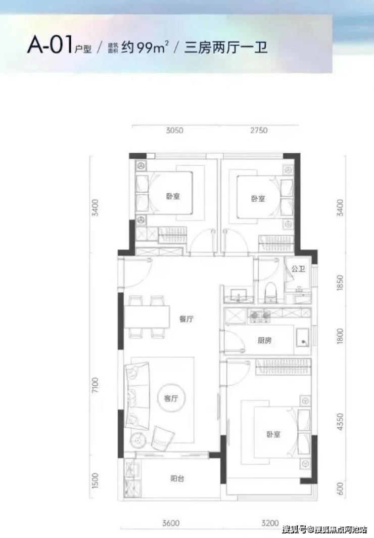
户型鉴赏
红树湾主推户型为79-143㎡单,共397套房源,其中小户型1-2房主要分布在H座、J座,从户型分布上来看,主力户型为102-119㎡的3房户型,135-143㎡的4房户型和59㎡的1房户型较少。梯户比方面,多为2梯2户、2梯3户,H座多为小户型则是2梯6户。





项目户型面积段跨度大、选择空间大,刚需和改善型购房者都可以关注。
时代澎湃处,中信城开
以央企实力与社会担当焕新美好
继深圳中信红树湾、珠海中信红树湾后的
又一湾区作品,中信城开红树湾即将入市
其以建面约80-120㎡湾景美宅
焕新湾际美好生活,献礼全球精英


中信城开红树湾开发商售楼处咨询/预约专线️ 400-811-3080(中介勿扰)
本楼盘营销中心暂不接受临时到访,过来看房需提前来电预约!
我们将安排楼盘内场销售人员接待, 全程给您更贴心的购房体验!
免责声明🔉:
以上所发布的楼盘相关信息仅供参考,所有图文资料及说明请以最终批文及双方在楼盘现场签署的买卖合同为准;本图文内容如无意中侵犯某方权益,请联系我们将会及时处理。
声明:本文由入驻焦点开放平台的作者撰写,除焦点官方账号外,观点仅代表作者本人,不代表焦点立场。
