深圳楼市新政罗湖区不限购后《京基璟誉府》热销27套,总价仅255万起买罗湖区
扫描到手机,新闻随时看
扫一扫,用手机看文章
更加方便分享给朋友
深圳罗湖【京基天韵府】已全民开盘,参观样板间需提前来电进行预约,本次开盘将推出1栋B座,244套房源。建筑面积有70-85㎡的2房1卫,105㎡的3房2卫,120-150-180㎡的4房2卫户型,备案价6.6万/㎡,毛坯备案交楼送装修,京基天韵府计划2025年7月31日交房。如需了解更多详情,欢迎咨询京基天韵府开发商售楼处咨询/预约电话:400-880-7297(已认证),过来我们营销中心看房提前来电预约,而且最终的价格还能享受更多优惠。
天韵府项目位于深圳罗湖区东湖街道,西临东晓路,北临东湖路,东临丹平快速路,距离5号线“布心站”300米,7号线“太安站”700米范围内,属于“双地铁”物业。
【备案均价6.6万/平米】拨打售楼处400热线预约看房价格还可以更优惠!
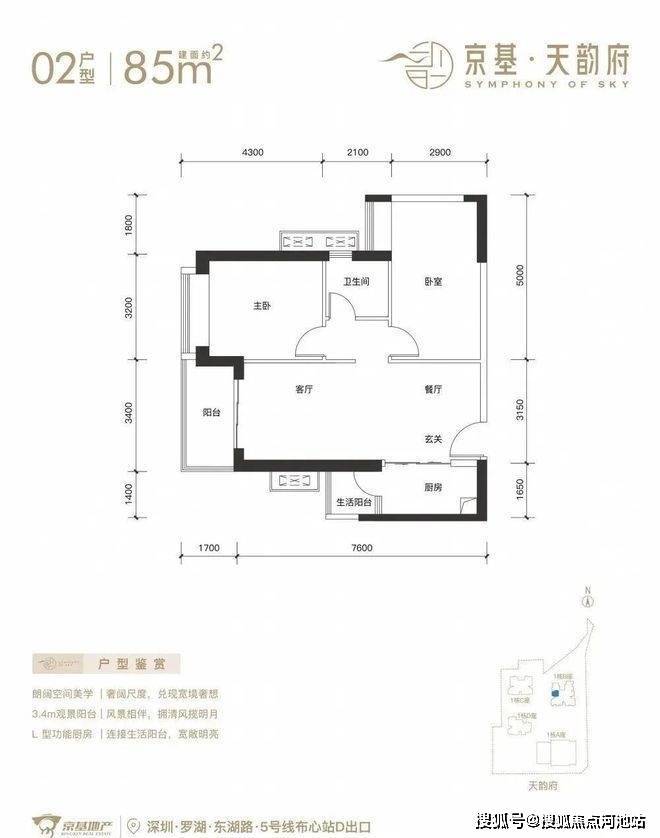
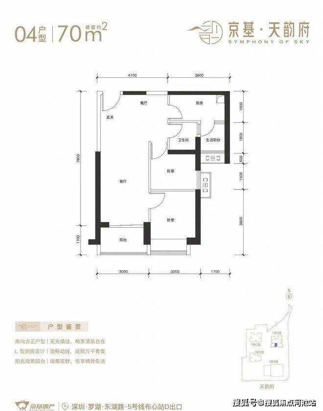
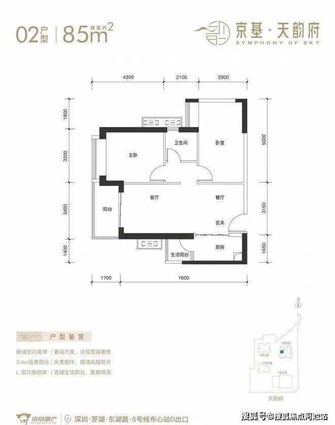
☀70㎡454-486万2房56套
☀85㎡509-534万2房47套
☀85㎡520-594万2房48套
☀105㎡653-689万3房36套
☀120㎡747-782万3+1房29套
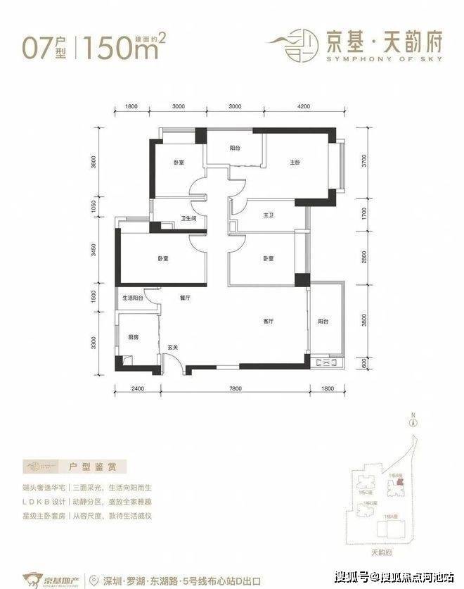
☀150㎡964-1120万4+1房19套
☀180㎡1202-1386万4+1房9套
项目周边配套:
交通配套:
地铁:双地铁口——距离地铁5号线布心站约250米,距离地铁5、7号线太安站约500米,便捷换乘1/2/9号线。
商业配套:约50万m²高端商圈航母,奢享高阶丰盛生活。
项目自带:约1.6万m²商业
1KM范围内:约12万m²深圳天河城购物中心
2KM范围内:约10万㎡京基KKTIME、约6万㎡喜荟城购物中心、约15万㎡华润万象汇、约6万㎡IBCMALL等商圈。
教育配套:3所省一级学府为邻(东晓小学、布心小学、布心中学),10所学校环伺,项目(布心+水围)配建两所幼儿园(一所9班幼儿园,一所18班幼儿园),优质教育氛围,孩子自此拥抱未来。
以“东湖之畔,滟潋波光”为设计理念,选用节能高档的LOW-E中空玻璃,配以历久弥新的铝板线条勾勒外立面,提升建筑的气质与格调,勾勒城市美学范本。
星级酒店式艺术大堂,精研尺度、比例、制式、材质,匠筑威仪耀眼门庭。
以五重全时全龄社交空间(会客广场、睦邻小院、童梦乐园、星空泳池、拾光休闲)营造极致归家体验,礼遇非凡生活。
京基集团匠心打造约84万㎡全景山水人文大城——京基·天韵府,集湖山雅宅、金粹美寓、商务峯面、商业集群等多元业态于一体,兑现城市未来生活向往。
项目规划总平面图:
约35-78㎡全能空间
约4m层高,空间自由组合,可打造创意工作室、珠宝设计空间、红人直播间等,全新商务生活方式,满足个性化使用需求。
约300-343㎡总裁公馆
带阳台、通燃气,享一线湖山景观,可做商务会所、私人会客厅、收藏室等专属空间,造就都会大城资产。
看完以上介绍,如需了解更多关于我们罗湖京基楼盘最新销售情况、公寓和住宅剩余房源、折扣优惠活动、近期房价走势等情况,欢迎咨询深圳罗湖京基天韵府开发商售楼处咨询/预约电话:400-880-7297(已认证)中介勿扰。
温馨提示:因我们项目营销中心参观样板间采取预约制,为不耽误您的行程,过来营销中心现场看房请务必记得提前来电进行预约,预约看房的话享受的优惠折扣比直接上门更多,最终成交价格也会更优惠更划算,在此真诚感谢您对我们工作的支持和信赖,恭候您大驾光临。
免责声明:以上展示的图文资料可能部分来自网络,具体细节以最终签署的购房合同为准,如无意存在侵犯某方权益请及时联系我们,将配合处理。
声明:本文由入驻焦点开放平台的作者撰写,除焦点官方账号外,观点仅代表作者本人,不代表焦点立场。
