【金众云山海】 深圳南山约116-174㎡山海大宅,清盘特惠! 蛇口赤湾高端品质改善
扫描到手机,新闻随时看
扫一扫,用手机看文章
更加方便分享给朋友
金众云山海位于深圳南山赤湾片区,坐落于蛇口半岛之上。赤湾西邻前海、东接太子湾、后海,与三山一海为邻,就像山海之间的秘境。
东区(交楼时间2026年12月31日精装交房)
折后总价
1-1702,116平,830万
1-303,116平,770万
1-703,116平,806万
1-4103,116平,862万
3-4602,116平,870万
3-3503,116平,848万
3-1301,155平,1234万
西区(交房时间2026年6月30日精装交楼)
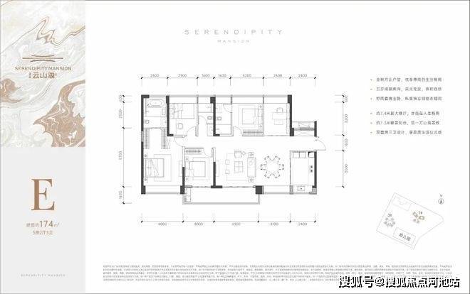
1-202,174平,1296万
1-503,129平,1017万
1-1504,129平,1016万
如需了解本楼盘更多详情,欢迎来电咨询深圳金众云山海公馆开发商售楼处免费400咨询/预约电话:400-800-9113(已认证)中介请勿扰,因近期参观的人员太多,本项目营销中心暂不接受临时到访,为不耽误您的行程,过来楼盘现场参观样板房请务必记得提前来电预约,预约看房的话最终房价还能更加优惠,最终价格包您满意!
下面是我们楼盘营销中心实拍照片:
项目介绍:
其中公馆系是金众TOP级产品,不论项目选址、建筑选材、建造工艺等都是头部水准。
作为金众第三座TOP级公馆系产品,金众·云山海公馆整体采用中式与现代相结合的风格,融合“山林、扬帆、峰汇”元素,兼具错动和韵律感的建筑设计,兼具窄边框立柱、系统门窗配备,从材质和工艺上匠心雕琢,营造更舒适的居住空间。步入端庄的现代中式入户大门,威仪门庭的挑高尺度彰显业主出入气度,营造归家第一步的仪式感。
院落式布局的园林,以“礼序迎宾、移步异景、和光庭越、拾趣时光”四重归家礼序,营造东方特有的气韵,让每一步都有不同归家风景。园中还有精选的花木植被演绎着不同的四季风情,打造全龄皆享的社区生活第二中心。
金众云山海公馆总建面约19.5万m²,包括住宅、商业(800m²)和幼儿园等配套用房。一共5栋楼,分为东西区,首推的是西区(1栋+3栋)334套住宅,其中1栋37层,2梯4户,3栋36层,3梯6户,2026年6月底精装修交楼。
金众云山海公馆项目规划平面图:
金众云山海公馆户型图
看完以上介绍,如需了解更多关于我们深圳南山金众云山海公馆楼盘最新消息、剩余房源以及楼层、这几天房价优惠活动、在卖的户型、限购政策、房贷相关问题等情况,欢迎来电咨询金众云山海公馆楼盘开发商售楼处全国免费400咨询/预约电话:400 800 9113(已认证)中介请勿扰。
温馨提示:因近期本项目售楼中心来访的看房客户特别多,过来营销中心参观样板间采取预约制,为不耽误您的行程,过来营销中心现场看房请务必记得提前拨打售楼处400电话来电进行预约一下,预约看房价格还可以享受更多开发商内部优惠,名额有限千万不要错过,感谢您对我们工作的支持和配合,在此恭候您大驾光临实地品鉴。
免责声明:以上展示的关于深圳南山蛇口金众云山海公馆楼盘最新图文资料可能有部分来自网络,一切信息以最终在现场签署的购房合同为准,如图文内容无意中侵犯某方权益的话,请及时联系我们将配合处理。
声明:本文由入驻焦点开放平台的作者撰写,除焦点官方账号外,观点仅代表作者本人,不代表焦点立场。
