深圳合泰·嘉悦公馆楼盘优缺点全剖析!看完合泰·嘉悦公馆介绍你就明白了!
扫描到手机,新闻随时看
扫一扫,用手机看文章
更加方便分享给朋友
最新消息:深圳盐田沙头角【合泰·嘉悦公馆】楼盘计划将在2025年8月份开盘入市,本次开盘推出1栋174套房源,面积有72-81㎡的3房1卫,88㎡的3房2卫,99㎡的4房2卫户型,价格方面可以参考附近的半山悦海备案均价5.2万/㎡,不过按照当下的市场应该在4万多的开盘均价,期房带精装交付,具体交楼时间待定。
合泰·嘉悦公馆是盐田区沙头角板块仅有的在售新盘,并且还是新规楼盘,双地铁口物业,配套的是深高级盐田学校,背靠梧桐山,远眺沙头角海。
如需了解本楼盘更多详情,欢迎来电咨询深圳盐田合泰嘉悦公馆开发商售楼处免费400咨询/预约电话:400-880-7297(已认证)中介请勿扰,因近期参观的人员太多,本项目营销中心暂不接受临时到访,为不耽误您的行程,过来楼盘现场参观样板房请务必记得提前来电预约,预约看房的话最终房价还能更加优惠,最终价格包您满意!
下面是售楼处实拍照片:
航拍示意图
项目介绍
合泰嘉悦公馆,由深圳盐田本土开发商,合泰集团打造,分南北区2个地块打造,总占地面积约0.61万㎡,总建筑面积约5万㎡,共由2栋总高31-33层的住宅组成,另外规划1栋写字楼17层。
合泰嘉悦公馆本次推售的是南地块,总占地面积约0.25万㎡,总建筑面积约2.25万㎡,计容建筑面积约1.69万㎡,容积率6.7,绿化率30%,共由1栋31层高的住宅组成,总规划174户,全部都是商品房,3梯6户设计,地下室有3层,规划117个车位,车位比1:0.67。
还有北地块:1栋17层办公楼,以及1栋住宅33层这栋住宅是含回迁房、保障房及公配设施(幼儿园、社区体育场地等)
售楼处实景图
项目基础数据
【开发商】深圳市深供金广嘉房地产发展有限公司
【占地面积】约0.25万㎡
【建筑面积】约2.25万㎡
【总户数】174户
【户型面积】72-81-88-99㎡3-4房
【停车位】117个(车位比1:0.67)
【开发商电话】400 880 7297
【物业及物业费】合泰自有物业,--元/㎡/月
【绿化率】30%
【容积率】6.7
【总楼栋及总层高】1栋,31层
【梯户比】3梯6户
【交楼时间】待定,精装修交付
【产权年限】70年(2024-2094年)
【项目位置】深圳市盐田区沙头角(地铁8号线沙头角站C口700米)
下面是航拍照片:
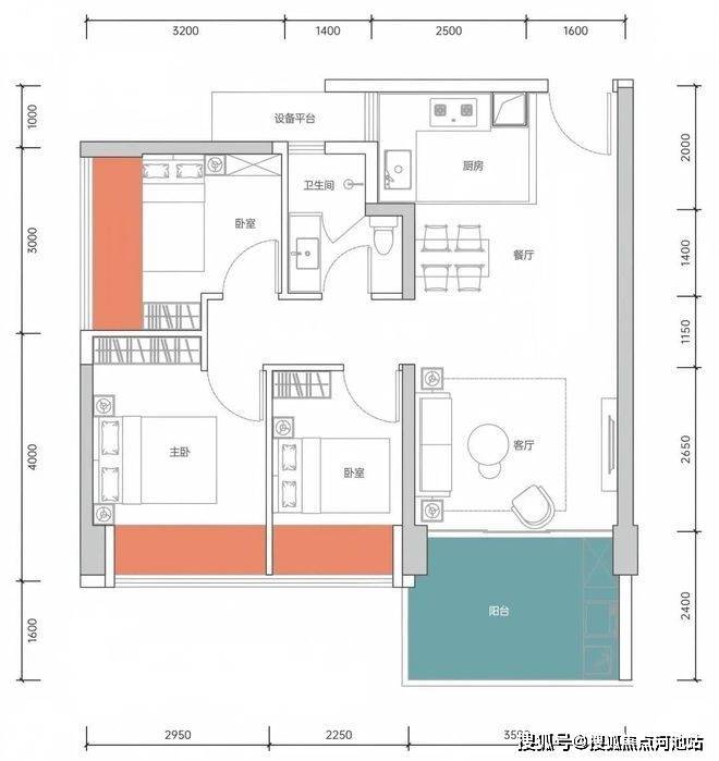
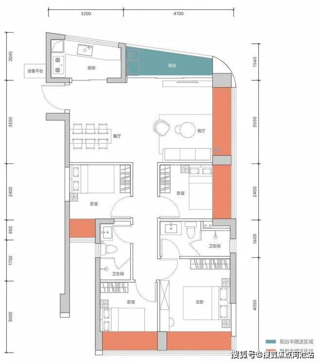
合泰·嘉悦公馆户型介绍
72㎡的3房2厅1卫,设计的是竖厅格局,客厅3.5米开间,LDKB一体化设计,动静分区,3个卧室分别做到了主卧11.28㎡/次卧8.57㎡/次卧7.76㎡(包含墙体飘窗),客厅出3.78㎡的大阳台,U型厨房5.22平,卫生间干湿分离,得房率约86-90%(包含赠送),正北朝向。
81㎡的3房2厅1卫,设计的是经典竖厅格局,客厅3.5米开间,LDKB一体化设计,三开间朝南,动静分区,3个卧室分别做到了主卧11.29㎡/次卧8.97㎡/次卧7.76㎡(包含墙体飘窗),客厅出8.4㎡的大阳台,U型厨房5平,卫生间干湿分离,得房率约86-90%(包含赠送),正南朝向。
88㎡的3房2厅2卫,设计的是经典竖厅格局,客厅3.6米开间,LDKB一体化设计,三开间朝南,动静分区,3个卧室分别做到了主卧14.26㎡/次卧7.81㎡/次卧5.83㎡(包含墙体飘窗),客厅出8.67㎡的大阳台,U型厨房4.95平,公卫三段式干湿分离,得房率约86-90%(包含赠送),正南朝向。
99㎡的4房2厅2卫,设计的是竖厅南北通透格局,客厅3.55米开间,LDKB一体化设计,动静分区,4个卧室分别做到了主卧12.96㎡/次卧7.93㎡/次卧7.7㎡/次卧7.68㎡(包含墙体飘窗),客厅出7.3㎡的阳台,U型厨房6.54平,卫生间干湿分离,得房率约86-90%(包含赠送),阳台主朝北向。
合泰·嘉悦公馆周边学校
项目自带公立幼儿园,周边林立深圳高级中学盐田学校、田东中学、林园小学等优质学府。
其中,项目西侧紧邻的深圳高级中学盐田学校(九年一贯制),该校由盐田区委区政府与深圳市高级中学联手打造,总建筑面积51715.36平方米,办学规模为54个教学班。学校配备独立体育馆(恒温游泳池、网球场和篮球场)及物理、化学、生物、信息、科学、舞蹈、合唱、美术等高配置功能室,融合深高GLOBE课程体系,开展3F荣誉课程、科创课程等特色教育。
东侧规划新建54班九年制学校(山海学校),采用"小班化+智慧教育"模式,预计2026年投入使用。北地块自建12班幼儿园,满足0-18岁全龄段教育需求。周边还有林园小学(区属公办)、田心小学(排名第3的优质小学)、田东中学(省一级初中)等教育资源,形成"三校环绕"的教育矩阵。盐田区正积极推进教育现代化,2023年新增学前、义务教育学位不少于1900个,为居民子女提供良好的学习环境。
(说明:本项目的学区划分和学位申请以教育局当年公布的招生政策为准)
看完以上关于深圳合泰嘉悦公馆楼盘相关的图文介绍,如果您对我们楼盘感兴趣的话,建议您可以联系我们合泰嘉悦公馆开发商售楼处全国免费400热线电话:400-880-7297(已认证)在线进行免费咨询或对接楼盘现场销售人员(中介请勿扰),我们可以为您安排本楼盘现场销售一对一在线服务,比如说把楼盘的最新图文资料、样板房视频、通过手机的方式发给您看一看、您不需要立即过来楼盘现场就能够对我们楼盘熟悉个大概,还可以告诉您关于我们合泰嘉悦公馆楼盘对比周边楼盘的优点缺点、楼盘这几天最新的优惠政策、银行政策以及LPR利率、积分入学,等相关购房方面的问题都给你讲解的明明白白,让您买房不踩坑,毕竟买房是大事。找现场销售咨询并不需要额外花钱,反而更省钱,而且可以避免一些中介虚报价格浪费你宝贵的时间和精力,我们会把额外认购优惠、按时签约优惠、房贷优惠、一次性付款的优惠都告诉您,希望您能通过这个平台,全面了解我们的楼盘信息并顺利、开心的完成购房流程。
免责声明:以上展示的关于深圳盐田合泰嘉悦公馆楼盘最新相关图文资料可能有部分来自于网络,一切信息以最终在在我们楼盘现场签署的购房合同为准,如图文内容可能无意中侵犯某方权益的话,请及时联系我们将配合处理。
声明:本文由入驻焦点开放平台的作者撰写,除焦点官方账号外,观点仅代表作者本人,不代表焦点立场。
