深圳福田住宅【加福华尔登府邸】239 米地标准现楼,三地铁 + 双名校 + 环幕景观,今年买明年住
扫描到手机,新闻随时看
扫一扫,用手机看文章
更加方便分享给朋友
加福华尔登府邸,位于深圳市福田CBD,地处深圳市核心位置,是集行政、文化、信息、国际展览、金融商务等于一体的综合服务中心,占据着城市顶级资源,拥有得天独厚的区位优势!
加福华尔登府邸项目位于福田南石厦南片区,距离地铁石厦站和益田站均在500米以内。小区已经入伙近两年,入住率非常高,都是精装修交付。
目前剩余仅10余套尾盘,价钱如下:
72平两房,560万(顶楼),其他楼层600-620万;
74平两房,620万(顶楼),其他楼层620-638万;
82平三房,总价669万,顶楼单位;
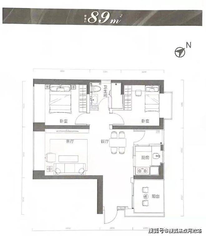
88平三房,总价799万,30F;
138平四房,目前只有天地楼层,总价1060/1150万。
如需了解本楼盘更多详情,欢迎来电咨询深圳福田加福华尔登府邸开发商售楼处免费400咨询/预约电话:400-811-3080(已认证)中介请勿扰,因近期参观的人员太多,本项目营销中心暂不接受临时到访,为不耽误您的行程,过来楼盘现场参观样板房请务必记得提前来电预约,预约看房的话最终房价还能更加优惠,最终价格包您满意!
下面是我们楼盘营销中心实拍照片:
项目实景图欣赏
基础信息
产权年限:住宅,70年
产权年限:1998年~2068年
交房时间:2023年8月31日
交房标准:毛坯
总户数:462户
梯户比:6梯8户
楼层:地上67层,地下3层
占地面积:7602平方米
建筑面积:51581平方米
总楼层:67楼
层高:3.25米
5楼起卖(主力户型85-86-89-125平2-3房)
开发商电话:4008113080
开发商:加福投资(深圳)有限公司
物业费:8.9元/平方米/月
物业公司:华尔登物业管理(深圳)有限公司
楼层总高239米
车位数:500个
车位比:1:1.1
学校:福田外国语南校区小学初中
加福华尔登府邸户型图:
交通配套
项目与地铁4号线的交汇站福田口岸站(距离约380米)无缝接驳,同时还临近地铁7号线福民站,可轻松换乘多条地铁,畅通全城。
商业配套
接驳地铁|奢享一站式商业空间
接驳地铁商业,共同打造高品质、高标准的一站式繁华商业空间
尽享福田CBD繁华版图,拥揽卓悦中心、卓越世纪中心、深圳中心城广场、COCOPAPK、皇庭广场等超级SHOPPING MALL。深圳的繁华商业步行街—水围文化商业街为邻,于传承老店里享受繁华慢时光。
教育配套
项目周边教育资源非常丰富,据不完全统计项目1.5公里范围内学校不少于17所,其中像福田保税区外国语学校、福田外国语学校南校区、荔园外国语小学水围小学这种知名度和口碑度较高的学校距离项目也都非常近。
医疗配套
项目距离最近的是福田妇幼保健院,开车15-20分钟可达北京大学深圳医院,福田人民医院,深圳儿童医院,深圳市福田区中医院,中山大学附属第八医院,福田第二人民医院,深圳市眼科医院,香港大学深圳。
休闲配套
周边环绕超500公顷的360度环幕景观,北看福田CBD繁华城市景观、南看香港米浦,西看深圳湾、东看罗湖城市景观,集萃深圳中心最高端丰盛的景观资源,创造完美的城市生活平台。
楼盘优势
1、优越地理位置:项目位于福田CBD核心区域,紧邻福田口岸,享有三地铁(4号线、7号线、10号线)及双口岸的便捷交通网络,出行极为便利。
2、丰富教育资源
:周边有福田外国语南校区等优质学校,为九年制公立学校,教学质量上乘,为孩子提供良好教育环境。
3、高品质建筑与设计:项目设计取意于“鹏城”的“鲲鹏”之态,外观典雅,采用国际品牌用材,配备高端硬件设施,如日本原装进口三菱高速电梯等。
4、专业物业服务
:华尔登物业提供服务,秉承五星级酒店专业、规范的服务体系,打造24小时管家式服务。
看完以上介绍,如需了解更多关于我们深圳福田加福华尔登府邸楼盘最新消息、剩余房源以及楼层、这几天房价优惠活动、在卖的户型、限购政策、房贷相关问题等情况,欢迎来电咨询加福华尔登府邸开发商售楼处全国免费400咨询/预约电话:400-811-3080(已认证)中介请勿扰。
温馨提示:因近期本项目参观样板间采取预约制,为不耽误您的行程,过来营销中心现场看房请务必记得提前拨打售楼处400电话来电进行预约一下,预约看房价格还可以享受更多开发商内部优惠,名额有限千万不要错过,感谢您对我们工作的支持和配合,在此恭候您大驾光临实地品鉴。
免责声明:以上展示的关于深圳福田加福华尔登府邸楼盘最新图文资料可能有部分来自网络,一切信息以最终在现场签署的购房合同为准,如图文内容无意中侵犯某方权益的话,请及时联系我们将配合处理。
声明:本文由入驻焦点开放平台的作者撰写,除焦点官方账号外,观点仅代表作者本人,不代表焦点立场。
