官网【光明】深业云筑二期,总价227万买89平3房现楼,正在清盘中!
扫描到手机,新闻随时看
扫一扫,用手机看文章
更加方便分享给朋友
好消息:光明楼市从未有过的劲爆福利来了!公明核心大盘深业云筑二期,正在清盘中——折后238万起建面约89㎡三房,总价330万就能拿下大四房两卫,单价低至2.7万起/㎡!更关键的是,项目是实打实的现房,即买即住即办证,还集齐了“地铁+学区+商业”买房三宝,用坪山的价格就能上车光明,这样的机会真的转瞬即逝!
目前我们深业云筑在售建面约89-143㎡多元化户型均有楼层可选!
如需了解本楼盘更多详情,欢迎来电咨询深圳光明深业云筑楼盘开发商售楼处免费400咨询/预约电话:400-880-7297(官方发布)中介请勿扰,因近期参观的人员太多,本项目营销中心暂不接受临时到访,为不耽误您的行程,过来楼盘现场参观样板房请务必记得提前来电预约,预约看房的话最终房价还能更加优惠,最终价格包您满意!
下面是我们楼盘营销中心实拍照片:
项目基础数据:
【开发商】深圳市明宏地产开发有限公司
【规模】本期占地约30181.03㎡,建面约195374.43㎡
【产品】建面约87-143㎡
【装修】毛坯
【层数】31层 / 32层
【梯户比】2梯4户 / 3梯6户
【开发商电话】400 880 7297
【容积率】一期4.33
【绿化率】约40%
【车位数】1520个
【物业费】住宅:3.5元/㎡/月
【物业公司】深业集团物业管理有限公司
【项目地址】深圳·光明区·教科院实验小学(光明校区)
深业云筑(原:深业信宏城)位于光明新区公明街道,南临公明南环大道,更新单元用地面积90417.5㎡,拆除用地面积87684.1㎡,开发建设用地面积48680.3㎡(含划入零星用地2733.4㎡)。
深业云筑这个楼盘究竟值不值得买?
一、核心王炸:240万起配齐买房三宝,光明性价比天花板
对于刚需购房者来说,“地铁通勤、学区保障、商业便利”是买房的核心诉求,而深业云筑二期直接把这三宝配齐,还给出了击穿底线的价格,性价比堪称光明楼市天花板:
1. 价格暴击:直降百万,坪山价买光明
项目2023年4月取证入市时,备案均价4.66万/㎡,89㎡三房总价要364万起;如今清盘钜惠,折后单价仅2.7万起,89㎡三房240万起就能入手,对比首开业主直接省了100万+!更惊喜的是,330万就能挑到不错的112㎡大四房两卫,143㎡五房也有诚意折扣,这样的价格放在光明核心区,几乎找不到对手,妥妥的“坪山价格买光明”。
2. 学区护航:家门口就是教科院附属学校,目送式教育
教育配套是项目的一大王牌,楼下就是深圳市教科院实验小学(光明),真正实现目送式教育,不用费心接送。根据2024年光明区教育局最新学区划分,项目小学学区涵盖该校及秋硕小学、龙豪小学等优质院校,初中学区则有光明第二中学、光明区实验学校初中部可选。其中,教科院实验小学2024年第4类录取积分仅62.25分,只要是深圳户籍+学区购房,就能稳稳保障入学资格。此外,项目1期还自带12班幼儿园,全龄教育需求一站式覆盖。
3. 地铁通勤:13号线800米直达,30分钟贯通南山
交通出行极为便捷,项目距离在建的13号线新庄站(原公明南站)仅800米左右,步行10分钟即可抵达。作为光明的“生命线”,13号线是深圳3条快线之一,纵贯宝安、光明、南山三大区域,未来开通后可直达南山科技园、后海总部基地,30分钟就能贯通南山核心通勤圈。同时,项目临近地铁6号线公明广场站(1.1公里),周边还有龙大、南光两条免费高速无缝衔接福田、南山,自驾通勤同样高效。更贴心的是,项目还规划有公交首末站,可快速接驳地铁站,解决最后一公里出行难题。
4. 商业繁华:1.1公里直达大仟里,一站式消费
商业配套成熟完善,项目自带社区底商,日常买菜、购物、吃饭等基础需求在家门口就能解决。距离公明最大的一站式大型购物中心——光明大仟里仅1.1公里,步行或骑行即可到达,这也是光明人消费的必选打卡地;1.6公里范围内还有天虹商场、百佳华商场等商业体,吃喝玩乐购全满足,繁华生活触手可及。
二、国企现房保障:即买即住,所见即所得
在期房风险频发的当下,深业云筑二期的现房属性的更是给购房者吃了一颗定心丸。项目由深圳国企深业集团打造,43载国企匠心积淀,品质有口皆碑。项目2023年12月底就已正式交房,目前是纯现房销售,简装交付,真正实现“即买即住即办证”。
购房者可以直接实地考察房源,买哪套看哪套,房屋的采光、通风、户型格局、社区环境都能亲眼验证,所见即所得,彻底告别烂尾、延期交付的风险。同时,现房交付还能节省1-2年的月供+房租双重支出,对于刚需家庭来说,大大减轻了经济压力。
三、产品力在线:纯居社区+高得房率,居住舒适度拉满
作为32万㎡的大城社区,深业云筑二期的产品设计处处彰显宜居属性,细节拉满:
纯居属性纯粹:项目总规划795户,全部都是商品房,没有安居房、人才房、公租房、回迁房掺杂,居住人群圈层统一,社区氛围更和谐;
高得房率惊喜:不含赠送得房率就高达80%左右,加上赠送后更是达到90%,远超市面上多数新盘,同等面积下空间更宽敞实用;
社区环境优越:项目容积率4.84,在光明32-33层的高层住宅中属于较低水平,绿化率达40.27%,社区以“7”字型排布,阔绰楼间距保证采光通风,还打造了约1.21万㎡抬高式复合园林,休闲空间充足;
车位充足无忧:规划停车位949个,车位占比约1:1.2,彻底告别“回家找车位”的烦恼;部分楼栋采用2梯4户设计,出行不拥挤,居住舒适度更高;
户型多元化:主推89-143㎡三至五房,适配刚需到改善的全周期家庭需求,户型设计实用通透:
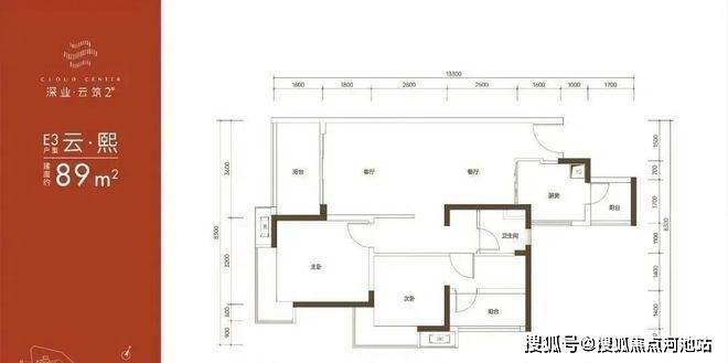
深业云筑项目规划平面图及户型图
89㎡的3房2厅1卫,E2户型,设计的是竖厅格局,客厅3.6米开间,LDKB一体化设计,3个卧室分别做到了主卧13.5㎡/次卧9.54㎡/次卧8.1㎡(含墙体飘窗),L型厨房还带1个小生活阳台,卫生间三段式分离,得房率:79.89%(不含赠送),东南/西南或正南朝向。
89㎡的3房2厅1卫,E3户型,仅4栋/5栋A单元/7栋的03号房才有,设计的是竖厅格局,客厅3.6米开间,LDKB一体化设计,3个卧室分别做到了主卧13.3㎡/次卧9.34㎡/次卧8.4㎡(含墙体飘窗),二字型厨房还带1个小生活阳台,卫生间三段式分离,得房率:79.89%(不含赠送),西南朝向。
112㎡的4房2厅2卫,C1户型,仅4栋/5栋A单元/7栋的05号房才有,设计的是竖厅南北通透格局,客厅3.9米开间,餐客厅一体化设计,4个卧室分别做到了主卧22.44㎡/次卧9.9㎡/次卧8.95㎡/次卧7.85㎡(含墙体飘窗),U型厨房还带1个小生活阳台,卫生间干湿分离,得房率:79.88%(不含赠送),阳台主朝西南向。
112㎡的4房2厅2卫,C2户型,仅5栋A单元/7栋的06号房才有,设计的是竖厅南北通透格局,客厅3.9米开间,餐客厅一体化设计,4个卧室分别做到了主卧16.9㎡/次卧10.73㎡/次卧10.5㎡/次卧7.85㎡(含墙体飘窗),U型厨房,卫生间干湿分离,得房率:79.89%(不含赠送),阳台主朝东南向。
128㎡的4房2厅2卫,B1户型,仅5栋B单元的03号房才有,设计的是竖厅格局,南北通透双阳台,客厅4.2米开间,餐客厅一体化设计,4个卧室分别做到了主卧19.44㎡/次卧12.3㎡/次卧12㎡/次卧10.5㎡(含墙体飘窗),U型厨房,卫生间干湿分离,得房率:79.71%(不含赠送),大阳台主朝正南向。
128㎡的4房2厅2卫,B4户型,仅4栋的06号房才有,设计的是竖厅南北通透格局,客厅4.2米开间,餐客厅一体化设计,4个卧室分别做到了主卧20㎡/次卧12.3㎡/次卧11.1㎡/次卧10.2㎡(含墙体飘窗),U型厨房,卫生间干湿分离,得房率:80.14%(不含赠送),阳台主朝东南向。
143㎡的5房2厅2卫,A1户型,设计的是竖厅格局,南北通透双阳台,客厅4.5米开间,餐客厅一体化设计,5个卧室分别做到了主卧20.72㎡/次卧11.52㎡/次卧10.44㎡/次卧10.07㎡/次卧7.5㎡(含墙体飘窗),U型厨房,卫生间干湿分离,得房率:80.4%(不含赠送),阳台主朝正南向。
四、区位潜力:光明科学城辐射,承接南山科技外溢
项目位于光明区公明街道马田街道石家社区,地处光明科学城大科学装置区,是粤港澳大湾区核心区域及广深科技创新走廊的重要节点,区位优势显著。这里毗邻东莞松山湖,能有效承接南山区的科技外溢,产业发展潜力巨大。
公明片区本身拥有全国最大的钟表产业集群基地,聚集了飞亚达、天王等近900家企业,年产值650亿元,出口占全国50%;同时,光明科学城规划引入科研机构及科技企业超6000家,预计汇聚15万产业人口,将持续驱动区域产城融合,未来人口导入和价值提升已成必然。
深业云筑项目核心优势总结:
性价比炸裂:240万起买光明地铁学区房,对比首开直降100万+,坪山价格买光明;
三宝齐全:800米达13号线、家门口教科院小学、1.1公里到大仟里,通勤教育消费全解决;
国企现房:深业集团开发,现房即买即住,零烂尾风险,所见即所得;
产品优质:纯商品房社区+90%高得房率+充足车位+40%绿化率,居住舒适度高;
区位潜力:光明科学城辐射,承接南山科技外溢,产业人口导入驱动价值提升。
看完以上介绍,如需了解更多关于我们深圳光明区公明深业云筑楼盘最新消息、剩余房源以及楼层、这几天房价优惠活动、在卖的户型、限购政策、房贷相关问题等情况,欢迎来电咨询深业云筑楼盘开发商售楼处全国免费400咨询/预约电话:400 880 7297(官方认证)中介请勿扰。
温馨提示:因近期本项目售楼中心来访的看房客户特别多,过来营销中心参观样板间采取预约制,为不耽误您的行程,过来营销中心现场看房请务必记得提前拨打售楼处400电话来电进行预约一下,预约看房价格还可以享受更多开发商内部优惠,名额有限千万不要错过,感谢您对我们工作的支持和配合,在此恭候您大驾光临实地品鉴。
免责声明:以上展示的关于深圳光明区深业云筑楼盘最新图文资料可能有部分来自网络,一切信息以最终在现场签署的购房合同为准,如图文内容无意中侵犯某方权益的话,请及时联系我们将配合处理。
声明:本文由入驻焦点开放平台的作者撰写,除焦点官方账号外,观点仅代表作者本人,不代表焦点立场。
