万丰海岸城【瀚府二期】宝安改善置业首选 就住海岸城 约143-189㎡城央楼王
扫描到手机,新闻随时看
扫一扫,用手机看文章
更加方便分享给朋友
万丰海岸城项目外立面采用铝板、石材和玻璃幕墙,这基本是10万+新盘才有的配置,可以说是新桥片区的品质天花板。而且相比前面几期,这次檀府距离11号线马安山站仅300米,同样带深外宝安学区!
本次首推的北地块规划建设4栋(45-47层)超高层住宅和1所幼儿园,该地块为纯商品房,总户数为1100户。
万丰海岸城二期瀚府一共推出来1407套,一共剩余178套,一共备案了1229套,自开盘以来整体去化率87.34%。
在售户型和房价说明(仅供参考,看房预约还能更便宜)
88.85平,折后总价389-411万,单价4.38-4.62万
90.75平,折后总价401-425万,单价4.42-4.68万
93.18平,折后总价442-472万,单价4.74-5..06万
102.8平,折后总价479-525万,单价4.66-5.11万
120.58平,折后总价549-620万,单价4.55-5.14万
124.58平,折后总价566-644万,单价4.54-5.17万
138.99平,折后总价676-741万,单价4.86-5.33万
168.85平,折后总价846-954万,单价5.01-5.65万
限时一口价房源,数量有限,先到先得!
如需了解本楼盘更多详情,欢迎来电咨询深圳万丰海岸城楼盘开发商售楼处免费400咨询/预约电话:400-880-7297(已认证)中介请勿扰,因近期参观的人员太多,本项目营销中心暂不接受临时到访,为不耽误您的行程,过来楼盘现场参观样板房请务必记得提前来电预约,预约看房的话最终房价还能更加优惠,最终价格包您满意!
下面是我们万丰海岸城楼盘营销中心现场实拍照片:
万丰海岸城项目航拍照片
备案价格表如下
推售89-91㎡三房二卫,93-103-121-125平米的四房二卫,139㎡的五房二卫,169㎡的六房。
这次最大亮点就是3栋一单元93平的王炸户型,作为本次最高使用率的稀缺产品,做到极致四房,使用率约104%,在当下深圳的新房市场极为少见。
万丰海岸城檀府于9月27日开放展厅和样板,已于10月25日开盘,首推89-91㎡三房二卫,93-103-121-125平米的四房二卫,139㎡的五房二卫,169㎡的六房。据了解本次使用率高达104%。
万丰海岸城交楼时间是2028年12月31日带简装交付。项目外观:铝板、石材、玻璃幕墙,高端配置,新桥片区品质标杆。
檀府相比于万丰海岸城离地铁更近!同样享受深圳外国语宝安学校学区!本次推售是新规户型。
作为重磅城市更新力作,万丰项目划分 A/B/C 三大开发区域,规划建筑面积突破 500 万㎡。项目特邀世界顶级建筑设计巨头美国 CRTKL 公司本部亲自设计,未来将崛起约 2 平方公里的超级产城综合体,构建业态全覆盖的全能 “城中之城”。
万丰海岸城,项目位于宝安区沙井街道南环路与宝安大道交汇处,是一个集商业、住宅、产业、甲级写字楼、高端酒店、学校教育、文化休闲、交通枢纽、生态公园于一体的超大型城市综合体项目。
万丰海岸城檀府项目由分南北两个地块组成,共有7栋超高层住宅和1所幼儿园,其中:5栋为商品房住宅,2栋为保障房,规划总户数2496户,其中普通商品房1392户,保障房1104户。
北地块(01-01),建设用地面积1.89万㎡,总建筑面积17.93万㎡,计容建筑面积12.85万㎡,容积率6.78。
规划建设4栋(45-47层)超高层住宅和1所幼儿园,该地块为纯商品房,总户数为1100户,机动停车位1309个。
89㎡的3房2厅2卫,设计的是竖厅格局,客厅3.375米开间,LDKB一体化,S墙设计预留冰箱卡槽位,三开间朝南,动静分区,U型厨房,公卫三段式干湿分离,得房率约95%(包含赠送),阳台5.9m²西南朝向。赠送面积约14.69m²。
91㎡的3房2厅2卫,设计的是竖厅格局,客厅3.35米开间,LDKB一体化,S墙设计预留冰箱卡槽位,动静分区,U型厨房,公卫干湿分离,得房率约94%(包含赠送),阳台5.7m²东北朝向。赠送面积约11.27m²。
01
02
93㎡的4房2厅2卫,设计的是竖厅南北通透格局,客厅3.35米开间,餐客厅分离设计,四开间朝南,U型厨房,卫生间干湿分离,得房率约104%(包含赠送),阳台5.86m²主朝西南向。赠送面积约21.43m²。
103㎡的4房2厅2卫,设计的是竖厅格局,客厅3.65米开间,LDKB一体化,S墙设计预留冰箱卡槽位,动静分区,U型厨房,公卫干湿分离,得房率约99%(包含赠送),阳台6.2m²东北朝向。赠送面积约17.28m²。
01
02
121㎡的4房2厅2卫,设计的是经典竖厅格局,客厅3.75米开间,LDKB一体化,S墙设计预留冰箱卡槽位,动静分区,四开间朝南,主卧270°无柱转角飘窗,U型厨房,公卫三段式干湿分离,得房率约100%(包含赠送),客厅连接次卧出6.52米长的观景大阳台约11.42m²东南朝向。赠送面积约20.41m²。
125㎡的4房2厅2卫,设计的是经典竖厅格局,客厅3.75米开间,LDKB一体化,S墙设计预留冰箱卡槽位,动静分区,四开间朝南,主卧270°无柱转角飘窗,U型厨房,公卫三段式干湿分离,得房率约100%(包含赠送),客厅连接次卧出6.52米长的观景大阳台约11.42m²东南朝向。赠送面积约20.41m²。
01
02
139㎡的5房2厅2卫,设计的是横厅南北通透格局,客餐厅6.25米开间,LDKB一体化,全屋12面飘窗,U型厨房,公卫三段式干湿分离,得房率约100%(包含赠送),客厅连接次卧出6.8米长的观景大阳台约11.9m²东南朝向。赠送面积约29.47m²。
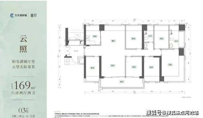
169㎡的6房2厅2卫,设计的是竖厅南北通透格局,独门独户,赠送私用公区走道,客厅4.15米开间,餐客厅分离设计,五开间朝南,U型厨房,公卫三段式干湿分离,得房率约100%(包含赠送),7.05米长的超大观景阳台约12.33m²主朝东南向。赠送面积约31.69m²。
01
02
以上所展示的图文就是关于深圳宝安沙井万丰海岸城二期最新介绍说明,看完以上内容,如果您对我们海岸城项目还有任何疑问的话,欢迎联系万丰海岸城楼盘开发商售楼处免费400热线电话:400-880-7297(已认证,中介请勿扰)进行咨询或者安排本楼盘我们楼盘现场销售人员在线为您一对一服务,现场销售人员会把楼盘的新资料、样板间图片视频、通过手机的方式发给您看、您不需要过来楼盘现场都能够了解个大概,还可以了解到本楼盘的优点缺点、房产政策、银行政策、积分入学、都给您讲解的明明白白。现场销售还可以为您对我们楼盘进行全面更详细的介绍,包含项目开盘详情、近期房价、楼层高低、户型朝向分析、最新折扣优惠活动等情况,而且还可以避免中介虚报价格,耽误您的时间和精力,中介所给的优惠我们全都可以给到,让您买的放心,住的舒心!买房是大事,记得及时联系我们。
免责声明:以上展示的关于深圳万丰海岸城楼盘最新相关的图文资料可能有部分来自于互联网,最终信息以在营销中心现场签署的购房合同为准,如以上图片或者文字无意中侵犯某方权益的话,请及时联系我们将配合处理。
声明:本文由入驻焦点开放平台的作者撰写,除焦点官方账号外,观点仅代表作者本人,不代表焦点立场。
