天健天骄峯玺,景田片区近水榭花都一手现楼住宅,211-321平无界大宅
扫描到手机,新闻随时看
扫一扫,用手机看文章
更加方便分享给朋友
项目基础信息
项目名称:天健天骄北庐

项目总占地:31787.4㎡
项目总建面:304022㎡
绿化率:40%
容积率:6.31
总房源:797套
在售房源:建面约162㎡-209㎡-211㎡-235㎡-266㎡-322㎡、复式约400㎡-470㎡
梯户比:4梯5户、3梯2户
开发商电话:4008113080
物业费:待定
产品类型:住宅
产权年限:70年
开发商:深圳市天珺房地产开发有限公司
项目位置:深圳市福田区景田西路与商报路交汇处

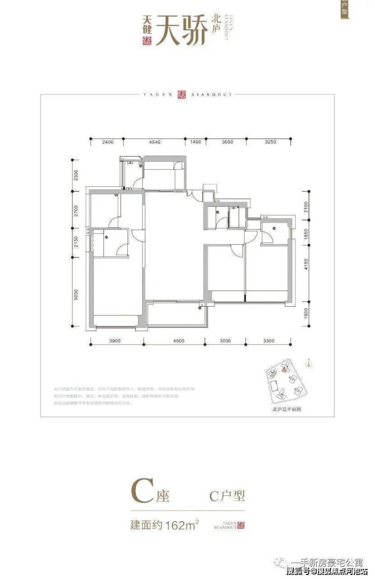
△C座建筑面积约162㎡户型
东南西朝向,大开间短进深,主要生活空间光照充足。4.5米客厅开间,带有1.8米进深大阳台。双套间配置,开间进深比良好,空间利用充分,采光优秀。双次卧开间进深比良好,都可以做主卧室使用。餐厨空间宽敞舒适,厨房带有独立生活阳台,可与厨房合并使用。
△E座建筑面积约209㎡户型
偏西南朝向,大开间短进深,主要生活空间光照充足。餐客厅开间7.5米,客厅带有2.5米进深大阳台,宽敞舒适。双套间配置,主卧空间宽敞,双面采光,功能全面。公共区域宽敞舒适,入户玄关自然通风采光,功能强大。
△E座建筑面积约211㎡户型
西南北朝向,通透布局,通风采光性能优秀。客厅开间5.2米,带有2.2米进深大阳台,双套间配置,主卧套间自然通透,功能全面,书房可根据需要独立使用。次卧开间进深比良好,空间利用充分,北向次卧可分为两个房间使用。餐厨空间宽敞独立,自然通风采光,入户玄关恰到好处功能全面。
△B座建筑面积约235㎡户型
东南北朝向,三梯两户,通风采光性能优秀,主要生活空间光照充足。客厅开间5.3米,带有2.2米进深大阳台,北侧房间可拆分为两个小房间使用,总体来看可算是266户型简配版。专梯入户、大平层、板楼、三梯两户(两梯两户+保姆电梯)、南北通透、看莲花山景观+福田中心区城市景观
△A座建筑面积约266㎡户型
东南西朝向,通风采光性能优秀,主要生活空间光照充足。客厅开间5.8米,带有2.2米进深大阳台,宽敞明亮。主卧尺度阔绰,功能全面双面采光,带有独立阳台和衣帽间。三套间配置,北向房间可独立使用,也可分割成两个小房间使用。餐厨空间宽敞独立,带有独立家政阳台和工人房。
专梯入户、大平层、板楼、三梯两户(两梯两户+保姆电梯)、南北通透、看莲花山景观+福田中心区城市景观+香蜜湖景观
△A座建筑面积约321㎡户型
东南朝向,通透布局三面采光,户型方正空间宽敞。客厅开间5.8米,带有2.2米进深大阳台。四套间配置,主卧空间奢侈,采光优秀空能全面。5阳台配置功能全面,餐厨空间宽敞独立,带有独立家政阳台和工人房。
专梯入户、大平层、板楼、三梯两(两梯两户+保姆电梯)、南北通透、看莲花山景观+福田中心区城市景观+香蜜湖景观。
交通配套
三维向心立体交通 “半小时”粤港澳生活经济圈
项目位于福田区莲花街道,莲花路与景田路交汇处西南侧
三维向心立体交通,10分钟城市高效出行。豪宅专线2号线、9号线景田站;迅接滨河大道、深南大道、北环大道等,30分钟通达全城各大枢纽。
而且,时速600公里的广深磁悬浮还将在深圳香蜜湖设站,而且未来有望接入香港九龙站,并由此连接世界。
商业配套

大型公建配套的数量及规模领先全市,图书馆、少年宫、关山月美术馆、音乐厅、会展中心等汇聚;山姆会员店、沃尔玛购物广场等快速抵达;距离PAFC Mall、皇庭广场、怡景中心城、连城新天地、福田COCO PARK、卓越INTOWN等CBD大型购物中心10分钟车程,享受超200万㎡的时尚购物配套。
教育配套
幼儿园:配建幼儿园
小学:荔园外国语小学
中学:红岭教育集团科技中学
荔园外国语小学(北校区)是天健天骄最大的优势之一
福田是深圳教育强区,项目配建幼儿园、荔园外国语小学(天骄校区)(2019年9月已开学)等10余所小、初、高学校等环绕,浸润书香翰墨,传承学风儒雅。

自然资源
福田区中心公园,对标国际一线中心公园;揽一湖两山六园艺境,天然绿肺环绕,东赏莲花山、西揽香蜜湖、北望塘朗山、南拥狮岭山,携手景观设计大师贝尔高林,汲取“鲲”、“鹏”为灵感、“山水环抱”为形态,精筑东方美学雅园,闲看四季风华,趣赏艺术小景,打破纷繁复杂的周边环境,营造中心区与山为邻的艺术宅邸。


项目内部
顶级建筑:全球顶级大师汇聚
由英国阿特金斯顾问有限公司担当顾问,法国欧博建筑与城市规划设计公司担纲规划及建筑设计,联袂匠筑约150米天幕美学建筑,立面选用双银玻璃和铝板,贯彻如美国ONE57类似的山墙肌理设计手法,彰显传世佳作品质,用世界级的设计致敬深圳豪宅起源地。

顶级园林 重金邀请全球知名园林公司担纲设计 极限美学造景
奢居园林专家贝尔高林,承袭东方园林精髓,外借山湖内造雅园。选取鲲羽化为鹏的过程变化来进行景观空间的推演及转化。景观设计倡导“海纳百川,融汇古今”的精神,旨在创造人与自然,传统与现代和谐交融的新亚洲风情园林。

在园林内部的休憩场地中,整体的步道以平滑曲线,疏朗的空间为主要基调,内部庭院的水景(水幕墙、雕塑喷泉、镜面水池、舒缓叠水)搭配,同时结合不同的尺度和视觉转化让人体会整体园林空间的趣味和神秘感。

天健天骄北庐大尺度平层,国际设计理念推窗揽山阅湖
天健天骄北庐目前有162㎡-209㎡-211㎡-235㎡-266㎡-322㎡、复式约400㎡-470㎡户型,是目前深圳市场上少有的大面积住宅产品,空间可以无限延展、窗外风景成画。
走进天健天骄北庐大门的那刻起,你就走进了一座空间美学博物馆。
进入房间扑面而来的就是大空间的尺度感,阳光透过窗户铺满客厅。
当你走到房间的边界向外望去,东览270°环幕莲花山的宜人景色,西赏香蜜湖的湖景曼妙,远眺塘朗山脉和平安金融中心的流光溢彩,这里的每一扇窗都是自然的取景框。

是的,你会惊叹于整个环境带来的独特感受——到处都是线条和比例构成的细节,而眼前却浑然天成看不到一厘米的刻意设计。
顶级物业:国际品牌物管顾问仲量联行+天健一级资质管理联袂打造
天健地产聘请了仲量联行作为天健天骄物业顾问,按照五星级酒店管家式的服务来打造,向国际一流物管服务看齐,同时也是集结全集团力量,选派最优秀人才打造了顶级豪宅配置的蜜悦物管服务专门为天骄项目服务。
顶级品牌:37载天健品牌,筑深圳精时代烙印
秉承“筑宜居城市”理念,以工匠精神锻造,天健40载精工造诣,营造品质人居,延承香蜜正统豪宅基因,觐献名望世家。
区域定位
拥有38年历史的香蜜湖度假村纳入城市改造范围当中,这也意味着,香蜜湖新金融中心的加速到来。
时乘中央支持深圳建设先行示范区、福田“湾区总部之都”三年行动方案,赋能香蜜湖金融街,构建金融总部集聚区之际;作为全球标杆城市,以全球一流水准设计,对标曼哈顿金融中心,重构香蜜湖空间格局,打造国际交流中心、国际演艺中心、深圳金融文化中心为一体的香蜜湖国际金融中心。
香蜜正统豪宅区,19年沉淀成就高贵名流圈层——中国最具影响力的巅峰阶层聚集地!未来,香蜜湖将问鼎世界高端金融区,比肩纽约曼哈顿。

如果看完以上关于我们香蜜湖天健天骄项目的介绍后,您还对如下问题想要深入了解的话:
问题如:最新推出的房源备案价格,小区在售的有多少栋楼,各个楼栋户型具体是什么朝向,每一层楼规划的是几梯几户,这一期卖的房小区里面有多少户,容积率多少,楼栋总共多少层,现在卖的户型具体交楼时间,这几种户型剩下的还有那些楼层和朝向,小区门口距离地铁近吗,该社区是怎么划分学校的,可以申请哪些小学和初中,交房后物业费怎么收?物业管理费每平米每月多少元,交房是精装修还是毛坯,停车位够用吗?停车位有多少个?小区附近以后有什么新的规划,楼盘展厅、营销中心位置在哪?具体什么时候开盘?开盘多少钱一平米,周边配套,楼盘详情,值得买吗,潜力升值如何,升值空间大不大,营销中心地址怎么导航,坐地铁到哪个站下车过来楼盘比较近,周边近期有什么规划,周边商业配套怎么样,拿地批地时间,这几天楼盘现场最新优惠活动情况等。
建议您可以拨打我们天健天骄北庐楼盘内场400免费咨询电话与售楼处现场销售人员直接沟通。
【天健天骄开发商售楼处咨询/预约电话☎️ 400-811-3080(中介勿扰)】
✅ 本项目暂不接受临时到访,过来参观样板房请记得提前来电预约!
✅ 为您安排楼盘现场销售全程接待并讲解,给您更贴心的看房体验!
温馨提醒:我们楼盘售楼部400电话没有设置任何所谓的“分机号”,拨打前请仔细甄别,注意保护个人隐私!谨防上当!
免责声明:
· 本文中所提到的“天健天骄”项目名称均为本项目的网络推广名。
· 本资料仅作为要约邀请,相关内容不排除因政府相关规划、规定及开发商未能控制的原因而发生变化,本公司保留对宣传资料修改的权利,敬请留意最新资料。本资料对项目或产品的介绍,旨在提供相关信息,不意味着本公司对此作出了承诺,买卖双方的权利义务以双方签订的《商品房买卖合同》及附件等协议为准。
· 本文部分图片来源于国际互联网,版权归原作者所有,如涉及版权等问题,请立即联系我们,我们会给予更改或相关处理。对使用本网站信息和服务所引起的后果,本网站不作任何承诺。
声明:本文由入驻焦点开放平台的作者撰写,除焦点官方账号外,观点仅代表作者本人,不代表焦点立场。
