鸿荣源珈誉府售楼处电话(鸿荣源珈誉府)营销中心欢迎您-楼盘详情
扫描到手机,新闻随时看
扫一扫,用手机看文章
更加方便分享给朋友
最新消息/ INTRODUCTION
继上次深圳宝安【鸿荣源珈誉府】一区样板推售出来被抢售一空后,深圳西部销冠项目珈誉府二区的所有样板房全部开放,过来现场参观需要提前拨打开发商电话:400 880 7297(官方发布)提前在线预约,意向登记(5万诚意金),本次推出建面约65-76-85㎡(横竖厅都有),86-87-94(横竖厅)。96㎡横厅,105-120㎡,共计72套货量,二区离学校更近!展示面更好。
鸿荣源珈誉府价格方面说明:
二期样板房(仅72套)
价格如下
0️⃣66平(8楼280万)
1️⃣76平(3、4楼330万,7、8楼331万)
2️⃣85平竖厅(3、4楼362万,7、8楼365万)
3️⃣85平横厅(3、4楼374万,8楼378万)
4️⃣86平双龙爆珠(3、4楼374万)
5️⃣86平竖厅(3、4楼362万)
6️⃣87平横厅(4楼395万、8楼396万)
7️⃣94平竖厅(外圈3、4楼405万,7、8楼408万;内圈3、4楼420万,7、8楼423万)
8️⃣94平横厅(7、8楼446万)
9️⃣96平横厅(8楼440万)
105平竖厅(4楼525万)
*️⃣120平竖厅(3楼4楼613万)
项目区位
鸿荣源珈誉府2区位于深圳市宝安沙井核心生活区,是一个集住宅、公共住房、总部办公、商务酒店、大型商业、学校等于一体的综合体大社区。项目总占地约31万㎡,总建面约248万㎡,旨在打造一个高品质的居住环境,同时提供丰富的生活配套设施。
项目介绍
鸿荣源珈誉府总建面约248万㎡,其中住宅面积70万㎡,商业面积30万㎡,分为8个地块进行开发,是鸿荣源集团全新开发的地标级综合体大盘,涵盖高端住宅、商业办公、星级酒店、优质教育、大型购物中心等业态。
【项目基本信息】
开发商:深圳市鸿荣源控股(集团)有限公司
物业公司:深圳市鸿荣源物业服务有限公司
物业管理费:5.9元/㎡
总占地面积:约4.79万㎡
总建筑面积:约40.53万㎡
开发商电话:400 880 7297
容积率:5.42
绿化率:40%
产权年限:2022.5-2092.5年(70年)
总户数:2479户
总栋数及楼高:10栋,31-44-45-46-47-48层。
梯户比:2梯2户/3梯5户/3梯7户
停车位:2795个
车位占比:1:1.127
交房时间:2026年12月
交付标准:精装修
鸿荣源珈誉府项目规划平面图
鸿荣源珈誉府这个楼盘究竟值不值得买?
【珈誉府全能 9大高阶珈选】
千亿区位:全国GDP第一梯队 3大国家战略加持
近百万市场主体,拥有多家世界500强企业,如立讯精密、亚太星通;影石insta360、海柔创新等独角兽企业。
【前海】+【国际海洋新城】+【国际会展新城】国家3大核心战略加持,引领深圳下一个增长级
超硬核战绩:卫冕深圳冠军,缔造全国奇绩!
2023-2024年深圳全年销量冠军,数万名业主共鉴全能之选
珈誉府蝉联2025年半年度深圳销售冠军
央视频道力荐,知名经济学家郎咸平教授组团抢购珈誉大城!
下楼即享学校:清北保送名校 享优质目送教育
根据宝安区教育局2025年的学区划分,项目学区为深圳外国语学校(集团)宝安学校
2025年深项目北区04-09地块深圳外国语学校宝安学校臻善校区,现已借址办学,可实现目送式上学
下楼即达地铁:直连地铁11号线 畅享都市便捷生活
地铁:家门口即11号线塘尾站,6站宝中,7站前海,9站后海,11站车公庙,便捷通达南山、福田核心片区
距离地铁口更近,更享便捷速达生活
下楼即享商业:百亿超级商圈,定鼎西部新中心
鸿荣源斥资约250亿打造又一湾区城市级购物中心
约50万㎡“湾区壹方”、宝安首家山姆会员店(预计2025年底开业)
约10万㎡“熊出没”主题华强广场、海岸城18万㎡商业均已开业
共筑百亿超级商圈,定义湾区城市商业新模式,定鼎西部新中心
园林更优:超大围合式艺术主题园林
1区—星空花园主题园林
约3万㎡园林景观,约4.2个标准足球场大小
配备全龄泳池,两大儿童主题空间,构建全龄景观配套
以梵高《星月夜》为灵感的“八重都会园境”,让您和公园只有一部电梯的距离
2区—舒居艺术大园林
约2.8万㎡园林景观,最大楼间距约187米
配备全龄泳池,亲子乐园,交流花园,构建全龄活动功能配套
源于莫奈《睡莲》为灵感的艺术主题花园,让您仿佛置身梦幻仙境中
全优户型:建面约76-105㎡3-4房 实景现房 现在买马上住
| 约94㎡(竖厅)三房两厅两卫【总价约435-512万】
三开间全园林向,改善首选,大尺度舒居三房,空间尺度感强
| 约94㎡(横厅)三房两厅两卫【总价约498-521万】
稀缺横厅,四空间坐拥超大园林主轴景观,创意3+1全生命周期户型
| 约85㎡(竖厅)三房两厅两卫【总价约396-440万】
主卧套房,270°采光,双卫生间设计,生活高效舒适
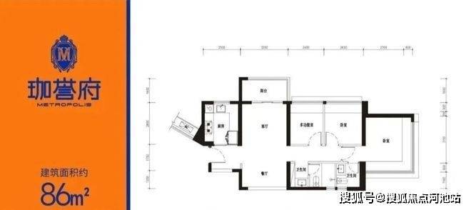
| 约86㎡(竖厅)三房两厅两卫(2区1-1-01/07)【总价约405-422万】
楼王单位,活动区双向互通,主卧飘窗L型设计,采光通风俱佳
| 约85㎡(横厅)三房两厅两卫【总价约415-455万】
稀缺横厅,双面通厅,超高实用率,创意“3+1”全生命周期户型
| 约76㎡(竖厅)三房两厅一卫【总价约372-382万】
南向精致三房,市场罕见,低门槛高享受,最低门槛入住全能大城
品牌更强:鸿荣源 城市地标缔造者
鸿荣源所在必树标杆,与城市共荣
34年高端豪宅经验,缔造了前海鸿荣源中心、壹方玖誉、壹成中心、香蜜湖熙园等标杆项目,物业价值长期坚挺
传承精工品质,秉持造城造中心理念,献筑约248万㎡珈誉大城,为深圳西部再造生活地标
物业更好:鸿荣源物业 领航高端服务
国家物业管理一级资质企业
致力于做中国高端物业专属服务的先行者,实现客户对美好生活的向往
中国物业服务品牌100强,粤港澳大湾区物业服务综合实力50强
优点/SUMMARY
该项目为超级综合大盘,涵盖高端住宅、商业办公、星级酒店、优质教育、大型购物中心等多种业态,并且自身配套齐全,可满足不同需求
1.该项目临近地铁11号线塘尾站,轨道便捷、便利。
2.该项目位于深圳外国语学校(集团)宝安学校招生范围内,周围拥有优质教育资源,可以带来较高的溢价。
3.此外,本项目商品房户型灵活,从76平米的小户型到三室户型均有,总价不高,对于刚需购房客群比较友好。
看完以上介绍,如需了解更多关于我们深圳宝安沙井鸿荣源珈誉府楼盘最新消息、剩余房源以及楼层、这几天房价优惠活动、在卖的户型、限购政策、房贷相关问题等情况,欢迎来电咨询鸿荣源珈誉府楼盘开发商售楼处全国免费400咨询/预约电话:400 880 7297(官方认证)中介请勿扰。
温馨提示:因近期本项目售楼中心来访的看房客户特别多,过来营销中心参观样板间采取预约制,为不耽误您的行程,过来营销中心现场看房请务必记得提前拨打售楼处400电话来电进行预约一下,预约看房价格还可以享受更多开发商内部优惠,名额有限千万不要错过,感谢您对我们工作的支持和配合,在此恭候您大驾光临实地品鉴。
免责声明:以上展示的关于深圳沙井鸿荣源珈誉府楼盘最新图文资料可能有部分来自网络,一切信息以最终在现场签署的购房合同为准,如图文内容无意中侵犯某方权益的话,请及时联系我们将配合处理。
声明:本文由入驻焦点开放平台的作者撰写,除焦点官方账号外,观点仅代表作者本人,不代表焦点立场。
