碧海玖号花园(售楼处)官方网站-2026年碧海玖号花园销售中心(营销中心)-碧海玖号花园楼盘欢迎您-小区环境-户型-价格-地址-楼盘详情-周边配套-售楼处电话
扫描到手机,新闻随时看
扫一扫,用手机看文章
更加方便分享给朋友
最新消息:碧海玖号花园来了!项目层高普遍在23-26F之间,2.2容积率,比国标新规3.1容积率要舒服很多。车位方面有897个,约有1 :1 .3,物业是龙湖的,明天上午剪彩完,下午正式开展厅+实体近100%使用率样板!首推1栋和3栋105-123的纯四房户型!2梯四户和3梯三户小高层洋房!预计将四月份入市!
如需了解更多详情,欢迎咨询碧海玖号花园售楼处电话400 800 9113,过来我们营销中心看房提前来电预约价格还能更优惠。
【碧海玖号花园开发商售楼处400免费咨询/预约电话:400-800-9113,官方】
温馨提示:过来营销中心参观样板间请记得提前拨打售楼处400热线预约,感谢您的配合!
临靠宝中片区-碧海缺一个能真正代言区域价值、把"住在碧海"这件事讲明白的标杆项目。这个局面,随着碧海玖号的入市在即,将被彻底打破!
项目平面图:
红色框线部分即为本次开盘的1栋、3栋
官方户型图已出:
3栋01~04户型(约113-124㎡)
[3栋01户型图]
[3栋03户型图]
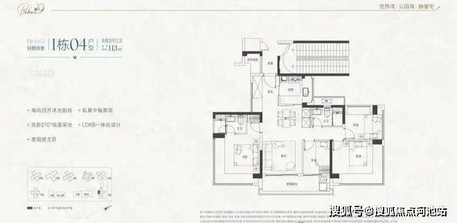
1栋|01-04户型(约105-113㎡)
[1栋02户型图]
[1栋04户型图]
270°无遮挡山海,海景房溢价是人性本能
深圳人买海景房,买的不是那一片水,而是"心情的延展性"。
碧海玖号的景观优势,数据上很直观:
三面270°山海景观,临海面无高层建筑遮挡,俯瞰高尔夫果岭景观,未来是超大体量公园绿地,北面还有碧海湾公园。
建筑立面,采用铝板+大面积三银Low-E玻璃、镀膜夹胶玻璃铺装,搭配系统窗,提升建筑的隔音隔热防漏功能,也用更高的成本,塑造楼体的昭示性。
楼层数只有23-26层,2梯4户、3梯3户的梯户比配置,意味着每部电梯要服务的户数很少,候梯时间缩短,出入体验和私密感更佳。
碧海玖号只做建面约105-188㎡的纯四房,精准锁定"家庭结构稳定、有二胎或三代同堂需求、对居住品质有明确要求"的换房群体。7栋纯商品住宅,让社区圈层的纯粹度更高,也避免了混合业态带来的管理复杂度。
新规设计下的四房,空间利用率相比传统户型大大提升,配合国际品牌精装交付,实际上是把"住的舒服"这个需求,拆解到了每寸空间里。
温馨提醒:因为这几天我们碧海玖号花园楼盘营销中心看房人数太多了,样板间参观正式实行预约制,为避免影响你的行程、浪费宝贵时间,请过来我们营销中心现场务必提前拨打碧海玖号花园楼盘开发商官方电话:400-800-9113(官方认证,中介或自媒体请勿扰)进行在线咨询或者预约看房。预约成功可尊享楼盘内部额外折扣优惠(仅限预约用户),同时我们会安排现场销售与您一对一在线对接,发送样板间视频、楼盘详情,提前讲解优惠政策、房贷要求、积分入学等核心问题,让你到现场前摸清所有底细,高效看房、省心购房,避免市场上一些中介虚报价格,耽误您的时间和精力,中介所给的优惠我们全都可以给【开发商官方售楼部在线预约看房·非中介·福利专属】立即拨打预约看房,尊享楼盘内部专属福利!如果您是专程从外地过来深圳考虑买房置业的话,也可以来电预约安排专车接送看房,包接包送!
声明:本文由入驻焦点开放平台的作者撰写,除焦点官方账号外,观点仅代表作者本人,不代表焦点立场。
